ザ・パークハビオ上北沢 506号室(5階/1R)の賃貸物件(賃貸マンション)
東京都杉並区にあるザ・パークハビオ上北沢 506号室はシャワー付洗面化粧台、エアコン、2階以上、エレベーター、楽器可・相談などが特徴です。最寄り駅の京王線上北沢駅から徒歩5分です。ザ・パークハビオ上北沢 506号室の詳細はハウスコム 千歳烏山店までお気軽にお問い合わせください!
情報更新日:
次回更新予定日:
※次回更新予定日について:お店側では順次空室確認を行っていますが、次回更新予定日までに空室確認が行えない場合には、この物件情報は自動的に削除されます。
ザ・パークハビオ上北沢 506号室の賃貸物件部屋概要
家賃 |
12万円
初期費用を |
|---|---|
共益費 |
12,000円
入居可能時期 |
敷金/礼金 |
1ヶ月 / 1ヶ月 |
保証金/ |
- / - |
最寄駅 |
|
所在地 |
東京都杉並区下高井戸 |
部屋番号 |
506号室 |
間取り |
1R(洋9.4) |
専有面積 |
25.60㎡ |
築年数 |
2023年8月(築3年) |
階数 |
5階部分(地上14階建) |
方位・位置 |
ー / その他 |
物件種別 |
賃貸マンション |
構造 |
RC |
駐車場 |
- |
小学校学区 |
高井戸第三小学校 |
中学校学区 |
向陽中学校 |
他の空き部屋 |
1102号室 |
- 学区データについて
- ※学区データは必ずしも正確とは限りません。詳細に関しては最寄店舗または各自治体の教育委員会に必ずご確認ください。
ザ・パークハビオ上北沢 506号室の特徴
-
一人暮らしに人気の設備

-
カップルに人気の設備

-
家族に人気の設備

-
夫婦に人気の設備

-
三世代で人気の設備

-
セキュリティ対策重視

-
タイパ重視

-
外で子どもと遊びたい

-
雨の日でも洗濯したい

-
洋室で暮らしたい

-
服やおしゃれが好き

-
オークション・通販が好き

-
ガーデニングが好き

契約条件
ペットの飼育や楽器演奏もご相談ください。 また、ご契約時に保証人は不要です。
セキュリティ
この物件の建物には、オートロックや防犯カメラや宅配ボックスが設置されており、来客時には居室内のテレビモニターにて訪問者の顔を確認することができます。
室内設備
システムキッチンには、2つ以上のガスコンロが備え付けられています。 お風呂とトイレは別です。お風呂には、追い焚き機能が備わっています。 トイレは、温水洗浄便座機能付きになります。 女性に嬉しい設備のシャワーの付いている洗面化粧台があります。 洗濯に便利な設備として、室内洗濯機置場があります。浴室乾燥機も設置されているので、梅雨時の生乾き臭も比較的防ぐことができます。
居室状況
お部屋の床は、フローリングとなっており、エアコンが設置されています。 インターネットも無料で入居後すぐ生活が始められます。 収納スペースとして、基本的な居室にクローゼットを設置、通常よりも収納力の高いウォークインクローゼット、玄関にはシューズボックスがあります。
建物設備共用部分
居室外の専有スペースとして、洗濯物を干すなどの用途として利用できるバルコニーがあります。 建物の共用スペースに、日々の出入に便利なエレベーターや、いざという時の防犯カメラや、急な外出や不在がちのご家庭の荷物受け取りに便利な宅配ボックスや、居室内を常に清潔に保てる24時間利用可能なゴミ捨て置き場が設置されています。
周辺施設
この物件の学区は、高井戸第三小学校区・向陽中学校区です。
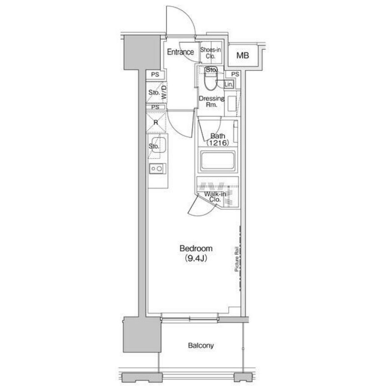
ザ・パークハビオ上北沢 506号室の間取り
間取り:1R
間取詳細:1R(洋9.4)
専有面積:25.60㎡
方位:ー
部屋位置:その他
ザ・パークハビオ上北沢 506号室の設備
キッチン
システムキッチン
ガスコンロ
ガスコンロ二口以上
バス・トイレ
バス・トイレ別
追い焚き
浴室乾燥機
温水洗浄便座
独立洗面台
シャワー付洗面化粧台
玄関
TVモニタ付インターホン
オートロック
宅配ボックス
収納
クローゼット
ウォークインクローゼット
シューズボックス
バルコニー
バルコニー
ルーフバルコニー
室内設備
エアコン
フローリング
室内洗濯機置場
位置・立地
2階以上
インフラ
インターネット可
CATV
都市ガス
建物設備
エレベーター
防犯カメラ
24時間ゴミ出しOK
入居条件
ペット可・相談
楽器可・相談
オンライン相談可
オンライン内見可
保証人不要
ライフステージ
一人暮らしに人気の設備
カップルに人気の設備
家族に人気の設備
夫婦に人気の設備
三世代で人気の設備
こだわり
セキュリティ対策重視
タイパ重視
外で子どもと遊びたい
雨の日でも洗濯したい
洋室で暮らしたい
趣味
服やおしゃれが好き
オークション・通販が好き
ガーデニングが好き
お得な条件
インターネット無料
ザ・パークハビオ上北沢 506号室の賃貸契約情報
毎月支払う |
家賃12万円/月共益費12,000円/月 |
|---|---|
初期費用 |
敷金1ヶ月 (12万円)礼金1ヶ月 (12万円)保証金-敷引き償却金- |
更新料 |
120,000円 |
鍵交換費用 |
- |
室内清掃費用 |
- |
駐車場料金 |
- |
損保・ |
借家賠付きの火災保険にご加入いただきます。 |
保証会社 |
加入要 保証会社利用料:初回50% 年間10000円 |
契約期間 |
2年 |
入居可能日 |
2026年06月 |
フリーレント期間 |
- |
取引形態 |
一般媒介 |
備考 |
鍵交換費用:33000円 駆付けサポート24:16500円/2年 別途火災保険要加入 ペット飼育時敷金1ヶ月積増(小型犬or猫 計2匹まで) |
ザ・パークハビオ上北沢 506号室の建物情報
建物名称 |
ザ・パークハビオ上北沢 |
|---|---|
最寄駅 |
|
所在地 |
東京都杉並区下高井戸 |
階層 |
5階部分(地上14階建) |
構造 |
RC |
築年数 |
2023年8月(築3年) |
駐車場 |
- |
小学校学区 |
高井戸第三小学校 |
中学校学区 |
向陽中学校 |
- 学区データについて
- ※学区データは必ずしも正確とは限りません。詳細に関しては最寄店舗または各自治体の教育委員会に必ずご確認ください。
無料この物件に問い合わせ
- ザ・パークハビオ上北沢 506号室

-
12万円
(共益費
12,000円)
- 敷
- 1ヶ月
- 礼
- 1ヶ月
- 保
- -
- 償
- -
ザ・パークハビオ上北沢 506号室の物件のお問い合わせ先・取り扱い店舗
ハウスコム 千歳烏山店
- アクセス
-
京王線「千歳烏山駅」北口徒歩1分
- 住所
- 〒157-0062 東京都世田谷区南烏山6丁目2−1 駅前ビル 1F
- 営業時間
- 10:00~18:00
- 定休日
- なし
- 営業エリア
- 世田谷区、杉並区、調布市、三鷹市、狛江市
- 取引態様
- 賃貸仲介業
















