プレール荏原中延 401号室(4階/1K)の賃貸物件(賃貸マンション)
東京都品川区にあるプレール荏原中延 401号室はシステムキッチン、温水洗浄便座、オートロック、CATV、エレベーターなどが特徴です。最寄り駅の東急池上線荏原中延駅から徒歩5分です。プレール荏原中延 401号室の詳細はハウスコム 五反田店までお気軽にお問い合わせください!
情報更新日:
次回更新予定日:
※次回更新予定日について:お店側では順次空室確認を行っていますが、次回更新予定日までに空室確認が行えない場合には、この物件情報は自動的に削除されます。
プレール荏原中延 401号室の賃貸物件部屋概要
家賃 |
7.8万円
初期費用を |
|---|---|
共益費 |
8,000円
入居可能時期 |
敷金/礼金 |
- / 78,000円 |
保証金/ |
- / - |
最寄駅 |
|
所在地 |
東京都品川区中延 |
部屋番号 |
401号室 |
間取り |
1K(洋0) |
専有面積 |
25.20㎡ |
築年数 |
1999年3月(築28年) |
階数 |
4階部分(地上7階建) |
方位・位置 |
東 / その他 |
物件種別 |
賃貸マンション |
構造 |
RC |
駐車場 |
無 |
小学校学区 |
中延小学校 |
中学校学区 |
荏原平塚学園義務教育学校 |
他の空き部屋 |
ー |
- 学区データについて
- ※学区データは必ずしも正確とは限りません。詳細に関しては最寄店舗または各自治体の教育委員会に必ずご確認ください。
プレール荏原中延 401号室の特徴
契約条件
敷金が無料なため、初期費用が比較的安くなる傾向にあります。
セキュリティ
この物件の建物には、オートロックや宅配ボックスが設置されております。
室内設備
システムキッチンが備え付けられています。 トイレは、温水洗浄便座機能付きになります。 洗濯に便利な設備として、室内洗濯機置場があります。浴室乾燥機も設置されているので、梅雨時の生乾き臭も比較的防ぐことができます。
居室状況
お部屋の床は、フローリングとなっており、エアコンが設置されています。 収納スペースとして、玄関にはシューズボックスがあります。
建物設備共用部分
居室外の専有スペースとして、洗濯物を干すなどの用途として利用できるバルコニーがあります。 建物の共用スペースに、日々の出入に便利なエレベーターや、急な外出や不在がちのご家庭の荷物受け取りに便利な宅配ボックスが設置されています。
周辺施設
この物件の学区は、中延小学校区・荏原平塚学園義務教育学校区です。
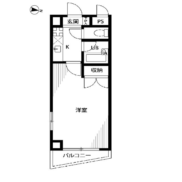
プレール荏原中延 401号室の間取り
間取り:1K
間取詳細:1K(洋0)
専有面積:25.20㎡
方位:東
部屋位置:その他
プレール荏原中延 401号室の設備
キッチン
システムキッチン
バス・トイレ
バス・トイレ別
浴室乾燥機
温水洗浄便座
玄関
オートロック
宅配ボックス
収納
シューズボックス
バルコニー
バルコニー
ルーフバルコニー
室内設備
エアコン
フローリング
室内洗濯機置場
位置・立地
2階以上
インフラ
インターネット可
CATV
建物設備
エレベーター
入居条件
オンライン相談可
オンライン内見可
ライフステージ
一人暮らしに人気の設備
カップルに人気の設備
家族に人気の設備
夫婦に人気の設備
三世代で人気の設備
こだわり
外で子どもと遊びたい
雨の日でも洗濯したい
洋室で暮らしたい
趣味
ガーデニングが好き
プレール荏原中延 401号室の賃貸契約情報
毎月支払う |
家賃7.8万円/月共益費8,000円/月 |
|---|---|
初期費用 |
敷金-礼金78,000円保証金-敷引き償却金- |
更新料 |
- |
鍵交換費用 |
- |
室内清掃費用 |
- |
駐車場料金 |
無 |
損保・ |
借家賠付きの火災保険にご加入いただきます。 |
保証会社 |
加入要 保証会社利用料:株式会社木下グループ 初回保証料月額総費用の80%、利用手数料550円、継続保証料20,000円(2 |
契約期間 |
- |
入居可能日 |
2026年05月下旬 |
フリーレント期間 |
- |
取引形態 |
一般媒介 |
備考 |
カギ交換代:27500円、 木下の消毒サービス:26400円、 定額ルームクリーニン:63800円 更新料 新賃料1.25ヶ月 |
プレール荏原中延 401号室の建物情報
建物名称 |
プレール荏原中延 |
|---|---|
最寄駅 |
|
所在地 |
東京都品川区中延 |
階層 |
4階部分(地上7階建) |
構造 |
RC |
築年数 |
1999年3月(築28年) |
駐車場 |
無 |
小学校学区 |
中延小学校 |
中学校学区 |
荏原平塚学園義務教育学校 |
- 学区データについて
- ※学区データは必ずしも正確とは限りません。詳細に関しては最寄店舗または各自治体の教育委員会に必ずご確認ください。
無料この物件に問い合わせ
- プレール荏原中延 401号室

-
7.8万円
(共益費
8,000円)
- 敷
- -
- 礼
- 78,000円
- 保
- -
- 償
- -
プレール荏原中延 401号室の物件のお問い合わせ先・取り扱い店舗
ハウスコム 五反田店
- アクセス
-
山手線「五反田駅」東口徒歩1分
都営浅草線「五反田駅」A6出口より徒歩1分
- 住所
- 〒141-0022 東京都品川区東五反田1丁目12−12 落合ビル 2F
- 営業時間
- 10:00~18:00
- 定休日
- 水曜日
- 営業エリア
- 品川区,大田区,港区,目黒区
- 取引態様
- 賃貸仲介業
























