佐須町の完工年月(1987年9月)築の賃貸一戸建て ***号室(1階/5LDK)の賃貸物件(賃貸一戸建て)
東京都調布市にある佐須町の完工年月(1987年9月)築の賃貸一戸建て ***号室は独立洗面台、シャワー付洗面化粧台、都市ガス、ペット可・相談、オンライン内見可などが特徴です。最寄り駅の京王線布田駅から徒歩18分です。佐須町の完工年月(1987年9月)築の賃貸一戸建て ***号室の詳細はハウスコム 調布店までお気軽にお問い合わせください!
情報更新日:
次回更新予定日:
※次回更新予定日について:お店側では順次空室確認を行っていますが、次回更新予定日までに空室確認が行えない場合には、この物件情報は自動的に削除されます。
佐須町の完工年月(1987年9月)築の賃貸一戸建て ***号室の賃貸物件部屋概要
家賃 |
24万円
初期費用を |
|---|---|
共益費 |
-
入居可能時期 |
敷金/礼金 |
2ヶ月 / - |
保証金/ |
- / - |
最寄駅 |
|
所在地 |
東京都調布市佐須町 |
部屋番号 |
***号室 |
間取り |
5LDK(洋5.5・洋8・洋8・和8・和8・LDK18) |
専有面積 |
139.82㎡ |
築年数 |
1987年9月(築39年) |
階数 |
1階部分(地上2階建) |
方位・位置 |
南西 / その他 |
物件種別 |
賃貸一戸建て |
構造 |
木造 |
駐車場 |
空有 賃料に含む |
小学校学区 |
柏野小学校 |
中学校学区 |
第七中学校 |
他の空き部屋 |
ー |
- 学区データについて
- ※学区データは必ずしも正確とは限りません。詳細に関しては最寄店舗または各自治体の教育委員会に必ずご確認ください。
佐須町の完工年月(1987年9月)築の賃貸一戸建て ***号室の特徴
-
一人暮らしに人気の設備

-
カップルに人気の設備

-
家族に人気の設備

-
夫婦に人気の設備

-
三世代で人気の設備

-
外で子どもと遊びたい

-
雨の日でも洗濯したい

-
洋室で暮らしたい

-
緑のある環境が好き

-
ガーデニングが好き

-
家庭菜園が好き

契約条件
ペットの飼育や楽器演奏もご相談ください。 また、ご契約時に保証人は不要です。 礼金が無料なため、初期費用が比較的安くなる傾向にあります。
セキュリティ
来客時には居室内のテレビモニターにて訪問者の顔を確認することができます。
室内設備
システムキッチンには、IHコンロが備え付けられています。 お風呂とトイレは別です。お風呂には、追い焚き機能が備わっています。 トイレは、温水洗浄便座機能付きになります。 女性に嬉しい設備のシャワーの付いている洗面化粧台があります。 洗濯に便利な設備として、室内洗濯機置場があります。
居室状況
居室には、和室の居室もあり、子育てやリラックススペースとしての利用もできます。 お部屋の床は、フローリングとなっています。
建物設備共用部分
居室外の専有スペースとして、洗濯物を干すなどの用途として利用できるバルコニーがあります。 駐車場があり、無料で利用することができます。
周辺施設
この物件の学区は、柏野小学校区・第七中学校区です。
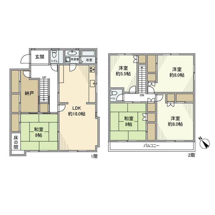
佐須町の完工年月(1987年9月)築の賃貸一戸建て ***号室の間取り
間取り:5LDK
間取詳細:5LDK(洋5.5・洋8・洋8・和8・和8・LDK18)
専有面積:139.82㎡
方位:南西
部屋位置:その他
佐須町の完工年月(1987年9月)築の賃貸一戸建て ***号室の設備
キッチン
システムキッチン
IHコンロ
バス・トイレ
バス・トイレ別
追い焚き
温水洗浄便座
独立洗面台
シャワー付洗面化粧台
玄関
TVモニタ付インターホン
バルコニー
バルコニー
ルーフバルコニー
専用庭付
室内設備
フローリング
室内洗濯機置場
和室あり
位置・立地
1階
インフラ
都市ガス
入居条件
ペット可・相談
楽器可・相談
オンライン相談可
オンライン内見可
保証人不要
ライフステージ
一人暮らしに人気の設備
カップルに人気の設備
家族に人気の設備
夫婦に人気の設備
三世代で人気の設備
こだわり
外で子どもと遊びたい
雨の日でも洗濯したい
洋室で暮らしたい
趣味
緑のある環境が好き
ガーデニングが好き
家庭菜園が好き
お得な条件
駐車場無料
佐須町の完工年月(1987年9月)築の賃貸一戸建て ***号室の賃貸契約情報
毎月支払う |
家賃24万円/月共益費- |
|---|---|
初期費用 |
敷金2ヶ月 (48万円)礼金-保証金-敷引き償却金- |
更新料 |
- |
鍵交換費用 |
- |
室内清掃費用 |
- |
除菌施工料 |
19,800円 |
駐車場登録料 |
11,000円 |
駐車場料金 |
空有 賃料に含む |
損保・ |
借家賠付きの火災保険にご加入いただきます。 |
保証会社 |
加入要 保証会社利用料:初回:総賃料の100% 総賃料の2%/月 |
契約期間 |
定期借家 5年 |
入居可能日 |
相談 |
フリーレント期間 |
- |
取引形態 |
一般媒介 |
備考 |
ペット(小型犬1匹相談可)飼育時:敷金3ヶ月(2ヶ月償却) ペット登録手数料:33,000円 楽器相談可 |
佐須町の完工年月(1987年9月)築の賃貸一戸建て ***号室の建物情報
建物名称 |
佐須町の完工年月(1987年9月)築の賃貸一戸建て |
|---|---|
最寄駅 |
|
所在地 |
東京都調布市佐須町 |
階層 |
1階部分(地上2階建) |
構造 |
木造 |
築年数 |
1987年9月(築39年) |
駐車場 |
空有 賃料に含む |
小学校学区 |
柏野小学校 |
中学校学区 |
第七中学校 |
- 学区データについて
- ※学区データは必ずしも正確とは限りません。詳細に関しては最寄店舗または各自治体の教育委員会に必ずご確認ください。
無料この物件に問い合わせ
- 佐須町の完工年月(1987年9月)築の賃貸一戸建て ***号室

-
24万円
(共益費
-)
- 敷
- 2ヶ月
- 礼
- -
- 保
- -
- 償
- -
佐須町の完工年月(1987年9月)築の賃貸一戸建て ***号室の物件のお問い合わせ先・取り扱い店舗
ハウスコム 調布店
- アクセス
-
京王線「調布駅」徒歩2分
- 住所
- 〒182-0024 東京都調布市布田4丁目17−10 セントラルレジデンス調布 1階
- 営業時間
- 10:00~18:00
- 定休日
- 水曜日
- 営業エリア
- 調布市、府中市、稲城市、川崎市多摩区、世田谷区
- 取引態様
- 賃貸仲介業

























