クレイノエスポワール 202号室(2階/1K)の賃貸物件(賃貸アパート)
東京都小金井市にあるクレイノエスポワール 202号室はバス・トイレ別、独立洗面台、TVモニタ付インターホン、2階以上、最上階などが特徴です。最寄り駅の西武多摩川線新小金井駅から徒歩3分です。クレイノエスポワール 202号室の詳細はハウスコム 武蔵小金井店までお気軽にお問い合わせください!
情報更新日:
次回更新予定日:
※次回更新予定日について:お店側では順次空室確認を行っていますが、次回更新予定日までに空室確認が行えない場合には、この物件情報は自動的に削除されます。
クレイノエスポワール 202号室の賃貸物件部屋概要
家賃 |
10万円
初期費用を |
|---|---|
共益費 |
5,000円
入居可能時期 |
敷金/礼金 |
- / 100,000円 |
保証金/ |
- / - |
最寄駅 |
|
所在地 |
東京都小金井市東町 |
部屋番号 |
202号室 |
間取り |
1K |
専有面積 |
19.28㎡ |
築年数 |
2017年2月(築10年) |
階数 |
2階部分(地上2階建) |
方位・位置 |
ー / その他 |
物件種別 |
賃貸アパート |
構造 |
木造 |
駐車場 |
無 |
小学校学区 |
東小学校 |
中学校学区 |
東中学校 |
他の空き部屋 |
ー |
- 学区データについて
- ※学区データは必ずしも正確とは限りません。詳細に関しては最寄店舗または各自治体の教育委員会に必ずご確認ください。
クレイノエスポワール 202号室の特徴
契約条件
敷金が無料なため、初期費用が比較的安くなる傾向にあります。
セキュリティ
来客時には居室内のテレビモニターにて訪問者の顔を確認することができます。
室内設備
トイレは、温水洗浄便座機能付きになります。 女性に嬉しい設備の独立した洗面化粧台があります。 洗濯に便利な設備として、室内洗濯機置場があります。
居室状況
エアコンが設置されています。
周辺施設
この物件の学区は、東小学校区・東中学校区です。
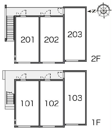
クレイノエスポワール 202号室の間取り
間取り:1K
間取詳細:1K
専有面積:19.28㎡
方位:ー
部屋位置:その他
クレイノエスポワール 202号室の設備
バス・トイレ
バス・トイレ別
温水洗浄便座
独立洗面台
玄関
TVモニタ付インターホン
室内設備
エアコン
室内洗濯機置場
位置・立地
2階以上
最上階
インフラ
インターネット可
ライフステージ
一人暮らしに人気の設備
カップルに人気の設備
家族に人気の設備
夫婦に人気の設備
三世代で人気の設備
こだわり
雨の日でも洗濯したい
クレイノエスポワール 202号室の賃貸契約情報
毎月支払う |
家賃10万円/月共益費5,000円/月 |
|---|---|
初期費用 |
敷金-礼金100,000円保証金-敷引き償却金- |
更新料 |
- |
鍵交換費用 |
16,500円 |
室内清掃費用 |
41,800円 |
抗菌施工(任意) |
23,760円 |
駐車場料金 |
無 |
損保・ |
借家賠付きの火災保険にご加入いただきます。 |
保証会社 |
加入要 保証会社利用料:保証料:98990円(契約内容により100~120%で変動有)※記載金額は120%の場合 |
契約期間 |
- |
入居可能日 |
即入居可 |
フリーレント期間 |
- |
取引形態 |
一般媒介 |
備考 |
室内清掃費用 41800円 鍵交換代 16500円 月額:環境維持費 550円 初期:抗菌施工(任意) 23760円 |
クレイノエスポワール 202号室の建物情報
建物名称 |
クレイノエスポワール |
|---|---|
最寄駅 |
|
所在地 |
東京都小金井市東町 |
階層 |
2階部分(地上2階建) |
構造 |
木造 |
築年数 |
2017年2月(築10年) |
駐車場 |
無 |
小学校学区 |
東小学校 |
中学校学区 |
東中学校 |
1/11 外観
- 学区データについて
- ※学区データは必ずしも正確とは限りません。詳細に関しては最寄店舗または各自治体の教育委員会に必ずご確認ください。
無料この物件に問い合わせ
- クレイノエスポワール 202号室

-
10万円
(共益費
5,000円)
- 敷
- -
- 礼
- 100,000円
- 保
- -
- 償
- -
クレイノエスポワール 202号室の物件のお問い合わせ先・取り扱い店舗
ハウスコム 武蔵小金井店
駅徒歩1分以内
駅徒歩3分以内
駅徒歩5分以内
- アクセス
-
中央本線(JR東日本)「武蔵小金井駅」南口徒歩1分
- 住所
- 〒184-0004 東京都小金井市本町6丁目14−45 OSビル 1階
- 営業時間
- 10:00~18:00
- 定休日
- なし
- 営業エリア
- 小金井市、国分寺市、小平市、武蔵野市、三鷹市、府中市、西東京市、国立市
- 取引態様
- 賃貸仲介業
お問い合わせNo. HC5-2076406-202-0143



























