ミリアビタNO.22 602号室(6階/1R)の賃貸物件(賃貸マンション)
東京都江戸川区にあるミリアビタNO.22 602号室はIHコンロ、バス・トイレ別、フローリング、インターネット可、都市ガスなどが特徴です。最寄り駅の京成本線京成小岩駅から徒歩5分です。ミリアビタNO.22 602号室の詳細はハウスコム 事業戦略室までお気軽にお問い合わせください!
情報更新日:
次回更新予定日:
※次回更新予定日について:お店側では順次空室確認を行っていますが、次回更新予定日までに空室確認が行えない場合には、この物件情報は自動的に削除されます。
ミリアビタNO.22 602号室の賃貸物件部屋概要
家賃 |
8.4万円
初期費用を |
|---|---|
共益費 |
15,000円
入居可能時期 |
敷金/礼金 |
- / - |
保証金/ |
1ヶ月 / 84,000円 |
最寄駅 |
|
所在地 |
東京都江戸川区西小岩 |
部屋番号 |
602号室 |
間取り |
1R(洋10) |
専有面積 |
25.05㎡ |
築年数 |
2013年3月(築14年) |
階数 |
6階部分(地上8階建) |
方位・位置 |
北東 / その他 |
物件種別 |
賃貸マンション |
構造 |
RC |
駐車場 |
無 |
小学校学区 |
北小岩小学校 |
中学校学区 |
小岩第四中学校 |
他の空き部屋 |
602号室 |
- 学区データについて
- ※学区データは必ずしも正確とは限りません。詳細に関しては最寄店舗または各自治体の教育委員会に必ずご確認ください。
ミリアビタNO.22 602号室の特徴
契約条件
この物件は、2人入居もご契約できます。 敷金と礼金が無料なため、初期費用が比較的安くなる傾向にあります。
セキュリティ
この物件の建物には、オートロックが設置されております。
室内設備
IHコンロが備え付けられています。 女性に嬉しい設備のシャワーの付いている洗面化粧台があります。 洗濯に便利な設備として、室内洗濯機置場があります。浴室乾燥機も設置されているので、梅雨時の生乾き臭も比較的防ぐことができます。
居室状況
お部屋の床は、フローリングとなっており、エアコンが設置されています。
建物設備共用部分
居室外の専有スペースとして、洗濯物を干すなどの用途として利用できるバルコニーがあります。 建物の共用スペースに、日々の出入に便利なエレベーターが設置されています。
周辺施設
この物件の学区は、北小岩小学校区・小岩第四中学校区です。
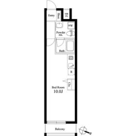
ミリアビタNO.22 602号室の間取り
間取り:1R
間取詳細:1R(洋10)
専有面積:25.05㎡
方位:北東
部屋位置:その他
ミリアビタNO.22 602号室の設備
キッチン
IHコンロ
バス・トイレ
バス・トイレ別
浴室乾燥機
独立洗面台
シャワー付洗面化粧台
玄関
オートロック
バルコニー
バルコニー
ルーフバルコニー
室内設備
エアコン
フローリング
室内洗濯機置場
位置・立地
2階以上
インフラ
インターネット可
BS
CS
都市ガス
建物設備
エレベーター
入居条件
2人入居可
ライフステージ
一人暮らしに人気の設備
カップルに人気の設備
家族に人気の設備
夫婦に人気の設備
三世代で人気の設備
こだわり
外で子どもと遊びたい
雨の日でも洗濯したい
洋室で暮らしたい
趣味
ガーデニングが好き
ミリアビタNO.22 602号室の賃貸契約情報
毎月支払う |
家賃8.4万円/月共益費15,000円/月 |
|---|---|
初期費用 |
敷金-礼金-保証金1ヶ月敷引き償却金84,000円 |
更新料 |
84,000円 |
鍵交換費用 |
- |
室内清掃費用 |
- |
駐車場料金 |
無 |
損保・ |
借家賠付きの火災保険にご加入いただきます。 |
保証会社 |
加入要 保証会社利用料:エムぞう君 初回保証料55%~ ※最低保証料55,000円 年間:11,000円 |
契約期間 |
1年 |
入居可能日 |
2026年06月 |
フリーレント期間 |
- |
取引形態 |
一般媒介 |
備考 |
- |
ミリアビタNO.22 602号室の建物情報
建物名称 |
ミリアビタNO.22 |
|---|---|
最寄駅 |
|
所在地 |
東京都江戸川区西小岩 |
階層 |
6階部分(地上8階建) |
構造 |
RC |
築年数 |
2013年3月(築14年) |
駐車場 |
無 |
小学校学区 |
北小岩小学校 |
中学校学区 |
小岩第四中学校 |
- 学区データについて
- ※学区データは必ずしも正確とは限りません。詳細に関しては最寄店舗または各自治体の教育委員会に必ずご確認ください。
無料この物件に問い合わせ
- ミリアビタNO.22 602号室

-
8.4万円
(共益費
15,000円)
- 敷
- -
- 礼
- -
- 保
- 1ヶ月
- 償
- 84,000円
ミリアビタNO.22 602号室の物件のお問い合わせ先・取り扱い店舗
ハウスコム 事業戦略室
- アクセス
-
山手線「品川駅」港南口徒歩3分
- 住所
- 〒108-0075 東京都港区港南2-16-1 品川イーストワンタワー9階
- 営業時間
- 10:00~17:00
- 定休日
- 土曜日・日曜日(祝日定休)
- 営業エリア
- 北区、荒川区、豊島区、文京区、台東区、中央区、新宿区、千代田区、渋谷区、港区、品川区
- 取引態様
- 賃貸仲介業
























