レオパレスフラッシュステージ 302号室(3階/1K)の賃貸物件(賃貸マンション)
東京都八王子市にあるレオパレスフラッシュステージ 302号室はTVモニタ付インターホン、バルコニー、ルーフバルコニー、家具付、インターネット可などが特徴です。最寄り駅の中央本線(JR東日本)八王子駅から徒歩7分です。レオパレスフラッシュステージ 302号室の詳細はハウスコム 橋本店までお気軽にお問い合わせください!
情報更新日:
次回更新予定日:
※次回更新予定日について:お店側では順次空室確認を行っていますが、次回更新予定日までに空室確認が行えない場合には、この物件情報は自動的に削除されます。
レオパレスフラッシュステージ 302号室の賃貸物件部屋概要
家賃 |
6.8万円
初期費用を |
|---|---|
共益費 |
5,000円
入居可能時期 |
敷金/礼金 |
- / 68,000円 |
保証金/ |
- / - |
最寄駅 |
|
所在地 |
東京都八王子市子安町 |
部屋番号 |
302号室 |
間取り |
1K |
専有面積 |
20.81㎡ |
築年数 |
2009年9月(築17年) |
階数 |
3階部分(地上3階建) |
方位・位置 |
ー / その他 |
物件種別 |
賃貸マンション |
構造 |
鉄骨造 |
駐車場 |
無 |
小学校学区 |
いずみの森義務教育学校 |
中学校学区 |
いずみの森義務教育学校 |
他の空き部屋 |
***号室 |
- 学区データについて
- ※学区データは必ずしも正確とは限りません。詳細に関しては最寄店舗または各自治体の教育委員会に必ずご確認ください。
レオパレスフラッシュステージ 302号室の特徴
契約条件
敷金が無料なため、初期費用が比較的安くなる傾向にあります。
セキュリティ
来客時には居室内のテレビモニターにて訪問者の顔を確認することができます。
室内設備
トイレは、温水洗浄便座機能付きになります。 洗濯に便利な設備として、室内洗濯機置場があります。
居室状況
エアコンが設置されています。 家具が備え付けられており、入居後すぐ生活が始められます。
建物設備共用部分
居室外の専有スペースとして、洗濯物を干すなどの用途として利用できるバルコニーがあります。
周辺施設
この物件の学区は、いずみの森義務教育学校区・いずみの森義務教育学校区です。
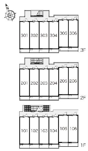
レオパレスフラッシュステージ 302号室の間取り
間取り:1K
間取詳細:1K
専有面積:20.81㎡
方位:ー
部屋位置:その他
レオパレスフラッシュステージ 302号室の設備
バス・トイレ
バス・トイレ別
温水洗浄便座
玄関
TVモニタ付インターホン
バルコニー
バルコニー
ルーフバルコニー
室内設備
エアコン
室内洗濯機置場
家具付
位置・立地
2階以上
最上階
インフラ
インターネット可
ライフステージ
一人暮らしに人気の設備
カップルに人気の設備
家族に人気の設備
夫婦に人気の設備
三世代で人気の設備
こだわり
外で子どもと遊びたい
雨の日でも洗濯したい
寝るためだけの部屋
趣味
ガーデニングが好き
レオパレスフラッシュステージ 302号室の賃貸契約情報
毎月支払う |
家賃6.8万円/月共益費5,000円/月 |
|---|---|
初期費用 |
敷金-礼金68,000円保証金-敷引き償却金- |
更新料 |
- |
鍵交換費用 |
16,500円 |
室内清掃費用 |
41,800円 |
抗菌施工(任意) |
23,760円 |
駐車場料金 |
無 |
損保・ |
借家賠付きの火災保険にご加入いただきます。 |
保証会社 |
加入要 保証会社利用料:保証料:89390円(契約内容により100~120%で変動有)※記載金額は120%の場合 |
契約期間 |
- |
入居可能日 |
即入居可 |
フリーレント期間 |
- |
取引形態 |
一般媒介 |
備考 |
鍵交換費10450円、抗菌施工(任意)18040円から23760円(税込)/環境維持費550円/月、更新手数料16500円/2年(税込)/基本清掃料:31350円(税込) |
レオパレスフラッシュステージ 302号室の建物情報
建物名称 |
レオパレスフラッシュステージ |
|---|---|
最寄駅 |
|
所在地 |
東京都八王子市子安町 |
階層 |
3階部分(地上3階建) |
構造 |
鉄骨造 |
築年数 |
2009年9月(築17年) |
駐車場 |
無 |
小学校学区 |
いずみの森義務教育学校 |
中学校学区 |
いずみの森義務教育学校 |
- 学区データについて
- ※学区データは必ずしも正確とは限りません。詳細に関しては最寄店舗または各自治体の教育委員会に必ずご確認ください。
無料この物件に問い合わせ
- レオパレスフラッシュステージ 302号室

-
6.8万円
(共益費
5,000円)
- 敷
- -
- 礼
- 68,000円
- 保
- -
- 償
- -
レオパレスフラッシュステージ 302号室の物件のお問い合わせ先・取り扱い店舗
ハウスコム 橋本店
- アクセス
-
横浜線「橋本駅」北口徒歩1分
- 住所
- 〒252-0143 神奈川県相模原市緑区橋本6−2−2 B’sタワー橋本E棟2階
- 営業時間
- 10:00~18:00
- 定休日
- 水曜日
- 営業エリア
- 相模原市、町田市、八王子市、多摩市
- 取引態様
- 賃貸仲介業





























