レオパレスADAMANTⅡ 201号室(2階/1K)の賃貸物件(賃貸アパート)
東京都立川市にあるレオパレスADAMANTⅡ 201号室はバス・トイレ別、温水洗浄便座、宅配ボックス、室内洗濯機置場、ロフト付などが特徴です。最寄り駅の中央本線(JR東日本)立川駅から徒歩12分です。レオパレスADAMANTⅡ 201号室の詳細はハウスコム 立川店までお気軽にお問い合わせください!
情報更新日:
次回更新予定日:
※次回更新予定日について:お店側では順次空室確認を行っていますが、次回更新予定日までに空室確認が行えない場合には、この物件情報は自動的に削除されます。
レオパレスADAMANTⅡ 201号室の賃貸物件部屋概要
家賃 |
7.1万円
初期費用を |
|---|---|
共益費 |
5,000円
入居可能時期 |
敷金/礼金 |
- / 71,000円 |
保証金/ |
- / - |
最寄駅 |
|
所在地 |
東京都立川市高松町 |
部屋番号 |
201号室 |
間取り |
1K |
専有面積 |
19.87㎡ |
築年数 |
2003年8月(築23年) |
階数 |
2階部分(地上2階建) |
方位・位置 |
ー / その他 |
物件種別 |
賃貸アパート |
構造 |
木造 |
駐車場 |
無 |
小学校学区 |
第五小学校 |
中学校学区 |
立川第二中学校 |
他の空き部屋 |
ー |
- 学区データについて
- ※学区データは必ずしも正確とは限りません。詳細に関しては最寄店舗または各自治体の教育委員会に必ずご確認ください。
レオパレスADAMANTⅡ 201号室の特徴
契約条件
敷金が無料なため、初期費用が比較的安くなる傾向にあります。
セキュリティ
この物件の建物には、宅配ボックスが設置されております。
室内設備
トイレは、温水洗浄便座機能付きになります。 洗濯に便利な設備として、室内洗濯機置場があります。
居室状況
居室には、ロフトが設置されており大規模な収納スペースやセパレートされた寝室として活用できます。 エアコンが設置されています。 家具が備え付けられており、入居後すぐ生活が始められます。
建物設備共用部分
建物の共用スペースに、急な外出や不在がちのご家庭の荷物受け取りに便利な宅配ボックスが設置されています。
周辺施設
この物件の学区は、第五小学校区・立川第二中学校区です。
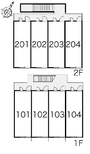
レオパレスADAMANTⅡ 201号室の間取り
間取り:1K
間取詳細:1K
専有面積:19.87㎡
方位:ー
部屋位置:その他
レオパレスADAMANTⅡ 201号室の設備
バス・トイレ
バス・トイレ別
温水洗浄便座
玄関
宅配ボックス
室内設備
エアコン
室内洗濯機置場
ロフト付
家具付
位置・立地
2階以上
最上階
インフラ
インターネット可
CATV
ライフステージ
一人暮らしに人気の設備
カップルに人気の設備
家族に人気の設備
夫婦に人気の設備
三世代で人気の設備
トレンド
ミニマリスト
こだわり
雨の日でも洗濯したい
レオパレスADAMANTⅡ 201号室の賃貸契約情報
毎月支払う |
家賃7.1万円/月共益費5,000円/月 |
|---|---|
初期費用 |
敷金-礼金71,000円保証金-敷引き償却金- |
更新料 |
- |
鍵交換費用 |
16,500円 |
室内清掃費用 |
41,800円 |
抗菌施工(任意) |
23,760円 |
駐車場料金 |
無 |
損保・ |
借家賠付きの火災保険にご加入いただきます。 |
保証会社 |
加入要 保証会社利用料:保証料:83990円(契約内容により100~120%で変動有)※記載金額は120%の場合 |
契約期間 |
- |
入居可能日 |
即入居可 |
フリーレント期間 |
- |
取引形態 |
一般媒介 |
備考 |
鍵交換費10450円、抗菌施工(任意)18040円から23760円(税込)/環境維持費550円/月、更新手数料16500円/2年(税込)/基本清掃料:31350円(税込) |
レオパレスADAMANTⅡ 201号室の建物情報
建物名称 |
レオパレスADAMANTⅡ |
|---|---|
最寄駅 |
|
所在地 |
東京都立川市高松町 |
階層 |
2階部分(地上2階建) |
構造 |
木造 |
築年数 |
2003年8月(築23年) |
駐車場 |
無 |
小学校学区 |
第五小学校 |
中学校学区 |
立川第二中学校 |
- 学区データについて
- ※学区データは必ずしも正確とは限りません。詳細に関しては最寄店舗または各自治体の教育委員会に必ずご確認ください。
無料この物件に問い合わせ
- レオパレスADAMANTⅡ 201号室

-
7.1万円
(共益費
5,000円)
- 敷
- -
- 礼
- 71,000円
- 保
- -
- 償
- -
レオパレスADAMANTⅡ 201号室の物件のお問い合わせ先・取り扱い店舗
ハウスコム 立川店
- アクセス
-
中央本線(JR東日本)「立川駅」北口徒歩1分
- 住所
- 〒190-0012 東京都立川市曙町2丁目13−1 TE曙ビル 5階
- 営業時間
- 10:00~18:00
- 定休日
- なし
- 営業エリア
- 立川市,国分寺市,小平市,国立市,日野市,昭島市,東大和市,武蔵村山市,青梅市,福生市,あきる野市
- 取引態様
- 賃貸仲介業




















