宮本町の完工年月(1990年1月)築の賃貸マンション ***号室(2階/2K)の賃貸物件(賃貸マンション)
埼玉県越谷市にある宮本町の完工年月(1990年1月)築の賃貸マンション ***号室はクローゼット、ルーフバルコニー、フローリング、室内洗濯機置場、和室ありなどが特徴です。最寄り駅の東武スカイツリーライン・伊勢崎線・大師線越谷駅から徒歩13分です。宮本町の完工年月(1990年1月)築の賃貸マンション ***号室の詳細はハウスコム 越谷店までお気軽にお問い合わせください!
情報更新日:
次回更新予定日:
※次回更新予定日について:お店側では順次空室確認を行っていますが、次回更新予定日までに空室確認が行えない場合には、この物件情報は自動的に削除されます。
宮本町の完工年月(1990年1月)築の賃貸マンション ***号室の賃貸物件部屋概要
家賃 |
4.5万円
初期費用を |
|---|---|
共益費 |
5,000円
入居可能時期 |
敷金/礼金 |
- / - |
保証金/ |
- / - |
最寄駅 |
|
所在地 |
埼玉県越谷市宮本町 |
部屋番号 |
***号室 |
間取り |
2K(洋8.5・和4.5) |
専有面積 |
34.62㎡ |
築年数 |
1990年1月(築37年) |
階数 |
2階部分(地上3階建) |
方位・位置 |
ー / 角部屋 |
物件種別 |
賃貸マンション |
構造 |
鉄骨造 |
駐車場 |
7,700円 |
小学校学区 |
出羽小学校 |
中学校学区 |
西中学校 |
他の空き部屋 |
ー |
- 学区データについて
- ※学区データは必ずしも正確とは限りません。詳細に関しては最寄店舗または各自治体の教育委員会に必ずご確認ください。
宮本町の完工年月(1990年1月)築の賃貸マンション ***号室の特徴
契約条件
敷金と礼金が無料なため、初期費用が比較的安くなる傾向にあります。
室内設備
洗濯に便利な設備として、室内洗濯機置場があります。
居室状況
居室には、和室の居室もあり、子育てやリラックススペースとしての利用もできます。 お部屋の床は、フローリングとなっており、エアコンが設置されています。 収納スペースとして、基本的な居室にクローゼットがあります。
建物設備共用部分
居室外の専有スペースとして、洗濯物を干すなどの用途として利用できるバルコニーがあります。
周辺施設
この物件の学区は、出羽小学校区・西中学校区です。
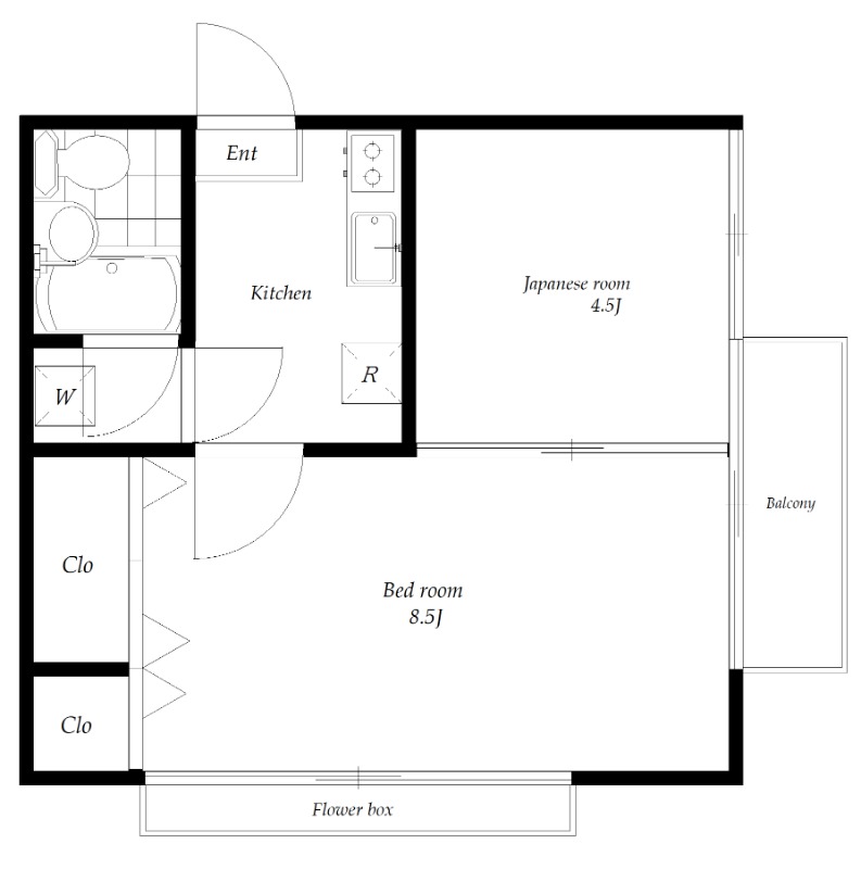
宮本町の完工年月(1990年1月)築の賃貸マンション ***号室の間取り
間取り:2K
間取詳細:2K(洋8.5・和4.5)
専有面積:34.62㎡
方位:ー
部屋位置:角部屋
宮本町の完工年月(1990年1月)築の賃貸マンション ***号室の設備
収納
クローゼット
バルコニー
バルコニー
ルーフバルコニー
室内設備
エアコン
フローリング
室内洗濯機置場
和室あり
位置・立地
2階以上
角部屋
インフラ
プロパンガス
ライフステージ
カップルに人気の設備
家族に人気の設備
夫婦に人気の設備
三世代で人気の設備
こだわり
外で子どもと遊びたい
雨の日でも洗濯したい
洋室で暮らしたい
趣味
ガーデニングが好き
お得な条件
フリーレント
宮本町の完工年月(1990年1月)築の賃貸マンション ***号室の賃貸契約情報
毎月支払う |
家賃4.5万円/月共益費5,000円/月 |
|---|---|
初期費用 |
敷金-礼金-保証金-敷引き償却金- |
更新料 |
45,000円 |
鍵交換費用 |
- |
室内清掃費用 |
66,000円 |
水道料 |
2,750円 |
月額保証料 |
2,600円 |
駐車場料金 |
7,700円 |
損保・ |
借家賠付きの火災保険にご加入いただきます。 |
保証会社 |
加入要 保証会社利用料:ニッポンインシュア 初回契約時:50%、月額:2,600円、月額保証料には、年間保証料・火災保険・24時間サポート・家賃引落手数料が含まれます。 |
契約期間 |
2年 |
入居可能日 |
2026年06月上旬 |
フリーレント期間 |
1ヶ月 |
取引形態 |
一般媒介 |
備考 |
- |
宮本町の完工年月(1990年1月)築の賃貸マンション ***号室の建物情報
建物名称 |
宮本町の完工年月(1990年1月)築の賃貸マンション |
|---|---|
最寄駅 |
|
所在地 |
埼玉県越谷市宮本町 |
階層 |
2階部分(地上3階建) |
構造 |
鉄骨造 |
築年数 |
1990年1月(築37年) |
駐車場 |
7,700円 |
小学校学区 |
出羽小学校 |
中学校学区 |
西中学校 |
- 学区データについて
- ※学区データは必ずしも正確とは限りません。詳細に関しては最寄店舗または各自治体の教育委員会に必ずご確認ください。
無料この物件に問い合わせ
- 宮本町の完工年月(1990年1月)築の賃貸マンション ***号室

-
4.5万円
(共益費
5,000円)
- 敷
- -
- 礼
- -
- 保
- -
- 償
- -
宮本町の完工年月(1990年1月)築の賃貸マンション ***号室の物件のお問い合わせ先・取り扱い店舗
ハウスコム 越谷店
- アクセス
-
東武スカイツリーライン・伊勢崎線・大師線「新越谷駅」東口徒歩1分
武蔵野線「南越谷駅」南口徒歩1分
- 住所
- 〒343-0845 埼玉県越谷市南越谷1丁目11−8 第一金子ビル 2F
- 営業時間
- 10:00~18:00
- 定休日
- なし
- 営業エリア
- 越谷市,吉川市,三郷市,草加市,春日部,松伏,東武沿線北部
- 取引態様
- 賃貸仲介業

















