Casa Domani 西大宮 ***号室(2階/1K)の賃貸物件(賃貸アパート)
埼玉県さいたま市西区にあるCasa Domani 西大宮 ***号室はガスコンロ、ガスコンロ二口以上、TVモニタ付インターホン、ロフト付、デザイナーズなどが特徴です。最寄り駅の川越線西大宮駅から徒歩12分です。Casa Domani 西大宮 ***号室の詳細はハウスコム 大宮店までお気軽にお問い合わせください!
情報更新日:
次回更新予定日:
※次回更新予定日について:お店側では順次空室確認を行っていますが、次回更新予定日までに空室確認が行えない場合には、この物件情報は自動的に削除されます。
Casa Domani 西大宮 ***号室の賃貸物件部屋概要
家賃 |
5.4万円
初期費用を |
|---|---|
共益費 |
3,000円
入居可能時期 |
敷金/礼金 |
- / - |
保証金/ |
- / - |
最寄駅 |
|
所在地 |
埼玉県さいたま市西区大字指扇 |
部屋番号 |
***号室 |
間取り |
1K(洋7.4) |
専有面積 |
22.20㎡ |
築年数 |
2016年12月(築10年) |
階数 |
2階部分(地上2階建) |
方位・位置 |
南西 / 角部屋 |
物件種別 |
賃貸アパート |
構造 |
木造 |
駐車場 |
- |
小学校学区 |
指扇小学校 |
中学校学区 |
土屋中学校 |
他の空き部屋 |
ー |
- 学区データについて
- ※学区データは必ずしも正確とは限りません。詳細に関しては最寄店舗または各自治体の教育委員会に必ずご確認ください。
Casa Domani 西大宮 ***号室の特徴
-
一人暮らしに人気の設備

-
カップルに人気の設備

-
家族に人気の設備

-
夫婦に人気の設備

-
三世代で人気の設備

-
外で子どもと遊びたい

-
雨の日でも洗濯したい

-
洋室で暮らしたい

-
オークション・通販が好き

-
ガーデニングが好き

契約条件
この物件は、外国籍の方もご相談の上、ご契約できます。 また、ご契約時に保証人は不要です。 敷金と礼金が無料なため、初期費用が比較的安くなる傾向にあります。
セキュリティ
この物件の建物には、宅配ボックスが設置されており、来客時には居室内のテレビモニターにて訪問者の顔を確認することができます。
室内設備
システムキッチンには、2つ以上のガスコンロが備え付けられています。 お風呂とトイレは別です。お風呂には、追い焚き機能が備わっています。 トイレは、温水洗浄便座機能付きになります。 女性に嬉しい設備の独立した洗面化粧台があります。 洗濯に便利な設備として、室内洗濯機置場があります。
居室状況
居室には、ロフトが設置されており大規模な収納スペースやセパレートされた寝室として活用できます。 お部屋の床は、フローリングとなっており、エアコンが設置されています。 インターネットも無料で入居後すぐ生活が始められます。 収納スペースとして、基本的な居室にクローゼットを設置、玄関にはシューズボックスがあります。
建物設備共用部分
居室外の専有スペースとして、洗濯物を干すなどの用途として利用できるバルコニーがあります。 建物の共用スペースに、急な外出や不在がちのご家庭の荷物受け取りに便利な宅配ボックスが設置されています。
周辺施設
この物件の学区は、指扇小学校区・土屋中学校区です。近くには、徒歩13分(991m)でライフ指扇店があります。
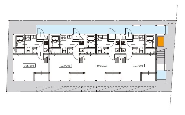
Casa Domani 西大宮 ***号室の間取り
間取り:1K
間取詳細:1K(洋7.4)
専有面積:22.20㎡
方位:南西
部屋位置:角部屋
Casa Domani 西大宮 ***号室の設備
キッチン
システムキッチン
ガスコンロ
ガスコンロ二口以上
バス・トイレ
バス・トイレ別
追い焚き
温水洗浄便座
独立洗面台
玄関
TVモニタ付インターホン
宅配ボックス
収納
クローゼット
シューズボックス
バルコニー
バルコニー
ルーフバルコニー
室内設備
エアコン
フローリング
室内洗濯機置場
ロフト付
デザイナーズ
位置・立地
2階以上
最上階
角部屋
インフラ
インターネット可
プロパンガス
入居条件
外国人可・相談
オンライン相談可
オンライン内見可
保証人不要
ライフステージ
一人暮らしに人気の設備
カップルに人気の設備
家族に人気の設備
夫婦に人気の設備
三世代で人気の設備
こだわり
外で子どもと遊びたい
雨の日でも洗濯したい
洋室で暮らしたい
趣味
オークション・通販が好き
ガーデニングが好き
お得な条件
インターネット無料
Casa Domani 西大宮 ***号室の賃貸契約情報
毎月支払う |
家賃5.4万円/月共益費3,000円/月 |
|---|---|
初期費用 |
敷金-礼金-保証金-敷引き償却金- |
更新料 |
54,000円 |
鍵交換費用 |
27,500円 |
室内清掃費用 |
55,000円 |
入居者アプリ設定費 |
22,000円 |
駐車場料金 |
- |
損保・ |
借家賠付きの火災保険にご加入いただきます。 |
保証会社 |
加入要 保証会社利用料:初回保証料:総賃料の100% 支払委託手数料:総賃料の2%/月 |
契約期間 |
2年 |
入居可能日 |
2026年08月下旬 |
フリーレント期間 |
- |
取引形態 |
一般媒介 |
備考 |
退去時原状回復費:故意・過失による損耗等がある場合借主実費負担 短期解約時違約金有り:2年未満時賃料1ヶ月分、1年未満時2ヶ月分 |
Casa Domani 西大宮 ***号室の建物情報
建物名称 |
Casa Domani 西大宮 |
|---|---|
最寄駅 |
|
所在地 |
埼玉県さいたま市西区大字指扇 |
階層 |
2階部分(地上2階建) |
構造 |
木造 |
築年数 |
2016年12月(築10年) |
駐車場 |
- |
小学校学区 |
指扇小学校 |
中学校学区 |
土屋中学校 |
- 学区データについて
- ※学区データは必ずしも正確とは限りません。詳細に関しては最寄店舗または各自治体の教育委員会に必ずご確認ください。
無料この物件に問い合わせ
- Casa Domani 西大宮 ***号室

-
5.4万円
(共益費
3,000円)
- 敷
- -
- 礼
- -
- 保
- -
- 償
- -
Casa Domani 西大宮 ***号室の物件のお問い合わせ先・取り扱い店舗
ハウスコム 大宮店
- アクセス
-
京浜東北・根岸線「大宮駅」西口徒歩1分
- 住所
- 〒330-0854 埼玉県さいたま市大宮区桜木町1丁目1−4 TS-114ビル 1階
- 営業時間
- 10:00~18:00
- 定休日
- なし
- 営業エリア
- さいたま市中央区,さいたま市北区,さいたま市大宮区,さいたま市桜区,さいたま市西区,さいたま市見沼区,岩槻区,上尾市,北足立郡伊奈町
- 取引態様
- 賃貸仲介業





























