レオパレスブレイヴ 103号室(1階/1K)の賃貸物件(賃貸アパート)
群馬県高崎市にあるレオパレスブレイヴ 103号室はバス・トイレ別、温水洗浄便座、フローリング、室内洗濯機置場、インターネット可などが特徴です。最寄り駅の高崎線高崎駅から徒歩19分です。レオパレスブレイヴ 103号室の詳細はハウスコム 高崎店までお気軽にお問い合わせください!
情報更新日:
次回更新予定日:
※次回更新予定日について:お店側では順次空室確認を行っていますが、次回更新予定日までに空室確認が行えない場合には、この物件情報は自動的に削除されます。
レオパレスブレイヴ 103号室の賃貸物件部屋概要
家賃 |
5.2万円
初期費用を |
|---|---|
共益費 |
4,000円
入居可能時期 |
敷金/礼金 |
- / 52,000円 |
保証金/ |
- / - |
最寄駅 |
|
所在地 |
群馬県高崎市和田多中町 |
部屋番号 |
103号室 |
間取り |
1K(洋7・K2) |
専有面積 |
21.81㎡ |
築年数 |
2008年2月(築19年) |
階数 |
1階部分(地上2階建) |
方位・位置 |
南 / その他 |
物件種別 |
賃貸アパート |
構造 |
木造 |
駐車場 |
5,500円 |
小学校学区 |
佐野小学校 |
中学校学区 |
佐野中学校 |
他の空き部屋 |
102号室 104号室 105号室 108号室 203号室 205号室 207号室 209号室 210号室 |
- 学区データについて
- ※学区データは必ずしも正確とは限りません。詳細に関しては最寄店舗または各自治体の教育委員会に必ずご確認ください。
レオパレスブレイヴ 103号室の特徴
契約条件
この物件は、外国籍の方もご相談の上、2人入居もご契約できます。 また、ご契約時に保証人は不要です。 敷金が無料なため、初期費用が比較的安くなる傾向にあります。
室内設備
システムキッチンには、IHコンロが備え付けられています。 トイレは、温水洗浄便座機能付きになります。 洗濯に便利な設備として、室内洗濯機置場があります。
居室状況
お部屋の床は、フローリングとなっており、エアコンが設置されています。 家具が備え付けられており、入居後すぐ生活が始められます。 収納スペースとして、基本的な居室にクローゼットがあります。
周辺施設
この物件の学区は、佐野小学校区・佐野中学校区です。
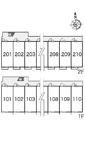
レオパレスブレイヴ 103号室の間取り
間取り:1K
間取詳細:1K(洋7・K2)
専有面積:21.81㎡
方位:南
部屋位置:その他
レオパレスブレイヴ 103号室の設備
キッチン
システムキッチン
IHコンロ
バス・トイレ
バス・トイレ別
温水洗浄便座
収納
クローゼット
全居室収納
室内設備
エアコン
フローリング
室内洗濯機置場
家具付
位置・立地
1階
南向き
インフラ
インターネット可
入居条件
2人入居可
外国人可・相談
保証人不要
ライフステージ
一人暮らしに人気の設備
カップルに人気の設備
家族に人気の設備
夫婦に人気の設備
三世代で人気の設備
こだわり
雨の日でも洗濯したい
洋室で暮らしたい
持ち物をスッキリ隠す収納部屋
寝るためだけの部屋
レオパレスブレイヴ 103号室の賃貸契約情報
毎月支払う |
家賃5.2万円/月共益費4,000円/月 |
|---|---|
初期費用 |
敷金-礼金52,000円保証金-敷引き償却金- |
更新料 |
- |
鍵交換費用 |
16,500円 |
室内清掃費用 |
41,800円 |
抗菌施工(任意) |
23,760円 |
駐車場料金 |
5,500円 |
損保・ |
借家賠付きの火災保険にご加入いただきます。 |
保証会社 |
加入要 保証会社利用料:保証料:47990円(契約内容により100~120%で変動有)※記載金額は120%の場合 |
契約期間 |
- |
入居可能日 |
2026年06月上旬 |
フリーレント期間 |
- |
取引形態 |
一般媒介 |
備考 |
抗菌施工(任意)18040円から23760円(税込)/環境維持費550円/月、更新手数料16500円/2年(税込)/基本清掃料:31350円(税込) |
レオパレスブレイヴ 103号室の建物情報
建物名称 |
レオパレスブレイヴ |
|---|---|
最寄駅 |
|
所在地 |
群馬県高崎市和田多中町 |
階層 |
1階部分(地上2階建) |
構造 |
木造 |
築年数 |
2008年2月(築19年) |
駐車場 |
5,500円 |
小学校学区 |
佐野小学校 |
中学校学区 |
佐野中学校 |
- 学区データについて
- ※学区データは必ずしも正確とは限りません。詳細に関しては最寄店舗または各自治体の教育委員会に必ずご確認ください。
無料この物件に問い合わせ
- レオパレスブレイヴ 103号室

-
5.2万円
(共益費
4,000円)
- 敷
- -
- 礼
- 52,000円
- 保
- -
- 償
- -
レオパレスブレイヴ 103号室の物件のお問い合わせ先・取り扱い店舗
ハウスコム 高崎店
- アクセス
-
高崎線「高崎駅」東口徒歩1分
- 住所
- 〒370-0841 群馬県高崎市栄町14−1 高崎イーストセンタービル 1階
- 営業時間
- 10:00~18:00
- 定休日
- なし(GW5月3日~5月6日)
- 営業エリア
- 高崎市・前橋市・藤岡市・安中市・富岡市・佐波郡玉村町
- 取引態様
- 賃貸仲介業





















