コートブランシェAP ***号室(4階/1R)の賃貸物件(賃貸マンション)
東京都品川区にあるコートブランシェAP ***号室はクローゼット、エアコン、2階以上、インターネット可、保証人不要などが特徴です。最寄り駅の東急大井町線荏原町駅から徒歩2分です。コートブランシェAP ***号室の詳細はハウスコム 大岡山店までお気軽にお問い合わせください!
情報更新日:
次回更新予定日:
※次回更新予定日について:お店側では順次空室確認を行っていますが、次回更新予定日までに空室確認が行えない場合には、この物件情報は自動的に削除されます。
コートブランシェAP ***号室の賃貸物件部屋概要
家賃 |
14.4万円
初期費用を |
|---|---|
共益費 |
5,000円
入居可能時期 |
敷金/礼金 |
1ヶ月 / 1ヶ月 |
保証金/ |
- / - |
最寄駅 |
|
所在地 |
東京都品川区中延 |
部屋番号 |
***号室 |
間取り |
1R(洋10) |
専有面積 |
35.27㎡ |
築年数 |
2006年3月(築21年) |
階数 |
4階部分(地上8階建) |
方位・位置 |
東 / 角部屋 |
物件種別 |
賃貸マンション |
構造 |
SRC |
駐車場 |
無 |
小学校学区 |
旗台小学校 |
中学校学区 |
荏原第五中学校 |
他の空き部屋 |
606号室 |
- 学区データについて
- ※学区データは必ずしも正確とは限りません。詳細に関しては最寄店舗または各自治体の教育委員会に必ずご確認ください。
コートブランシェAP ***号室の特徴
契約条件
ご契約時に保証人は不要です。
セキュリティ
この物件の建物には、オートロックや防犯カメラや宅配ボックスが設置されており、来客時には居室内のテレビモニターにて訪問者の顔を確認することができます。
室内設備
システムキッチンには、IHコンロが備え付けられています。 女性に嬉しい設備のシャワーの付いている洗面化粧台があります。
居室状況
お部屋の床は、フローリングとなっており、エアコンが設置されています。 収納スペースとして、基本的な居室にクローゼットがあります。
建物設備共用部分
建物の共用スペースに、いざという時の防犯カメラや、急な外出や不在がちのご家庭の荷物受け取りに便利な宅配ボックスが設置されています。
周辺施設
この物件の学区は、旗台小学校区・荏原第五中学校区です。
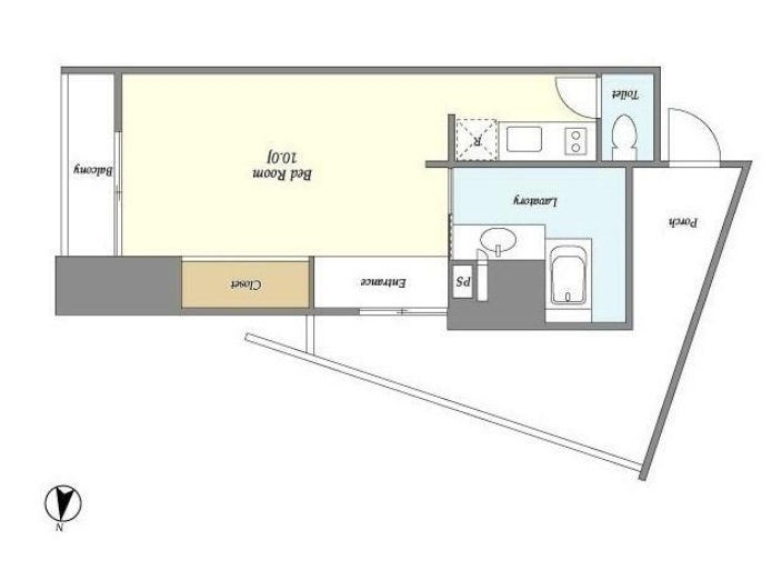
コートブランシェAP ***号室の間取り
間取り:1R
間取詳細:1R(洋10)
専有面積:35.27㎡
方位:東
部屋位置:角部屋
コートブランシェAP ***号室の設備
キッチン
システムキッチン
IHコンロ
バス・トイレ
バス・トイレ別
独立洗面台
シャワー付洗面化粧台
玄関
TVモニタ付インターホン
オートロック
宅配ボックス
収納
クローゼット
室内設備
エアコン
フローリング
デザイナーズ
位置・立地
2階以上
角部屋
インフラ
インターネット可
CS
建物設備
防犯カメラ
入居条件
オンライン相談可
オンライン内見可
保証人不要
ライフステージ
一人暮らしに人気の設備
カップルに人気の設備
家族に人気の設備
夫婦に人気の設備
三世代で人気の設備
こだわり
セキュリティ対策重視
洋室で暮らしたい
コートブランシェAP ***号室の賃貸契約情報
毎月支払う |
家賃14.4万円/月共益費5,000円/月 |
|---|---|
初期費用 |
敷金1ヶ月 (14.4万円)礼金1ヶ月 (14.4万円)保証金-敷引き償却金- |
更新料 |
144,000円 |
鍵交換費用 |
44,000円 |
室内清掃費用 |
44,000円 |
エアコン清掃費 |
11,000円 |
駐車場料金 |
無 |
損保・ |
借家賠付きの火災保険にご加入いただきます。 |
保証会社 |
加入要 保証会社:オリコフォレントインシュア 保証会社利用料:初回保証料:賃料総額の50%(最低2万円) 月次保証料:賃料等の1%(更新料無) |
契約期間 |
2年 |
入居可能日 |
2026年05月下旬 |
フリーレント期間 |
- |
取引形態 |
一般媒介 |
備考 |
指定保証会社利用必須 一部法人契約除 敷金1カ月積み増し 付随設備に関する費用・空き状況 要確認 退去時エアコン清掃費・室内清掃費かかります |
コートブランシェAP ***号室の建物情報
建物名称 |
コートブランシェAP |
|---|---|
最寄駅 |
|
所在地 |
東京都品川区中延 |
階層 |
4階部分(地上8階建) |
構造 |
SRC |
築年数 |
2006年3月(築21年) |
駐車場 |
無 |
小学校学区 |
旗台小学校 |
中学校学区 |
荏原第五中学校 |
- 学区データについて
- ※学区データは必ずしも正確とは限りません。詳細に関しては最寄店舗または各自治体の教育委員会に必ずご確認ください。
無料この物件に問い合わせ
- コートブランシェAP ***号室

-
14.4万円
(共益費
5,000円)
- 敷
- 1ヶ月
- 礼
- 1ヶ月
- 保
- -
- 償
- -
コートブランシェAP ***号室の物件のお問い合わせ先・取り扱い店舗
ハウスコム 大岡山店
- アクセス
-
東急目黒線「大岡山駅」徒歩1分
- 住所
- 〒145-0062 東京都大田区北千束1丁目51−6 サンルミナスA 1階
- 営業時間
- 10:00~18:00
- 定休日
- なし
- 営業エリア
- 大田区,目黒区,品川区,世田谷区
- 取引態様
- 賃貸仲介業

























