KEIAI RESIDENCE 西所沢Ⅲ 201号室(2階/1K)の賃貸物件(賃貸アパート)
埼玉県所沢市にあるKEIAI RESIDENCE 西所沢Ⅲ 201号室はシステムキッチン、独立洗面台、TVモニタ付インターホン、角部屋、都市ガスなどが特徴です。最寄り駅の西武池袋線・豊島線西所沢駅から徒歩8分です。KEIAI RESIDENCE 西所沢Ⅲ 201号室の詳細はハウスコム 所沢駅前店までお気軽にお問い合わせください!
情報更新日:
次回更新予定日:
※次回更新予定日について:お店側では順次空室確認を行っていますが、次回更新予定日までに空室確認が行えない場合には、この物件情報は自動的に削除されます。
KEIAI RESIDENCE 西所沢Ⅲ 201号室の賃貸物件部屋概要
家賃 |
6.2万円
初期費用を |
|---|---|
共益費 |
3,500円
入居可能時期 |
敷金/礼金 |
- / 1ヶ月 |
保証金/ |
- / - |
最寄駅 |
|
所在地 |
埼玉県所沢市大字山口 |
部屋番号 |
201号室 |
間取り |
1K |
専有面積 |
20.35㎡ |
築年数 |
新築 |
階数 |
2階部分(地上2階建) |
方位・位置 |
南東 / 角部屋 |
物件種別 |
賃貸アパート |
構造 |
木造 |
駐車場 |
無 |
小学校学区 |
泉小学校 |
中学校学区 |
山口中学校 |
他の空き部屋 |
101号室 102号室 103号室 104号室 105号室 202号室 203号室 204号室 205号室 |
- 学区データについて
- ※学区データは必ずしも正確とは限りません。詳細に関しては最寄店舗または各自治体の教育委員会に必ずご確認ください。
KEIAI RESIDENCE 西所沢Ⅲ 201号室の特徴
契約条件
ご契約時に保証人は不要です。 敷金が無料なため、初期費用が比較的安くなる傾向にあります。
セキュリティ
この物件の建物には、オートロックが設置されており、来客時には居室内のテレビモニターにて訪問者の顔を確認することができます。
室内設備
システムキッチンには、ガスコンロが備え付けられています。 トイレは、温水洗浄便座機能付きになります。 女性に嬉しい設備のシャワーの付いている洗面化粧台があります。 洗濯に便利な設備として、室内洗濯機置場があります。浴室乾燥機も設置されているので、梅雨時の生乾き臭も比較的防ぐことができます。
居室状況
お部屋の床は、フローリングとなっており、エアコンが設置されています。 照明器具が備え付けられており、インターネットも無料で入居後すぐ生活が始められます。 収納スペースとして、基本的な居室にクローゼットを設置、玄関にはシューズボックスがあります。
周辺施設
この物件の学区は、泉小学校区・山口中学校区です。
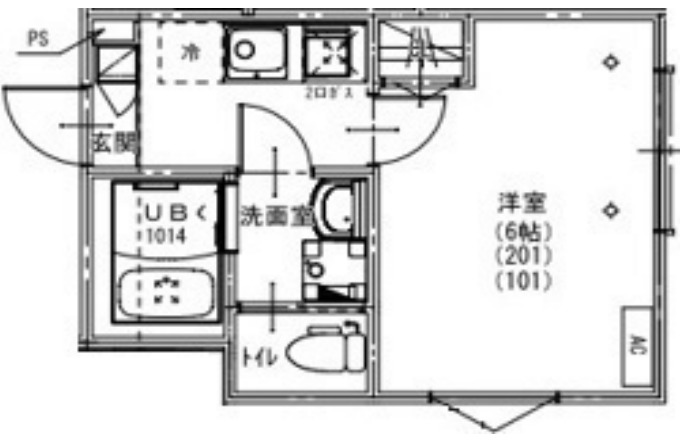
KEIAI RESIDENCE 西所沢Ⅲ 201号室の間取り
間取り:1K
間取詳細:1K
専有面積:20.35㎡
方位:南東
部屋位置:角部屋
KEIAI RESIDENCE 西所沢Ⅲ 201号室の設備
キッチン
システムキッチン
ガスコンロ
バス・トイレ
バス・トイレ別
浴室乾燥機
温水洗浄便座
独立洗面台
シャワー付洗面化粧台
玄関
TVモニタ付インターホン
オートロック
収納
クローゼット
シューズボックス
室内設備
エアコン
フローリング
室内洗濯機置場
照明器具付
位置・立地
2階以上
最上階
角部屋
インフラ
インターネット可
都市ガス
入居条件
オンライン相談可
オンライン内見可
保証人不要
ライフステージ
一人暮らしに人気の設備
カップルに人気の設備
家族に人気の設備
夫婦に人気の設備
三世代で人気の設備
こだわり
雨の日でも洗濯したい
洋室で暮らしたい
お得な条件
インターネット無料
KEIAI RESIDENCE 西所沢Ⅲ 201号室の賃貸契約情報
毎月支払う |
家賃6.2万円/月共益費3,500円/月 |
|---|---|
初期費用 |
敷金-礼金1ヶ月 (6.2万円)保証金-敷引き償却金- |
更新料 |
62,000円 |
鍵交換費用 |
27,500円 |
室内清掃費用 |
55,000円 |
駐車場料金 |
無 |
損保・ |
借家賠付きの火災保険にご加入いただきます。 |
保証会社 |
加入要 保証会社利用料:初回50% 月額900円 |
契約期間 |
2年 |
入居可能日 |
2026年06月 |
フリーレント期間 |
- |
取引形態 |
一般媒介 |
備考 |
- |
KEIAI RESIDENCE 西所沢Ⅲ 201号室の建物情報
建物名称 |
KEIAI RESIDENCE 西所沢Ⅲ |
|---|---|
最寄駅 |
|
所在地 |
埼玉県所沢市大字山口 |
階層 |
2階部分(地上2階建) |
構造 |
木造 |
築年数 |
新築 |
駐車場 |
無 |
小学校学区 |
泉小学校 |
中学校学区 |
山口中学校 |
- 学区データについて
- ※学区データは必ずしも正確とは限りません。詳細に関しては最寄店舗または各自治体の教育委員会に必ずご確認ください。
無料この物件に問い合わせ
- KEIAI RESIDENCE 西所沢Ⅲ 201号室

-
6.2万円
(共益費
3,500円)
- 敷
- -
- 礼
- 1ヶ月
- 保
- -
- 償
- -
KEIAI RESIDENCE 西所沢Ⅲ 201号室の物件のお問い合わせ先・取り扱い店舗
ハウスコム 所沢駅前店
- アクセス
-
西武池袋線・豊島線「所沢駅」西口徒歩2分
- 住所
- 〒359-1123 埼玉県所沢市日吉町11−20 フジビル 5階
- 営業時間
- 10:00~18:00
- 定休日
- 水曜日
- 営業エリア
- 所沢市,東村山市,入間市,清瀬市,狭山市,飯能市.日高市
- 取引態様
- 賃貸仲介業


















