パークグレイス駒込 703号室(7階/2LDK)の賃貸物件(賃貸マンション)
東京都豊島区にあるパークグレイス駒込 703号室はエアコン、最上階、CATV、CS、オンライン相談可などが特徴です。最寄り駅の山手線駒込駅から徒歩7分です。パークグレイス駒込 703号室の詳細はハウスコム 池袋西口店までお気軽にお問い合わせください!
情報更新日:
次回更新予定日:
※次回更新予定日について:お店側では順次空室確認を行っていますが、次回更新予定日までに空室確認が行えない場合には、この物件情報は自動的に削除されます。
パークグレイス駒込 703号室の賃貸物件部屋概要
家賃 |
27.4万円
初期費用を |
|---|---|
共益費 |
15,000円
入居可能時期 |
敷金/礼金 |
1ヶ月 / 1ヶ月 |
保証金/ |
- / - |
最寄駅 |
|
所在地 |
東京都豊島区駒込 |
部屋番号 |
703号室 |
間取り |
2LDK(洋4.7・洋6.2・LDK13.4) |
専有面積 |
56.73㎡ |
築年数 |
2007年3月(築20年) |
階数 |
7階部分(地上7階地下1階建) |
方位・位置 |
南西 / その他 |
物件種別 |
賃貸マンション |
構造 |
RC |
駐車場 |
- |
小学校学区 |
駒込小学校 |
中学校学区 |
駒込中学校 |
他の空き部屋 |
202号室 |
- 学区データについて
- ※学区データは必ずしも正確とは限りません。詳細に関しては最寄店舗または各自治体の教育委員会に必ずご確認ください。
パークグレイス駒込 703号室の特徴
契約条件
この物件は、2人入居もご契約できます。 ペットの飼育もご相談ください。 また、ご契約時に保証人は不要です。
セキュリティ
この物件の建物には、オートロックや宅配ボックスが設置されております。
室内設備
システムキッチンが備え付けられています。 お風呂とトイレは別です。お風呂には、追い焚き機能が備わっています。 女性に嬉しい設備のシャワーの付いている洗面化粧台があります。 洗濯に便利な設備として、室内洗濯機置場があります。浴室乾燥機も設置されているので、梅雨時の生乾き臭も比較的防ぐことができます。
居室状況
お部屋の床は、フローリングとなっており、エアコンと一部床下暖房が設置されています。 収納スペースとして、基本的な居室にクローゼットがあります。
建物設備共用部分
居室外の専有スペースとして、洗濯物を干すなどの用途として利用できるバルコニーがあります。 建物の共用スペースに、日々の出入に便利なエレベーターや、急な外出や不在がちのご家庭の荷物受け取りに便利な宅配ボックスが設置されています。
周辺施設
この物件の学区は、駒込小学校区・駒込中学校区です。
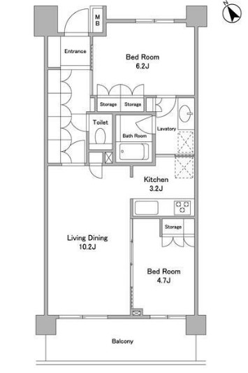
パークグレイス駒込 703号室の間取り
間取り:2LDK
間取詳細:2LDK(洋4.7・洋6.2・LDK13.4)
専有面積:56.73㎡
方位:南西
部屋位置:その他
パークグレイス駒込 703号室の設備
キッチン
システムキッチン
バス・トイレ
バス・トイレ別
追い焚き
浴室乾燥機
独立洗面台
シャワー付洗面化粧台
玄関
オートロック
宅配ボックス
収納
クローゼット
バルコニー
バルコニー
ルーフバルコニー
室内設備
エアコン
フローリング
床下暖房
室内洗濯機置場
位置・立地
2階以上
最上階
インフラ
インターネット可
CATV
BS
CS
都市ガス
建物設備
エレベーター
入居条件
ペット可・相談
2人入居可
オンライン相談可
オンライン内見可
保証人不要
ライフステージ
一人暮らしに人気の設備
カップルに人気の設備
家族に人気の設備
夫婦に人気の設備
三世代で人気の設備
こだわり
外で子どもと遊びたい
雨の日でも洗濯したい
洋室で暮らしたい
趣味
ガーデニングが好き
パークグレイス駒込 703号室の賃貸契約情報
毎月支払う |
家賃27.4万円/月共益費15,000円/月 |
|---|---|
初期費用 |
敷金1ヶ月 (27.4万円)礼金1ヶ月 (27.4万円)保証金-敷引き償却金- |
更新料 |
274,000円 |
鍵交換費用 |
44,000円 |
室内清掃費用 |
59,840円 |
エアコン清掃費 |
22,000円 |
駐車場料金 |
- |
損保・ |
借家賠付きの火災保険にご加入いただきます。 |
保証会社 |
加入要 保証会社利用料:保証料:賃料等の50%(最低2万)、月額保証料:賃料等の1%(更新料無) |
契約期間 |
2年 |
入居可能日 |
2026年06月上旬 |
フリーレント期間 |
- |
取引形態 |
一般媒介 |
備考 |
- |
パークグレイス駒込 703号室の建物情報
建物名称 |
パークグレイス駒込 |
|---|---|
最寄駅 |
|
所在地 |
東京都豊島区駒込 |
階層 |
7階部分(地上7階地下1階建) |
構造 |
RC |
築年数 |
2007年3月(築20年) |
駐車場 |
- |
小学校学区 |
駒込小学校 |
中学校学区 |
駒込中学校 |
- 学区データについて
- ※学区データは必ずしも正確とは限りません。詳細に関しては最寄店舗または各自治体の教育委員会に必ずご確認ください。
無料この物件に問い合わせ
- パークグレイス駒込 703号室

-
27.4万円
(共益費
15,000円)
- 敷
- 1ヶ月
- 礼
- 1ヶ月
- 保
- -
- 償
- -
パークグレイス駒込 703号室の物件のお問い合わせ先・取り扱い店舗
ハウスコム 池袋西口店
- アクセス
-
山手線「池袋駅」西口徒歩1分
東京メトロ 丸ノ内線「池袋駅」D11出口徒歩1分
- 住所
- 〒171-0021 東京都豊島区西池袋1丁目19−6 松長ビル 2階
- 営業時間
- 10:00~18:00
- 定休日
- なし
- 営業エリア
- 豊島区 板橋区 新宿区 練馬区 文京区
- 取引態様
- 賃貸仲介業






















