レオパレスサザンクロスプラザ 303号室(3階/1K)の賃貸物件(賃貸マンション)
神奈川県相模原市南区にあるレオパレスサザンクロスプラザ 303号室は電気コンロ、TVモニタ付インターホン、エアコン、2階以上、エレベーターなどが特徴です。最寄り駅の小田急江ノ島線東林間駅から徒歩2分です。レオパレスサザンクロスプラザ 303号室の詳細はハウスコム 町田駅前店までお気軽にお問い合わせください!
情報更新日:
次回更新予定日:
※次回更新予定日について:お店側では順次空室確認を行っていますが、次回更新予定日までに空室確認が行えない場合には、この物件情報は自動的に削除されます。
レオパレスサザンクロスプラザ 303号室の賃貸物件部屋概要
家賃 |
7.3万円
初期費用を |
|---|---|
共益費 |
6,500円
入居可能時期 |
敷金/礼金 |
- / 73,000円 |
保証金/ |
- / - |
最寄駅 |
|
所在地 |
神奈川県相模原市南区東林間 |
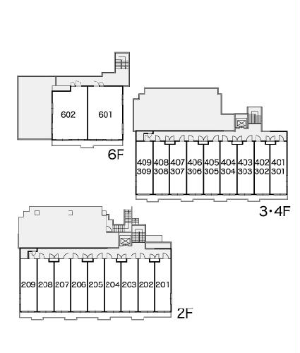
部屋番号 |
303号室 |
間取り |
1K |
専有面積 |
23.88㎡ |
築年数 |
1996年1月(築31年) |
階数 |
3階部分(地上6階建) |
方位・位置 |
ー / その他 |
物件種別 |
賃貸マンション |
構造 |
RC |
駐車場 |
無 |
小学校学区 |
くぬぎ台小学校 |
中学校学区 |
上鶴間中学校 |
他の空き部屋 |
205号室 301号室 309号室 401号室 403号室 407号室 |
- 学区データについて
- ※学区データは必ずしも正確とは限りません。詳細に関しては最寄店舗または各自治体の教育委員会に必ずご確認ください。
レオパレスサザンクロスプラザ 303号室の特徴
契約条件
敷金が無料なため、初期費用が比較的安くなる傾向にあります。
セキュリティ
来客時には居室内のテレビモニターにて訪問者の顔を確認することができます。
室内設備
電気コンロが備え付けられています。 洗濯に便利な設備として、室内洗濯機置場があります。
居室状況
エアコンが設置されています。
建物設備共用部分
居室外の専有スペースとして、洗濯物を干すなどの用途として利用できるバルコニーがあります。 建物の共用スペースに、日々の出入に便利なエレベーターが設置されています。
周辺施設
この物件の学区は、くぬぎ台小学校区・上鶴間中学校区です。
レオパレスサザンクロスプラザ 303号室の間取り
間取り:1K
間取詳細:1K
専有面積:23.88㎡
方位:ー
部屋位置:その他
レオパレスサザンクロスプラザ 303号室の設備
キッチン
電気コンロ
玄関
TVモニタ付インターホン
バルコニー
バルコニー
ルーフバルコニー
室内設備
エアコン
室内洗濯機置場
位置・立地
2階以上
建物設備
エレベーター
ライフステージ
一人暮らしに人気の設備
カップルに人気の設備
家族に人気の設備
夫婦に人気の設備
三世代で人気の設備
こだわり
外で子どもと遊びたい
雨の日でも洗濯したい
趣味
ガーデニングが好き
レオパレスサザンクロスプラザ 303号室の賃貸契約情報
毎月支払う |
家賃7.3万円/月共益費6,500円/月 |
|---|---|
初期費用 |
敷金-礼金73,000円保証金-敷引き償却金- |
更新料 |
- |
鍵交換費用 |
16,500円 |
室内清掃費用 |
41,800円 |
抗菌施工(任意) |
23,760円 |
駐車場料金 |
無 |
損保・ |
借家賠付きの火災保険にご加入いただきます。 |
保証会社 |
加入要 保証会社利用料:保証料:95990円(契約内容により100~120%で変動有)※記載金額は120%の場合 |
契約期間 |
- |
入居可能日 |
2026年05月下旬 |
フリーレント期間 |
- |
取引形態 |
一般媒介 |
備考 |
- |
レオパレスサザンクロスプラザ 303号室の建物情報
建物名称 |
レオパレスサザンクロスプラザ |
|---|---|
最寄駅 |
|
所在地 |
神奈川県相模原市南区東林間 |
階層 |
3階部分(地上6階建) |
構造 |
RC |
築年数 |
1996年1月(築31年) |
駐車場 |
無 |
小学校学区 |
くぬぎ台小学校 |
中学校学区 |
上鶴間中学校 |
- 学区データについて
- ※学区データは必ずしも正確とは限りません。詳細に関しては最寄店舗または各自治体の教育委員会に必ずご確認ください。
無料この物件に問い合わせ
- レオパレスサザンクロスプラザ 303号室

-
7.3万円
(共益費
6,500円)
- 敷
- -
- 礼
- 73,000円
- 保
- -
- 償
- -
レオパレスサザンクロスプラザ 303号室の物件のお問い合わせ先・取り扱い店舗
ハウスコム 町田駅前店
- アクセス
-
小田急小田原線「町田駅」西口徒歩1分
横浜線「町田駅」徒歩3分
- 住所
- 〒194-0013 東京都町田市原町田6丁目3−3 町映ビル 3F
- 営業時間
- 10:00~18:00
- 定休日
- 水曜日
- 営業エリア
- 町田市、相模原市南区、相模原市中央区、座間市、大和市、川崎市麻生区
- 取引態様
- 賃貸仲介業











