エスリード弁天町桜通レジデンス 410号室(4階/1K)の賃貸物件(賃貸マンション)
大阪府大阪市港区にあるエスリード弁天町桜通レジデンス 410号室はガスコンロ、バス・トイレ別、独立洗面台、オートロック、ルーフバルコニーなどが特徴です。最寄り駅の大阪メトロ 中央線弁天町駅から徒歩9分です。エスリード弁天町桜通レジデンス 410号室の詳細はハウスコム 本町店までお気軽にお問い合わせください!
情報更新日:
次回更新予定日:
※次回更新予定日について:お店側では順次空室確認を行っていますが、次回更新予定日までに空室確認が行えない場合には、この物件情報は自動的に削除されます。
エスリード弁天町桜通レジデンス 410号室の賃貸物件部屋概要
家賃 |
6.43万円
初期費用を |
|---|---|
共益費 |
8,000円
入居可能時期 |
敷金/礼金 |
- / 72,300円 |
保証金/ |
- / - |
最寄駅 |
|
所在地 |
大阪府大阪市港区弁天 |
部屋番号 |
410号室 |
間取り |
1K(洋6) |
専有面積 |
21.09㎡ |
築年数 |
2024年9月(築2年) |
階数 |
4階部分(地上10階建) |
方位・位置 |
北東 / その他 |
物件種別 |
賃貸マンション |
構造 |
RC |
駐車場 |
- |
小学校学区 |
弁天小学校 |
中学校学区 |
市岡中学校 |
他の空き部屋 |
***号室 208号室 211号室 302号室 305号室 306号室 308号室 310号室 406号室 ***号室 ***号室 ***号室 |
- 学区データについて
- ※学区データは必ずしも正確とは限りません。詳細に関しては最寄店舗または各自治体の教育委員会に必ずご確認ください。
エスリード弁天町桜通レジデンス 410号室の特徴
契約条件
ペットの飼育もご相談ください。 敷金が無料なため、初期費用が比較的安くなる傾向にあります。
セキュリティ
この物件の建物には、オートロックや防犯カメラや宅配ボックスが設置されており、来客時には居室内のテレビモニターにて訪問者の顔を確認することができます。
室内設備
システムキッチンには、2つ以上のガスコンロが備え付けられています。 トイレは、温水洗浄便座機能付きになります。 女性に嬉しい設備の独立した洗面化粧台があります。 洗濯に便利な設備として、室内洗濯機置場があります。浴室乾燥機も設置されているので、梅雨時の生乾き臭も比較的防ぐことができます。
居室状況
エアコンが設置されています。 家具が備え付けられており、入居後すぐ生活が始められます。 収納スペースとして、基本的な居室にクローゼットを設置、玄関にはシューズボックスがあります。
建物設備共用部分
居室外の専有スペースとして、洗濯物を干すなどの用途として利用できるバルコニーがあります。 建物の共用スペースに、日々の出入に便利なエレベーターや、いざという時の防犯カメラや、急な外出や不在がちのご家庭の荷物受け取りに便利な宅配ボックスが設置されています。 駐輪場が利用できます。
周辺施設
この物件の学区は、弁天小学校区・市岡中学校区です。
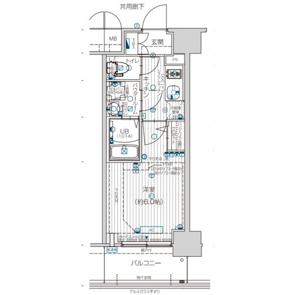
エスリード弁天町桜通レジデンス 410号室の間取り
間取り:1K
間取詳細:1K(洋6)
専有面積:21.09㎡
方位:北東
部屋位置:その他
エスリード弁天町桜通レジデンス 410号室の設備
キッチン
システムキッチン
ガスコンロ
ガスコンロ二口以上
バス・トイレ
バス・トイレ別
浴室乾燥機
温水洗浄便座
独立洗面台
玄関
TVモニタ付インターホン
オートロック
宅配ボックス
収納
クローゼット
シューズボックス
バルコニー
バルコニー
ルーフバルコニー
室内設備
エアコン
室内洗濯機置場
家具付
位置・立地
2階以上
インフラ
インターネット可
都市ガス
建物設備
エレベーター
防犯カメラ
駐輪場
入居条件
ペット可・相談
オンライン相談可
オンライン内見可
ライフステージ
一人暮らしに人気の設備
カップルに人気の設備
家族に人気の設備
夫婦に人気の設備
三世代で人気の設備
こだわり
セキュリティ対策重視
外で子どもと遊びたい
雨の日でも洗濯したい
趣味
ガーデニングが好き
エスリード弁天町桜通レジデンス 410号室の賃貸契約情報
毎月支払う |
家賃6.43万円/月共益費8,000円/月 |
|---|---|
初期費用 |
敷金-礼金72,300円保証金-敷引き償却金- |
更新料 |
64,300円 |
鍵交換費用 |
24,200円 |
室内清掃費用 |
- |
エスリードクラブ入会費 |
19,800円 |
契約事務手数料 |
22,000円 |
駐車場料金 |
- |
損保・ |
借家賠付きの火災保険にご加入いただきます。 |
保証会社 |
加入要 保証会社:エポスカード 保証会社利用料:初回保証料:月額総賃料の50% 月次保証料:月額総賃料の1.5% |
契約期間 |
2年 |
入居可能日 |
2026年05月 |
フリーレント期間 |
- |
取引形態 |
一般媒介 |
備考 |
ペット飼育可能。小型犬のみ(2匹迄、1匹につき月額100円) 1年未満の解約の場合は短期違約特約有り 違約金は賃料(共益費含む)の2ヶ月分 |
エスリード弁天町桜通レジデンス 410号室の建物情報
建物名称 |
エスリード弁天町桜通レジデンス |
|---|---|
最寄駅 |
|
所在地 |
大阪府大阪市港区弁天 |
階層 |
4階部分(地上10階建) |
構造 |
RC |
築年数 |
2024年9月(築2年) |
駐車場 |
- |
小学校学区 |
弁天小学校 |
中学校学区 |
市岡中学校 |
- 学区データについて
- ※学区データは必ずしも正確とは限りません。詳細に関しては最寄店舗または各自治体の教育委員会に必ずご確認ください。
無料この物件に問い合わせ
- エスリード弁天町桜通レジデンス 410号室

-
6.43万円
(共益費
8,000円)
- 敷
- -
- 礼
- 72,300円
- 保
- -
- 償
- -
エスリード弁天町桜通レジデンス 410号室の物件のお問い合わせ先・取り扱い店舗
ハウスコム 本町店
- アクセス
-
大阪メトロ 御堂筋線「本町駅」徒歩1分
- 住所
- 〒541-0054 大阪府大阪市中央区南本町3-6-7 富士本町ビル1F
- 営業時間
- 10:00~18:00
- 定休日
- なし(GW休業5/3~5/6・年末年始12月25日~1月3日)
- 営業エリア
- 大阪市中央区,大阪市北区,大阪市西区,大阪市福島区,大阪市浪速区.大阪市東成区,大阪市港区,大阪市城東区
- 取引態様
- 賃貸仲介業






































