メインステージ南砂町Ⅱ 1205号室(12階/1R)の賃貸物件(賃貸マンション)
東京都江東区にあるメインステージ南砂町Ⅱ 1205号室はシステムキッチン、バス・トイレ別、宅配ボックス、シューズボックス、室内洗濯機置場などが特徴です。最寄り駅の東京メトロ 東西線南砂町駅から徒歩7分です。メインステージ南砂町Ⅱ 1205号室の詳細はハウスコム 事業戦略室までお気軽にお問い合わせください!
情報更新日:
次回更新予定日:
※次回更新予定日について:お店側では順次空室確認を行っていますが、次回更新予定日までに空室確認が行えない場合には、この物件情報は自動的に削除されます。
メインステージ南砂町Ⅱ 1205号室の賃貸物件部屋概要
家賃 |
11.65万円
初期費用を |
|---|---|
共益費 |
15,000円
入居可能時期 |
敷金/礼金 |
- / - |
保証金/ |
- / - |
最寄駅 |
|
所在地 |
東京都江東区南砂 |
部屋番号 |
1205号室 |
間取り |
1R(洋8.8) |
専有面積 |
26.04㎡ |
築年数 |
2025年6月 |
階数 |
12階部分(地上14階建) |
方位・位置 |
西 / その他 |
物件種別 |
賃貸マンション |
構造 |
RC |
駐車場 |
- |
小学校学区 |
第四砂町小学校 |
中学校学区 |
第二南砂中学校 |
他の空き部屋 |
1403号室 1407号室 |
- 学区データについて
- ※学区データは必ずしも正確とは限りません。詳細に関しては最寄店舗または各自治体の教育委員会に必ずご確認ください。
メインステージ南砂町Ⅱ 1205号室の特徴
契約条件
ペットの飼育もご相談ください。 敷金と礼金が無料なため、初期費用が比較的安くなる傾向にあります。
セキュリティ
この物件の建物には、オートロックや防犯カメラや宅配ボックスが設置されております。
室内設備
システムキッチンには、ガスコンロが備え付けられています。 トイレは、温水洗浄便座機能付きになります。 洗濯に便利な設備として、室内洗濯機置場があります。浴室乾燥機も設置されているので、梅雨時の生乾き臭も比較的防ぐことができます。
居室状況
照明器具が備え付けられており、入居後すぐ生活が始められます。 収納スペースとして、基本的な居室にクローゼットを設置、玄関にはシューズボックスがあります。
建物設備共用部分
居室外の専有スペースとして、洗濯物を干すなどの用途として利用できるバルコニーがあります。 建物の共用スペースに、日々の出入に便利なエレベーターや、いざという時の防犯カメラや、急な外出や不在がちのご家庭の荷物受け取りに便利な宅配ボックスや、居室内を常に清潔に保てる24時間利用可能なゴミ捨て置き場が設置されています。
周辺施設
この物件の学区は、第四砂町小学校区・第二南砂中学校区です。
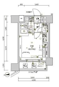
メインステージ南砂町Ⅱ 1205号室の間取り
間取り:1R
間取詳細:1R(洋8.8)
専有面積:26.04㎡
方位:西
部屋位置:その他
メインステージ南砂町Ⅱ 1205号室の設備
キッチン
システムキッチン
ガスコンロ
バス・トイレ
バス・トイレ別
浴室乾燥機
温水洗浄便座
玄関
オートロック
宅配ボックス
収納
クローゼット
シューズボックス
バルコニー
バルコニー
ルーフバルコニー
室内設備
室内洗濯機置場
照明器具付
位置・立地
2階以上
インフラ
都市ガス
建物設備
エレベーター
防犯カメラ
24時間ゴミ出しOK
入居条件
ペット可・相談
ライフステージ
一人暮らしに人気の設備
カップルに人気の設備
家族に人気の設備
夫婦に人気の設備
三世代で人気の設備
こだわり
タイパ重視
外で子どもと遊びたい
雨の日でも洗濯したい
趣味
ガーデニングが好き
メインステージ南砂町Ⅱ 1205号室の賃貸契約情報
毎月支払う |
家賃11.65万円/月共益費15,000円/月 |
|---|---|
初期費用 |
敷金-礼金-保証金-敷引き償却金- |
更新料 |
174,750円 |
鍵交換費用 |
- |
室内清掃費用 |
- |
退去時鍵交換費用(契約時請求) |
29,700円 |
ルームクリーニング費用(退去時請求) |
49,500円 |
AMLクラブサポート費用(契約時請求) |
16,500円 |
駐車場料金 |
- |
損保・ |
借家賠付きの火災保険にご加入いただきます。 |
保証会社 |
加入要 保証会社利用料:賃料と管理費の50%~ |
契約期間 |
2年 |
入居可能日 |
2026年06月下旬 |
フリーレント期間 |
- |
取引形態 |
一般媒介 |
備考 |
- |
メインステージ南砂町Ⅱ 1205号室の建物情報
建物名称 |
メインステージ南砂町Ⅱ |
|---|---|
最寄駅 |
|
所在地 |
東京都江東区南砂 |
階層 |
12階部分(地上14階建) |
構造 |
RC |
築年数 |
2025年6月 |
駐車場 |
- |
小学校学区 |
第四砂町小学校 |
中学校学区 |
第二南砂中学校 |
- 学区データについて
- ※学区データは必ずしも正確とは限りません。詳細に関しては最寄店舗または各自治体の教育委員会に必ずご確認ください。
無料この物件に問い合わせ
- メインステージ南砂町Ⅱ 1205号室

-
11.65万円
(共益費
15,000円)
- 敷
- -
- 礼
- -
- 保
- -
- 償
- -
メインステージ南砂町Ⅱ 1205号室の物件のお問い合わせ先・取り扱い店舗
ハウスコム 事業戦略室
- アクセス
-
山手線「品川駅」港南口徒歩3分
- 住所
- 〒108-0075 東京都港区港南2-16-1 品川イーストワンタワー9階
- 営業時間
- 10:00~17:00
- 定休日
- 土曜日・日曜日(祝日定休)
- 営業エリア
- 北区、荒川区、豊島区、文京区、台東区、中央区、新宿区、千代田区、渋谷区、港区、品川区
- 取引態様
- 賃貸仲介業




















