ルフォンプログレ北新宿 903号室(9階/1LDK)の賃貸物件(賃貸マンション)
東京都新宿区にあるルフォンプログレ北新宿 903号室はオートロック、宅配ボックス、ルーフバルコニー、2階以上、即入居可などが特徴です。最寄り駅の総武線・中央線各駅停車大久保駅から徒歩3分です。ルフォンプログレ北新宿 903号室の詳細はハウスコム 明大前店までお気軽にお問い合わせください!
情報更新日:
次回更新予定日:
※次回更新予定日について:お店側では順次空室確認を行っていますが、次回更新予定日までに空室確認が行えない場合には、この物件情報は自動的に削除されます。
ルフォンプログレ北新宿 903号室の賃貸物件部屋概要
家賃 |
27.2万円
初期費用を |
|---|---|
共益費 |
18,000円
入居可能時期 |
敷金/礼金 |
1ヶ月 / - |
保証金/ |
- / - |
最寄駅 |
|
所在地 |
東京都新宿区北新宿 |
部屋番号 |
903号室 |
間取り |
1LDK |
専有面積 |
40.76㎡ |
築年数 |
新築 |
階数 |
9階部分(地上14階建) |
方位・位置 |
西 / その他 |
物件種別 |
賃貸マンション |
構造 |
SRC |
駐車場 |
無 |
小学校学区 |
淀橋第四小学校 |
中学校学区 |
西新宿中学校 |
他の空き部屋 |
1002号室 1009号室 1010号室 1011号室 1101号室 1103号室 1107号室 1202号室 1208号室 1209号室 601号室 603号室 607号室 608号室 609号室 611号室 709号室 710号室 809号室 810号室 901号室 904号室 905号室 |
- 学区データについて
- ※学区データは必ずしも正確とは限りません。詳細に関しては最寄店舗または各自治体の教育委員会に必ずご確認ください。
ルフォンプログレ北新宿 903号室の特徴
-
一人暮らしに人気の設備

-
カップルに人気の設備

-
家族に人気の設備

-
夫婦に人気の設備

-
三世代で人気の設備

-
外で子どもと遊びたい

-
雨の日でも洗濯したい

-
洋室で暮らしたい

-
服やおしゃれが好き

-
ガーデニングが好き

契約条件
ペットの飼育や楽器演奏もご相談ください。 礼金が無料なため、初期費用が比較的安くなる傾向にあります。
セキュリティ
この物件の建物には、オートロックや宅配ボックスが設置されております。
室内設備
システムキッチンが備え付けられています。 お風呂とトイレは別です。お風呂には、追い焚き機能が備わっています。 女性に嬉しい設備の独立した洗面化粧台があります。 洗濯に便利な設備として、室内洗濯機置場があります。浴室乾燥機も設置されているので、梅雨時の生乾き臭も比較的防ぐことができます。
居室状況
お部屋の床は、フローリングとなっており、エアコンが設置されています。 収納スペースとして、基本的な居室にクローゼットを設置、通常よりも収納力の高いウォークインクローゼットがあります。
建物設備共用部分
居室外の専有スペースとして、洗濯物を干すなどの用途として利用できるバルコニーがあります。 建物の共用スペースに、日々の出入に便利なエレベーターや、急な外出や不在がちのご家庭の荷物受け取りに便利な宅配ボックスが設置されています。
周辺施設
この物件の学区は、淀橋第四小学校区・西新宿中学校区です。
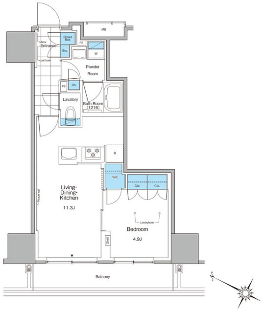
ルフォンプログレ北新宿 903号室の間取り
間取り:1LDK
間取詳細:1LDK
専有面積:40.76㎡
方位:西
部屋位置:その他
ルフォンプログレ北新宿 903号室の設備
キッチン
システムキッチン
バス・トイレ
バス・トイレ別
追い焚き
浴室乾燥機
独立洗面台
玄関
オートロック
宅配ボックス
収納
クローゼット
ウォークインクローゼット
バルコニー
バルコニー
ルーフバルコニー
室内設備
エアコン
フローリング
室内洗濯機置場
位置・立地
2階以上
インフラ
BS
CS
建物設備
エレベーター
入居条件
ペット可・相談
楽器可・相談
即入居可
ライフステージ
一人暮らしに人気の設備
カップルに人気の設備
家族に人気の設備
夫婦に人気の設備
三世代で人気の設備
こだわり
外で子どもと遊びたい
雨の日でも洗濯したい
洋室で暮らしたい
趣味
服やおしゃれが好き
ガーデニングが好き
お得な条件
フリーレント
ルフォンプログレ北新宿 903号室の賃貸契約情報
毎月支払う |
家賃27.2万円/月共益費18,000円/月 |
|---|---|
初期費用 |
敷金1ヶ月 (27.2万円)礼金-保証金-敷引き償却金- |
更新料 |
- |
鍵交換費用 |
- |
室内清掃費用 |
- |
室内清掃費 |
62,770円 |
駐車場料金 |
無 |
損保・ |
借家賠付きの火災保険にご加入いただきます。 |
保証会社 |
加入要 保証会社利用料:保証会社名:クレディセゾン・レジデントアシスタンス株式会社/初回保証委託料(最低15000円):月額賃料等の50%、 2年目以降:10000円/年 |
契約期間 |
定期借家 2年 |
入居可能日 |
即入居可 |
フリーレント期間 |
1ヶ月 |
取引形態 |
一般媒介 |
備考 |
- |
ルフォンプログレ北新宿 903号室の建物情報
建物名称 |
ルフォンプログレ北新宿 |
|---|---|
最寄駅 |
|
所在地 |
東京都新宿区北新宿 |
階層 |
9階部分(地上14階建) |
構造 |
SRC |
築年数 |
新築 |
駐車場 |
無 |
小学校学区 |
淀橋第四小学校 |
中学校学区 |
西新宿中学校 |
- 学区データについて
- ※学区データは必ずしも正確とは限りません。詳細に関しては最寄店舗または各自治体の教育委員会に必ずご確認ください。
無料この物件に問い合わせ
- ルフォンプログレ北新宿 903号室

-
27.2万円
(共益費
18,000円)
- 敷
- 1ヶ月
- 礼
- -
- 保
- -
- 償
- -
ルフォンプログレ北新宿 903号室の物件のお問い合わせ先・取り扱い店舗
ハウスコム 明大前店
- アクセス
-
京王線「明大前駅」中央口徒歩1分
京王井の頭線「明大前駅」中央口徒歩1分
- 住所
- 〒156-0043 東京都世田谷区松原2丁目44−1 グランシーン明大前 1階
- 営業時間
- 10:00~18:00
- 定休日
- なし
- 営業エリア
- 世田谷区・杉並区・渋谷区・中野区・新宿区・三鷹市・調布市
- 取引態様
- 賃貸仲介業










