雅ーヒルズ21 3A号室(3階/2LDK)の賃貸物件(賃貸アパート)
静岡県静岡市葵区にある雅ーヒルズ21 3A号室は温水洗浄便座、最上階、プロパンガス、防犯カメラ、事務所可・相談などが特徴です。最寄り駅の東海道本線(JR東海)静岡駅から2.4kmです。雅ーヒルズ21 3A号室の詳細はハウスコム 静岡北店までお気軽にお問い合わせください!
情報更新日:
次回更新予定日:
※次回更新予定日について:お店側では順次空室確認を行っていますが、次回更新予定日までに空室確認が行えない場合には、この物件情報は自動的に削除されます。
雅ーヒルズ21 3A号室の賃貸物件部屋概要
家賃 |
7.1万円
初期費用を |
|---|---|
共益費 |
-
入居可能時期 |
敷金/礼金 |
71,000円 / - |
保証金/ |
- / 1ヶ月 |
最寄駅 |
|
所在地 |
静岡県静岡市葵区田町 |
部屋番号 |
3A号室 |
間取り |
2LDK(他5・他12) |
専有面積 |
60.75㎡ |
築年数 |
2001年2月(築25年) |
階数 |
3階部分(地上3階建) |
方位・位置 |
南 / 角部屋 |
物件種別 |
賃貸アパート |
構造 |
鉄骨造 |
駐車場 |
11,000円 |
小学校学区 |
田町小学校 |
中学校学区 |
安倍川中学校 |
他の空き部屋 |
ー |
- 学区データについて
- ※学区データは必ずしも正確とは限りません。詳細に関しては最寄店舗または各自治体の教育委員会に必ずご確認ください。
雅ーヒルズ21 3A号室の特徴
契約条件
法人契約・事務所のご利用もご相談ください。 礼金が無料なため、初期費用が比較的安くなる傾向にあり、更新料が無料なので、長年お得に住み続けることができます。
セキュリティ
この物件の建物には、防犯カメラが設置されており、来客時には居室内のテレビモニターにて訪問者の顔を確認することができます。
室内設備
システムキッチンには、ガスコンロが備え付けられています。 トイレは、温水洗浄便座機能付きになります。 女性に嬉しい設備の独立した洗面化粧台があります。
居室状況
エアコンが設置されています。 収納スペースとして、玄関にはシューズボックスがあります。
建物設備共用部分
建物の共用スペースに、いざという時の防犯カメラが設置されています。
周辺施設
この物件の学区は、田町小学校区・安倍川中学校区です。
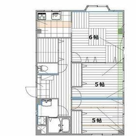
雅ーヒルズ21 3A号室の間取り
間取り:2LDK
間取詳細:2LDK(他5・他12)
専有面積:60.75㎡
方位:南
部屋位置:角部屋
雅ーヒルズ21 3A号室の設備
キッチン
システムキッチン
ガスコンロ
バス・トイレ
バス・トイレ別
温水洗浄便座
独立洗面台
玄関
TVモニタ付インターホン
収納
シューズボックス
室内設備
エアコン
デザイナーズ
位置・立地
2階以上
最上階
角部屋
南向き
インフラ
プロパンガス
建物設備
防犯カメラ
入居条件
事務所可・相談
ライフステージ
一人暮らしに人気の設備
カップルに人気の設備
家族に人気の設備
夫婦に人気の設備
三世代で人気の設備
こだわり
日当たり重視
お得な条件
更新料無料
雅ーヒルズ21 3A号室の賃貸契約情報
毎月支払う |
家賃7.1万円/月共益費- |
|---|---|
初期費用 |
敷金71,000円礼金-保証金-敷引き償却金1ヶ月 |
更新料 |
- |
鍵交換費用 |
16,500円 |
室内清掃費用 |
- |
エアコンクリーニング代 |
13,200円 |
駐車場料金 |
11,000円 |
損保・ |
借家賠付きの火災保険にご加入いただきます。 |
保証会社 |
加入要 保証会社利用料:月額賃料合計より、初回保証料:月額賃料の50%・年次更新料:12,000円・口座振替手数料:毎月330円 |
契約期間 |
2年 |
入居可能日 |
相談 |
フリーレント期間 |
- |
取引形態 |
一般媒介 |
備考 |
- |
雅ーヒルズ21 3A号室の建物情報
建物名称 |
雅ーヒルズ21 |
|---|---|
最寄駅 |
|
所在地 |
静岡県静岡市葵区田町 |
階層 |
3階部分(地上3階建) |
構造 |
鉄骨造 |
築年数 |
2001年2月(築25年) |
駐車場 |
11,000円 |
小学校学区 |
田町小学校 |
中学校学区 |
安倍川中学校 |
- 学区データについて
- ※学区データは必ずしも正確とは限りません。詳細に関しては最寄店舗または各自治体の教育委員会に必ずご確認ください。
無料この物件に問い合わせ
- 雅ーヒルズ21 3A号室

-
7.1万円
(共益費
-)
- 敷
- 71,000円
- 礼
- -
- 保
- -
- 償
- 1ヶ月
雅ーヒルズ21 3A号室の物件のお問い合わせ先・取り扱い店舗
ハウスコム 静岡北店
- アクセス
-
東海道本線(JR東海)「静岡駅」北口より徒歩5分
- 住所
- 〒420-0033 静岡県静岡市葵区昭和町10−6 第一富士岡 1階
- 営業時間
- 10:00~18:00
- 定休日
- なし(年末年始休業)
- 営業エリア
- 静岡市葵区、静岡市駿河区、静岡市清水区
- 取引態様
- 賃貸仲介業

















