八王子レジデンス 1103号室(11階/2LDK)の賃貸物件(賃貸マンション)
東京都八王子市にある八王子レジデンス 1103号室はバス・トイレ別、浴室乾燥機、オートロック、フローリング、防犯カメラなどが特徴です。最寄り駅の中央本線(JR東日本)八王子駅から徒歩9分です。八王子レジデンス 1103号室の詳細はハウスコム 立川南口店までお気軽にお問い合わせください!
情報更新日:
次回更新予定日:
※次回更新予定日について:お店側では順次空室確認を行っていますが、次回更新予定日までに空室確認が行えない場合には、この物件情報は自動的に削除されます。
八王子レジデンス 1103号室の賃貸物件部屋概要
家賃 |
24.9万円
初期費用を |
|---|---|
共益費 |
10,000円
入居可能時期 |
敷金/礼金 |
- / - |
保証金/ |
- / - |
最寄駅 |
|
所在地 |
東京都八王子市八日町 |
部屋番号 |
1103号室 |
間取り |
2LDK(LDK16.1・洋4.2・洋4.3・洋6) |
専有面積 |
68.25㎡ |
築年数 |
2024年11月(築2年) |
階数 |
11階部分(地上13階建) |
方位・位置 |
東 / その他 |
物件種別 |
賃貸マンション |
構造 |
RC |
駐車場 |
空無し |
小学校学区 |
第一小学校 |
中学校学区 |
第五中学校 |
他の空き部屋 |
1201号室 1301号室 202号室 704号室 |
- 学区データについて
- ※学区データは必ずしも正確とは限りません。詳細に関しては最寄店舗または各自治体の教育委員会に必ずご確認ください。
八王子レジデンス 1103号室の特徴
契約条件
敷金と礼金が無料なため、初期費用が比較的安くなる傾向にあります。
セキュリティ
この物件の建物には、オートロックや防犯カメラや宅配ボックスが設置されており、来客時には居室内のテレビモニターにて訪問者の顔を確認することができます。
室内設備
お風呂とトイレは別です。お風呂には、追い焚き機能が備わっています。 トイレは、温水洗浄便座機能付きになります。 洗濯に便利な設備として、浴室乾燥機も設置されているので、梅雨時の生乾き臭も比較的防ぐことができます。
居室状況
お部屋の床は、フローリングとなっており、エアコンと一部床下暖房が設置されています。 インターネットも無料で入居後すぐ生活が始められます。 収納スペースとして、基本的な居室にクローゼットがあります。
建物設備共用部分
建物の共用スペースに、日々の出入に便利なエレベーターや、いざという時の防犯カメラや、急な外出や不在がちのご家庭の荷物受け取りに便利な宅配ボックスが設置されています。
周辺施設
この物件の学区は、第一小学校区・第五中学校区です。
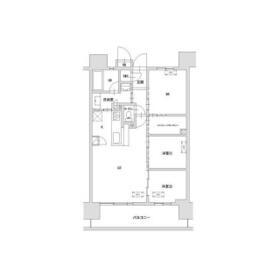
八王子レジデンス 1103号室の間取り
間取り:2LDK
間取詳細:2LDK(LDK16.1・洋4.2・洋4.3・洋6)
専有面積:68.25㎡
方位:東
部屋位置:その他
八王子レジデンス 1103号室の設備
バス・トイレ
バス・トイレ別
追い焚き
浴室乾燥機
温水洗浄便座
玄関
TVモニタ付インターホン
オートロック
宅配ボックス
収納
クローゼット
室内設備
エアコン
フローリング
床下暖房
位置・立地
2階以上
建物設備
エレベーター
防犯カメラ
ライフステージ
一人暮らしに人気の設備
カップルに人気の設備
家族に人気の設備
夫婦に人気の設備
三世代で人気の設備
こだわり
セキュリティ対策重視
雨の日でも洗濯したい
洋室で暮らしたい
趣味
オークション・通販が好き
お得な条件
フリーレント
インターネット無料
八王子レジデンス 1103号室の賃貸契約情報
毎月支払う |
家賃24.9万円/月共益費10,000円/月 |
|---|---|
初期費用 |
敷金-礼金-保証金-敷引き償却金- |
更新料 |
249,000円 |
鍵交換費用 |
- |
室内清掃費用 |
- |
鍵設定費用 |
11,000円 |
駐車場料金 |
空無し |
損保・ |
借家賠付きの火災保険にご加入いただきます。 |
保証会社 |
加入要 保証会社利用料:株式会社エポスカード 初回保証料:月額賃料等の50%、月額保証料:月額賃料等の1%がかかります |
契約期間 |
2年 |
入居可能日 |
相談 |
フリーレント期間 |
3ヶ月 |
取引形態 |
一般媒介 |
備考 |
- |
八王子レジデンス 1103号室の建物情報
建物名称 |
八王子レジデンス |
|---|---|
最寄駅 |
|
所在地 |
東京都八王子市八日町 |
階層 |
11階部分(地上13階建) |
構造 |
RC |
築年数 |
2024年11月(築2年) |
駐車場 |
空無し |
小学校学区 |
第一小学校 |
中学校学区 |
第五中学校 |
- 学区データについて
- ※学区データは必ずしも正確とは限りません。詳細に関しては最寄店舗または各自治体の教育委員会に必ずご確認ください。
無料この物件に問い合わせ
- 八王子レジデンス 1103号室

-
24.9万円
(共益費
10,000円)
- 敷
- -
- 礼
- -
- 保
- -
- 償
- -
八王子レジデンス 1103号室の物件のお問い合わせ先・取り扱い店舗
ハウスコム 立川南口店
- アクセス
-
中央本線(JR東日本)「立川駅」南口徒歩1分
- 住所
- 〒190-0023 東京都立川市柴崎町3丁目6−1 立川Nビル 1階
- 営業時間
- 10:00~18:00
- 定休日
- なし
- 営業エリア
- 立川市・日野市・昭島市・国立市・国分寺市・東大和市・武蔵村山市・福生市・あきる野市・羽村市・青梅市・西多摩郡
- 取引態様
- 賃貸仲介業




















