Alivis浪速東SoL TERRACE 901号室(9階/1LDK)の賃貸物件(賃貸マンション)
大阪府大阪市浪速区にあるAlivis浪速東SoL TERRACE 901号室はバス・トイレ別、温水洗浄便座、独立洗面台、エレベーター、ペット可・相談などが特徴です。最寄り駅の大阪環状線芦原橋駅から徒歩3分です。Alivis浪速東SoL TERRACE 901号室の詳細はハウスコム 本町店までお気軽にお問い合わせください!
情報更新日:
次回更新予定日:
※次回更新予定日について:お店側では順次空室確認を行っていますが、次回更新予定日までに空室確認が行えない場合には、この物件情報は自動的に削除されます。
Alivis浪速東SoL TERRACE 901号室の賃貸物件部屋概要
家賃 |
12.5万円
初期費用を |
|---|---|
共益費 |
10,000円
入居可能時期 |
敷金/礼金 |
- / 1ヶ月 |
保証金/ |
- / - |
最寄駅 |
|
所在地 |
大阪府大阪市浪速区浪速東 |
部屋番号 |
901号室 |
間取り |
1LDK |
専有面積 |
37.58㎡ |
築年数 |
新築 |
階数 |
9階部分(地上11階建) |
方位・位置 |
北 / 角部屋 |
物件種別 |
賃貸マンション |
構造 |
RC |
駐車場 |
27,500円 |
小学校学区 |
栄小学校 |
中学校学区 |
難波中学校 |
他の空き部屋 |
***号室 401号室 ***号室 402号室 403号室 404号室 405号室 406号室 407号室 408号室 409号室 410号室 ***号室 411号室 412号室 ***号室 ***号室 ***号室 ***号室 ***号室 ***号室 ***号室 ***号室 ***号室 ***号室 902号室 ***号室 ***号室 ***号室 906号室 ***号室 907号室 ***号室 ***号室 ***号室 ***号室 911号室 ***号室 912号室 ***号室 |
- 学区データについて
- ※学区データは必ずしも正確とは限りません。詳細に関しては最寄店舗または各自治体の教育委員会に必ずご確認ください。
Alivis浪速東SoL TERRACE 901号室の特徴
-
一人暮らしに人気の設備

-
カップルに人気の設備

-
家族に人気の設備

-
夫婦に人気の設備

-
三世代で人気の設備

-
セキュリティ対策重視

-
外で子どもと遊びたい

-
雨の日でも洗濯したい

-
推し活グッズを飾りたい

-
オークション・通販が好き

-
ガーデニングが好き

契約条件
ペットの飼育もご相談ください。 敷金が無料なため、初期費用が比較的安くなる傾向にあります。
セキュリティ
この物件の建物には、オートロックや防犯カメラや宅配ボックスが設置されており、来客時には居室内のテレビモニターにて訪問者の顔を確認することができます。
室内設備
システムキッチンが備え付けられています。 トイレは、温水洗浄便座機能付きになります。 女性に嬉しい設備の独立した洗面化粧台があります。 洗濯に便利な設備として、浴室乾燥機も設置されているので、梅雨時の生乾き臭も比較的防ぐことができます。
居室状況
エアコンが設置されています。 インターネットも無料で入居後すぐ生活が始められます。
建物設備共用部分
居室外の専有スペースとして、洗濯物を干すなどの用途として利用できるバルコニーがあります。 建物の共用スペースに、日々の出入に便利なエレベーターや、いざという時の防犯カメラや、急な外出や不在がちのご家庭の荷物受け取りに便利な宅配ボックスが設置されています。 駐輪場、バイク置き場が利用できます。
周辺施設
この物件の学区は、栄小学校区・難波中学校区です。
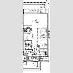
Alivis浪速東SoL TERRACE 901号室の間取り
間取り:1LDK
間取詳細:1LDK
専有面積:37.58㎡
方位:北
部屋位置:角部屋
Alivis浪速東SoL TERRACE 901号室の設備
キッチン
システムキッチン
カウンターキッチン
バス・トイレ
バス・トイレ別
浴室乾燥機
温水洗浄便座
独立洗面台
玄関
TVモニタ付インターホン
オートロック
宅配ボックス
バルコニー
バルコニー
ルーフバルコニー
室内設備
エアコン
位置・立地
2階以上
角部屋
建物設備
エレベーター
防犯カメラ
駐輪場
バイク置き場
入居条件
ペット可・相談
オンライン相談可
オンライン内見可
ライフステージ
一人暮らしに人気の設備
カップルに人気の設備
家族に人気の設備
夫婦に人気の設備
三世代で人気の設備
こだわり
セキュリティ対策重視
外で子どもと遊びたい
雨の日でも洗濯したい
趣味
推し活グッズを飾りたい
オークション・通販が好き
ガーデニングが好き
お得な条件
インターネット無料
Alivis浪速東SoL TERRACE 901号室の賃貸契約情報
毎月支払う |
家賃12.5万円/月共益費10,000円/月 |
|---|---|
初期費用 |
敷金-礼金1ヶ月 (12.5万円)保証金-敷引き償却金- |
更新料 |
125,000円 |
鍵交換費用 |
27,500円 |
室内清掃費用 |
38,500円 |
駐車場料金 |
27,500円 |
損保・ |
借家賠付きの火災保険にご加入いただきます。 |
保証会社 |
加入要 保証会社利用料:初回保証料30%・更新料1万円/年、口振手数料330円(税込) |
契約期間 |
2年 |
入居可能日 |
2026年07月 |
フリーレント期間 |
- |
取引形態 |
一般媒介 |
備考 |
バイク置き場:有料 駐輪場:有料 ペット飼育時敷金積み増し料金(償却)有り |
Alivis浪速東SoL TERRACE 901号室の建物情報
建物名称 |
Alivis浪速東SoL TERRACE |
|---|---|
最寄駅 |
|
所在地 |
大阪府大阪市浪速区浪速東 |
階層 |
9階部分(地上11階建) |
構造 |
RC |
築年数 |
新築 |
駐車場 |
27,500円 |
小学校学区 |
栄小学校 |
中学校学区 |
難波中学校 |
- 学区データについて
- ※学区データは必ずしも正確とは限りません。詳細に関しては最寄店舗または各自治体の教育委員会に必ずご確認ください。
無料この物件に問い合わせ
- Alivis浪速東SoL TERRACE 901号室

-
12.5万円
(共益費
10,000円)
- 敷
- -
- 礼
- 1ヶ月
- 保
- -
- 償
- -
Alivis浪速東SoL TERRACE 901号室の物件のお問い合わせ先・取り扱い店舗
ハウスコム 本町店
- アクセス
-
大阪メトロ 御堂筋線「本町駅」徒歩1分
- 住所
- 〒541-0054 大阪府大阪市中央区南本町3-6-7 富士本町ビル1F
- 営業時間
- 10:00~18:00
- 定休日
- なし(GW休業5/3~5/6・年末年始12月25日~1月3日)
- 営業エリア
- 大阪市中央区,大阪市北区,大阪市西区,大阪市福島区,大阪市浪速区.大阪市東成区,大阪市港区,大阪市城東区
- 取引態様
- 賃貸仲介業




















