レオパレスクリスタルおゆみ野 102号室(1階/1K)の賃貸物件(賃貸アパート)
千葉県千葉市中央区にあるレオパレスクリスタルおゆみ野 102号室はバス・トイレ別、温水洗浄便座、1階、インターネット可、即入居可などが特徴です。最寄り駅の京成千原線学園前駅から徒歩9分です。レオパレスクリスタルおゆみ野 102号室の詳細はハウスコム 千葉中央店までお気軽にお問い合わせください!
情報更新日:
次回更新予定日:
※次回更新予定日について:お店側では順次空室確認を行っていますが、次回更新予定日までに空室確認が行えない場合には、この物件情報は自動的に削除されます。
レオパレスクリスタルおゆみ野 102号室の賃貸物件部屋概要
家賃 |
5.7万円
初期費用を |
|---|---|
共益費 |
5,000円
入居可能時期 |
敷金/礼金 |
- / 57,000円 |
保証金/ |
- / - |
最寄駅 |
|
所在地 |
千葉県千葉市中央区生実町 |
部屋番号 |
102号室 |
間取り |
1K |
専有面積 |
23.18㎡ |
築年数 |
2008年10月(築18年) |
階数 |
1階部分(地上2階建) |
方位・位置 |
ー / その他 |
物件種別 |
賃貸アパート |
構造 |
木造 |
駐車場 |
8,800円 |
小学校学区 |
生浜東小学校 |
中学校学区 |
生浜中学校 |
他の空き部屋 |
206号室 |
- 学区データについて
- ※学区データは必ずしも正確とは限りません。詳細に関しては最寄店舗または各自治体の教育委員会に必ずご確認ください。
レオパレスクリスタルおゆみ野 102号室の特徴
契約条件
敷金が無料なため、初期費用が比較的安くなる傾向にあります。
セキュリティ
来客時には居室内のテレビモニターにて訪問者の顔を確認することができます。
室内設備
トイレは、温水洗浄便座機能付きになります。 洗濯に便利な設備として、室内洗濯機置場があります。
居室状況
エアコンが設置されています。 家具が備え付けられており、入居後すぐ生活が始められます。
周辺施設
この物件の学区は、生浜東小学校区・生浜中学校区です。
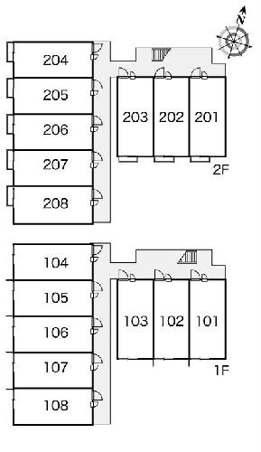
レオパレスクリスタルおゆみ野 102号室の間取り
間取り:1K
間取詳細:1K
専有面積:23.18㎡
方位:ー
部屋位置:その他
レオパレスクリスタルおゆみ野 102号室の設備
バス・トイレ
バス・トイレ別
温水洗浄便座
玄関
TVモニタ付インターホン
室内設備
エアコン
室内洗濯機置場
家具付
位置・立地
1階
インフラ
インターネット可
入居条件
即入居可
ライフステージ
一人暮らしに人気の設備
カップルに人気の設備
家族に人気の設備
夫婦に人気の設備
三世代で人気の設備
こだわり
雨の日でも洗濯したい
寝るためだけの部屋
レオパレスクリスタルおゆみ野 102号室の賃貸契約情報
毎月支払う |
家賃5.7万円/月共益費5,000円/月 |
|---|---|
初期費用 |
敷金-礼金57,000円保証金-敷引き償却金- |
更新料 |
- |
鍵交換費用 |
16,500円 |
室内清掃費用 |
41,800円 |
抗菌施工(任意) |
23,760円 |
駐車場料金 |
8,800円 |
損保・ |
借家賠付きの火災保険にご加入いただきます。 |
保証会社 |
加入要 保証会社利用料:保証料:59990円(契約内容により100~120%で変動有)※記載金額は120%の場合 |
契約期間 |
- |
入居可能日 |
即入居可 |
フリーレント期間 |
- |
取引形態 |
一般媒介 |
備考 |
鍵交換費10450円、抗菌施工(任意)18040円から23760円(税込)/環境維持費550円/月、更新手数料16500円/2年(税込)/基本清掃料:31350円(税込) |
レオパレスクリスタルおゆみ野 102号室の建物情報
建物名称 |
レオパレスクリスタルおゆみ野 |
|---|---|
最寄駅 |
|
所在地 |
千葉県千葉市中央区生実町 |
階層 |
1階部分(地上2階建) |
構造 |
木造 |
築年数 |
2008年10月(築18年) |
駐車場 |
8,800円 |
小学校学区 |
生浜東小学校 |
中学校学区 |
生浜中学校 |
- 学区データについて
- ※学区データは必ずしも正確とは限りません。詳細に関しては最寄店舗または各自治体の教育委員会に必ずご確認ください。
無料この物件に問い合わせ
- レオパレスクリスタルおゆみ野 102号室

-
5.7万円
(共益費
5,000円)
- 敷
- -
- 礼
- 57,000円
- 保
- -
- 償
- -
レオパレスクリスタルおゆみ野 102号室の物件のお問い合わせ先・取り扱い店舗
ハウスコム 千葉中央店
土日営業
- アクセス
-
総武本線「千葉駅」東口徒歩5分
- 住所
- 〒260-0015 千葉県千葉市中央区富士見2丁目7−2 鹿島ビル 3階
- 営業時間
- 10:00~18:00
- 定休日
- 水曜日
- 営業エリア
- 千葉市、四街道市、市原市、茂原市、袖ヶ浦市、木更津市、君津市、富津市、八街市、館山市他
- 取引態様
- 賃貸仲介業
お問い合わせNo. HC5-1006247-102-0066


















