パークアクシス神楽坂・早稲田通り 1206号室(12階/1DK)の賃貸物件(賃貸マンション)
東京都新宿区にあるパークアクシス神楽坂・早稲田通り 1206号室は浴室乾燥機、オートロック、クローゼット、エアコン、室内洗濯機置場などが特徴です。最寄り駅の東京メトロ 東西線神楽坂駅から徒歩5分です。パークアクシス神楽坂・早稲田通り 1206号室の詳細はハウスコム 高田馬場店までお気軽にお問い合わせください!
情報更新日:
次回更新予定日:
※次回更新予定日について:お店側では順次空室確認を行っていますが、次回更新予定日までに空室確認が行えない場合には、この物件情報は自動的に削除されます。
パークアクシス神楽坂・早稲田通り 1206号室の賃貸物件部屋概要
家賃 |
18万円
初期費用を |
|---|---|
共益費 |
12,000円
入居可能時期 |
敷金/礼金 |
1ヶ月 / - |
保証金/ |
- / - |
最寄駅 |
|
所在地 |
東京都新宿区東榎町 |
部屋番号 |
1206号室 |
間取り |
1DK(DK6.9・洋3.3) |
専有面積 |
30.07㎡ |
築年数 |
2022年3月(築5年) |
階数 |
12階部分(地上13階建) |
方位・位置 |
東 / その他 |
物件種別 |
賃貸マンション |
構造 |
RC |
駐車場 |
- |
小学校学区 |
早稲田小学校 |
中学校学区 |
牛込第二中学校 |
他の空き部屋 |
1106号室 |
- 学区データについて
- ※学区データは必ずしも正確とは限りません。詳細に関しては最寄店舗または各自治体の教育委員会に必ずご確認ください。
パークアクシス神楽坂・早稲田通り 1206号室の特徴
契約条件
ペットの飼育や楽器演奏もご相談ください。 礼金が無料なため、初期費用が比較的安くなる傾向にあります。
セキュリティ
この物件の建物には、オートロックや防犯カメラや宅配ボックスが設置されております。
室内設備
システムキッチンには、2つ以上のガスコンロが備え付けられています。 トイレは、温水洗浄便座機能付きになります。 洗濯に便利な設備として、室内洗濯機置場があります。浴室乾燥機も設置されているので、梅雨時の生乾き臭も比較的防ぐことができます。
居室状況
お部屋の床は、フローリングとなっており、エアコンが設置されています。 収納スペースとして、基本的な居室にクローゼットを設置、玄関にはシューズボックスがあります。
建物設備共用部分
居室外の専有スペースとして、洗濯物を干すなどの用途として利用できるバルコニーがあります。 建物の共用スペースに、日々の出入に便利なエレベーターや、いざという時の防犯カメラや、急な外出や不在がちのご家庭の荷物受け取りに便利な宅配ボックスや、居室内を常に清潔に保てる24時間利用可能なゴミ捨て置き場が設置されています。 駐輪場、バイク置き場が利用できます。
周辺施設
この物件の学区は、早稲田小学校区・牛込第二中学校区です。
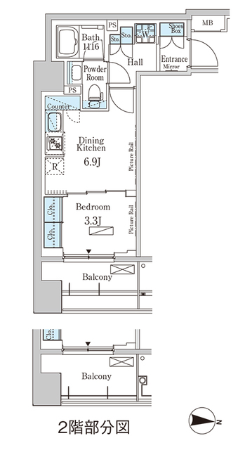
パークアクシス神楽坂・早稲田通り 1206号室の間取り
間取り:1DK
間取詳細:1DK(DK6.9・洋3.3)
専有面積:30.07㎡
方位:東
部屋位置:その他
パークアクシス神楽坂・早稲田通り 1206号室の設備
キッチン
システムキッチン
ガスコンロ
ガスコンロ二口以上
バス・トイレ
バス・トイレ別
浴室乾燥機
温水洗浄便座
玄関
オートロック
宅配ボックス
収納
クローゼット
シューズボックス
バルコニー
バルコニー
ルーフバルコニー
室内設備
エアコン
フローリング
室内洗濯機置場
位置・立地
2階以上
インフラ
インターネット可
BS
都市ガス
建物設備
エレベーター
防犯カメラ
24時間ゴミ出しOK
駐輪場
バイク置き場
入居条件
ペット可・相談
楽器可・相談
オンライン相談可
オンライン内見可
ライフステージ
一人暮らしに人気の設備
カップルに人気の設備
家族に人気の設備
夫婦に人気の設備
三世代で人気の設備
こだわり
タイパ重視
外で子どもと遊びたい
雨の日でも洗濯したい
洋室で暮らしたい
趣味
ガーデニングが好き
パークアクシス神楽坂・早稲田通り 1206号室の賃貸契約情報
毎月支払う |
家賃18万円/月共益費12,000円/月 |
|---|---|
初期費用 |
敷金1ヶ月 (18万円)礼金-保証金-敷引き償却金- |
更新料 |
180,000円 |
鍵交換費用 |
33,000円 |
室内清掃費用 |
59,400円 |
駐車場料金 |
- |
損保・ |
借家賠付きの火災保険にご加入いただきます。 |
保証会社 |
加入要 保証会社利用料:初回保証委託料:月額賃料等の50%、 2年目以降:9,600円/年 |
契約期間 |
定期借家 2年 |
入居可能日 |
2026年07月中旬 |
フリーレント期間 |
- |
取引形態 |
一般媒介 |
備考 |
バイク置き場:有料 駐輪場:有料 ペット飼育時敷金積み増し料金(償却)有り |
パークアクシス神楽坂・早稲田通り 1206号室の建物情報
建物名称 |
パークアクシス神楽坂・早稲田通り |
|---|---|
最寄駅 |
|
所在地 |
東京都新宿区東榎町 |
階層 |
12階部分(地上13階建) |
構造 |
RC |
築年数 |
2022年3月(築5年) |
駐車場 |
- |
小学校学区 |
早稲田小学校 |
中学校学区 |
牛込第二中学校 |
- 学区データについて
- ※学区データは必ずしも正確とは限りません。詳細に関しては最寄店舗または各自治体の教育委員会に必ずご確認ください。
無料この物件に問い合わせ
- パークアクシス神楽坂・早稲田通り 1206号室

-
18万円
(共益費
12,000円)
- 敷
- 1ヶ月
- 礼
- -
- 保
- -
- 償
- -
パークアクシス神楽坂・早稲田通り 1206号室の物件のお問い合わせ先・取り扱い店舗
ハウスコム 高田馬場店
- アクセス
-
山手線「高田馬場駅」徒歩5分
- 住所
- 〒169-0075 東京都新宿区高田馬場1-17-18 マルシメビル1階
- 営業時間
- 10:00~18:00
- 定休日
- 水曜日
- 営業エリア
- 新宿区 豊島区 杉並区 中野区 文京区
- 取引態様
- 賃貸仲介業


































