レオネクストグランツ藤23 204号室(2階/1K)の賃貸物件(賃貸マンション)
東京都練馬区にあるレオネクストグランツ藤23 204号室はバス・トイレ別、温水洗浄便座、ルーフバルコニー、2階以上、インターネット可などが特徴です。最寄り駅の西武池袋線・豊島線大泉学園駅から徒歩5分です。レオネクストグランツ藤23 204号室の詳細はハウスコム ひばりヶ丘店までお気軽にお問い合わせください!
情報更新日:
次回更新予定日:
※次回更新予定日について:お店側では順次空室確認を行っていますが、次回更新予定日までに空室確認が行えない場合には、この物件情報は自動的に削除されます。
レオネクストグランツ藤23 204号室の賃貸物件部屋概要
家賃 |
8.2万円
初期費用を |
|---|---|
共益費 |
5,500円
入居可能時期 |
敷金/礼金 |
- / 82,000円 |
保証金/ |
- / - |
最寄駅 |
|
所在地 |
東京都練馬区東大泉 |
部屋番号 |
204号室 |
間取り |
1K |
専有面積 |
21.11㎡ |
築年数 |
2012年11月(築14年) |
階数 |
2階部分(地上3階建) |
方位・位置 |
ー / その他 |
物件種別 |
賃貸マンション |
構造 |
鉄骨造 |
駐車場 |
無 |
小学校学区 |
大泉小学校 |
中学校学区 |
大泉中学校 |
他の空き部屋 |
202号室 |
- 学区データについて
- ※学区データは必ずしも正確とは限りません。詳細に関しては最寄店舗または各自治体の教育委員会に必ずご確認ください。
レオネクストグランツ藤23 204号室の特徴
契約条件
敷金が無料なため、初期費用が比較的安くなる傾向にあります。
セキュリティ
この物件の建物には、オートロックが設置されており、来客時には居室内のテレビモニターにて訪問者の顔を確認することができます。
室内設備
電気コンロが備え付けられています。 トイレは、温水洗浄便座機能付きになります。 女性に嬉しい設備の独立した洗面化粧台があります。 洗濯に便利な設備として、室内洗濯機置場があります。
居室状況
エアコンが設置されています。
建物設備共用部分
居室外の専有スペースとして、洗濯物を干すなどの用途として利用できるバルコニーがあります。
周辺施設
この物件の学区は、大泉小学校区・大泉中学校区です。
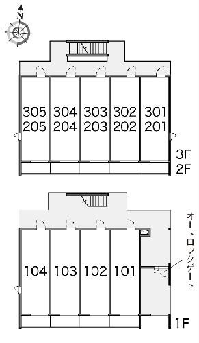
レオネクストグランツ藤23 204号室の間取り
間取り:1K
間取詳細:1K
専有面積:21.11㎡
方位:ー
部屋位置:その他
レオネクストグランツ藤23 204号室の設備
キッチン
電気コンロ
バス・トイレ
バス・トイレ別
温水洗浄便座
独立洗面台
玄関
TVモニタ付インターホン
オートロック
バルコニー
バルコニー
ルーフバルコニー
室内設備
エアコン
室内洗濯機置場
位置・立地
2階以上
インフラ
インターネット可
ライフステージ
一人暮らしに人気の設備
カップルに人気の設備
家族に人気の設備
夫婦に人気の設備
三世代で人気の設備
こだわり
外で子どもと遊びたい
雨の日でも洗濯したい
趣味
ガーデニングが好き
レオネクストグランツ藤23 204号室の賃貸契約情報
毎月支払う |
家賃8.2万円/月共益費5,500円/月 |
|---|---|
初期費用 |
敷金-礼金82,000円保証金-敷引き償却金- |
更新料 |
- |
鍵交換費用 |
16,500円 |
室内清掃費用 |
41,800円 |
抗菌施工(任意) |
23,760円 |
駐車場料金 |
無 |
損保・ |
借家賠付きの火災保険にご加入いただきます。 |
保証会社 |
加入要 保証会社利用料:保証料:105590円(契約内容により100~120%で変動有)※記載金額は120%の場合 |
契約期間 |
- |
入居可能日 |
2026年06月中旬 |
フリーレント期間 |
- |
取引形態 |
一般媒介 |
備考 |
- |
レオネクストグランツ藤23 204号室の建物情報
建物名称 |
レオネクストグランツ藤23 |
|---|---|
最寄駅 |
|
所在地 |
東京都練馬区東大泉 |
階層 |
2階部分(地上3階建) |
構造 |
鉄骨造 |
築年数 |
2012年11月(築14年) |
駐車場 |
無 |
小学校学区 |
大泉小学校 |
中学校学区 |
大泉中学校 |
- 学区データについて
- ※学区データは必ずしも正確とは限りません。詳細に関しては最寄店舗または各自治体の教育委員会に必ずご確認ください。
無料この物件に問い合わせ
- レオネクストグランツ藤23 204号室

-
8.2万円
(共益費
5,500円)
- 敷
- -
- 礼
- 82,000円
- 保
- -
- 償
- -
レオネクストグランツ藤23 204号室の物件のお問い合わせ先・取り扱い店舗
ハウスコム ひばりヶ丘店
- アクセス
-
西武池袋線・豊島線「ひばりヶ丘駅」徒歩2分
- 住所
- 〒188-0001 東京都西東京市谷戸町3-27-9 JCビルⅡ1階
- 営業時間
- 10:00~18:00
- 定休日
- 水曜日
- 営業エリア
- 西東京市・東久留米市・清瀬市・小平市・東村山市・小金井市・武蔵野市・練馬区・中野区・新座市・所沢市・朝霞市・和光市
- 取引態様
- 賃貸仲介業



















