KEIAI RESIDENCE せんげん台Ⅵ 303号室(3階/1LDK)の賃貸物件(賃貸アパート)
埼玉県春日部市にあるKEIAI RESIDENCE せんげん台Ⅵ 303号室はシューズボックス、バルコニー、フローリング、2階以上、最上階などが特徴です。最寄り駅の東武スカイツリーライン・伊勢崎線・大師線せんげん台駅から徒歩8分です。KEIAI RESIDENCE せんげん台Ⅵ 303号室の詳細はハウスコム 越谷店までお気軽にお問い合わせください!
情報更新日:
次回更新予定日:
※次回更新予定日について:お店側では順次空室確認を行っていますが、次回更新予定日までに空室確認が行えない場合には、この物件情報は自動的に削除されます。
KEIAI RESIDENCE せんげん台Ⅵ 303号室の賃貸物件部屋概要
家賃 |
7.8万円
初期費用を |
|---|---|
共益費 |
3,500円
入居可能時期 |
敷金/礼金 |
- / 78,000円 |
保証金/ |
- / - |
最寄駅 |
|
所在地 |
埼玉県春日部市千間 |
部屋番号 |
303号室 |
間取り |
1LDK |
専有面積 |
30.01㎡ |
築年数 |
新築 |
階数 |
3階部分(地上3階建) |
方位・位置 |
南西 / その他 |
物件種別 |
賃貸アパート |
構造 |
木造 |
駐車場 |
無 |
小学校学区 |
武里南小学校 |
中学校学区 |
春日部南中学校 |
他の空き部屋 |
101号室 102号室 103号室 201号室 202号室 203号室 301号室 302号室 |
- 学区データについて
- ※学区データは必ずしも正確とは限りません。詳細に関しては最寄店舗または各自治体の教育委員会に必ずご確認ください。
KEIAI RESIDENCE せんげん台Ⅵ 303号室の特徴
-
一人暮らしに人気の設備

-
カップルに人気の設備

-
家族に人気の設備

-
夫婦に人気の設備

-
三世代で人気の設備

-
外で子どもと遊びたい

-
雨の日でも洗濯したい

-
洋室で暮らしたい

-
推し活グッズを飾りたい

-
ガーデニングが好き

契約条件
敷金が無料なため、初期費用が比較的安くなる傾向にあります。
室内設備
システムキッチンが備え付けられています。 トイレは、温水洗浄便座機能付きになります。 女性に嬉しい設備の独立した洗面化粧台があります。 洗濯に便利な設備として、浴室乾燥機も設置されているので、梅雨時の生乾き臭も比較的防ぐことができます。
居室状況
居室には、ロフトが設置されており大規模な収納スペースやセパレートされた寝室として活用できます。 お部屋の床は、フローリングとなっており、エアコンが設置されています。 インターネットも無料で入居後すぐ生活が始められます。 収納スペースとして、玄関にはシューズボックスがあります。
建物設備共用部分
居室外の専有スペースとして、洗濯物を干すなどの用途として利用できるバルコニーがあります。
周辺施設
この物件の学区は、武里南小学校区・春日部南中学校区です。
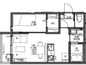
KEIAI RESIDENCE せんげん台Ⅵ 303号室の間取り
間取り:1LDK
間取詳細:1LDK
専有面積:30.01㎡
方位:南西
部屋位置:その他
KEIAI RESIDENCE せんげん台Ⅵ 303号室の設備
キッチン
システムキッチン
カウンターキッチン
バス・トイレ
バス・トイレ別
浴室乾燥機
温水洗浄便座
独立洗面台
収納
シューズボックス
バルコニー
バルコニー
ルーフバルコニー
室内設備
エアコン
フローリング
ロフト付
位置・立地
2階以上
最上階
インフラ
CATV
都市ガス
ライフステージ
一人暮らしに人気の設備
カップルに人気の設備
家族に人気の設備
夫婦に人気の設備
三世代で人気の設備
こだわり
外で子どもと遊びたい
雨の日でも洗濯したい
洋室で暮らしたい
趣味
推し活グッズを飾りたい
ガーデニングが好き
お得な条件
インターネット無料
KEIAI RESIDENCE せんげん台Ⅵ 303号室の賃貸契約情報
毎月支払う |
家賃7.8万円/月共益費3,500円/月 |
|---|---|
初期費用 |
敷金-礼金78,000円保証金-敷引き償却金- |
更新料 |
78,000円 |
鍵交換費用 |
- |
室内清掃費用 |
- |
カギ発行料 |
27,500円 |
退去時清掃費 |
55,000円 |
契約事務手数料 |
16,500円 |
駐車場料金 |
無 |
損保・ |
借家賠付きの火災保険にご加入いただきます。 |
保証会社 |
加入要 保証会社利用料:ジェイリース株式会社 初回保証料:家賃総額50% 月額保証料:900円/月 |
契約期間 |
2年 |
入居可能日 |
2026年07月 |
フリーレント期間 |
- |
取引形態 |
一般媒介 |
備考 |
- |
KEIAI RESIDENCE せんげん台Ⅵ 303号室の建物情報
建物名称 |
KEIAI RESIDENCE せんげん台Ⅵ |
|---|---|
最寄駅 |
|
所在地 |
埼玉県春日部市千間 |
階層 |
3階部分(地上3階建) |
構造 |
木造 |
築年数 |
新築 |
駐車場 |
無 |
小学校学区 |
武里南小学校 |
中学校学区 |
春日部南中学校 |
- 学区データについて
- ※学区データは必ずしも正確とは限りません。詳細に関しては最寄店舗または各自治体の教育委員会に必ずご確認ください。
無料この物件に問い合わせ
- KEIAI RESIDENCE せんげん台Ⅵ 303号室

-
7.8万円
(共益費
3,500円)
- 敷
- -
- 礼
- 78,000円
- 保
- -
- 償
- -
KEIAI RESIDENCE せんげん台Ⅵ 303号室の物件のお問い合わせ先・取り扱い店舗
ハウスコム 越谷店
- アクセス
-
東武スカイツリーライン・伊勢崎線・大師線「新越谷駅」東口徒歩1分
武蔵野線「南越谷駅」南口徒歩1分
- 住所
- 〒343-0845 埼玉県越谷市南越谷1丁目11−8 第一金子ビル 2F
- 営業時間
- 10:00~18:00
- 定休日
- 水曜日
- 営業エリア
- 越谷市,吉川市,三郷市,草加市,春日部,松伏,東武沿線北部
- 取引態様
- 賃貸仲介業






