是空NAMBA NISHI 1001号室(10階/1LDK)の賃貸物件(賃貸マンション)
大阪府大阪市浪速区にある是空NAMBA NISHI 1001号室はシステムキッチン、クローゼット、エアコン、CS、エレベーターなどが特徴です。最寄り駅の大阪メトロ 千日前線桜川駅から徒歩1分です。是空NAMBA NISHI 1001号室の詳細はミニミニ FC江坂店までお気軽にお問い合わせください!
情報更新日:
次回更新予定日:
※次回更新予定日について:お店側では順次空室確認を行っていますが、次回更新予定日までに空室確認が行えない場合には、この物件情報は自動的に削除されます。
是空NAMBA NISHI 1001号室の賃貸物件部屋概要
家賃 |
21万円
初期費用を |
|---|---|
共益費 |
12,000円
入居可能時期 |
敷金/礼金 |
- / - |
保証金/ |
- / - |
最寄駅 |
|
所在地 |
大阪府大阪市浪速区幸町 |
部屋番号 |
1001号室 |
間取り |
1LDK |
専有面積 |
72.20㎡ |
築年数 |
2008年12月(築18年) |
階数 |
10階部分(地上11階地下1階建) |
方位・位置 |
南 / その他 |
物件種別 |
賃貸マンション |
構造 |
SRC |
駐車場 |
- |
小学校学区 |
日吉小学校 |
中学校学区 |
堀江中学校 |
他の空き部屋 |
ー |
- 学区データについて
- ※学区データは必ずしも正確とは限りません。詳細に関しては最寄店舗または各自治体の教育委員会に必ずご確認ください。
是空NAMBA NISHI 1001号室の特徴
契約条件
この物件は、2人入居もご契約できます。 敷金と礼金が無料なため、初期費用が比較的安くなる傾向にあります。
セキュリティ
この物件の建物には、オートロックや防犯カメラが設置されております。
室内設備
システムキッチンが備え付けられています。 洗濯に便利な設備として、室内洗濯機置場があります。浴室乾燥機も設置されているので、梅雨時の生乾き臭も比較的防ぐことができます。
居室状況
お部屋の床は、フローリングとなっており、エアコンが設置されています。 収納スペースとして、基本的な居室にクローゼットを設置、玄関にはシューズボックスがあります。
建物設備共用部分
居室外の専有スペースとして、洗濯物を干すなどの用途として利用できるバルコニーがあります。 建物の共用スペースに、日々の出入に便利なエレベーターや、いざという時の防犯カメラが設置されています。 駐輪場、バイク置き場が利用できます。
周辺施設
この物件の学区は、日吉小学校区・堀江中学校区です。
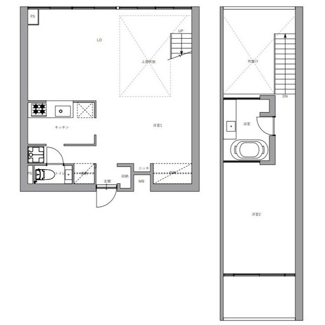
是空NAMBA NISHI 1001号室の間取り
間取り:1LDK
間取詳細:1LDK
専有面積:72.20㎡
方位:南
部屋位置:その他
是空NAMBA NISHI 1001号室の設備
キッチン
システムキッチン
バス・トイレ
バス・トイレ別
浴室乾燥機
玄関
オートロック
収納
クローゼット
シューズボックス
バルコニー
バルコニー
ルーフバルコニー
室内設備
エアコン
フローリング
室内洗濯機置場
位置・立地
2階以上
南向き
インフラ
CATV
BS
CS
都市ガス
建物設備
エレベーター
防犯カメラ
駐輪場
バイク置き場
入居条件
2人入居可
ライフステージ
一人暮らしに人気の設備
カップルに人気の設備
家族に人気の設備
夫婦に人気の設備
三世代で人気の設備
こだわり
外で子どもと遊びたい
雨の日でも洗濯したい
洋室で暮らしたい
趣味
ガーデニングが好き
是空NAMBA NISHI 1001号室の賃貸契約情報
毎月支払う |
家賃21万円/月共益費12,000円/月 |
|---|---|
初期費用 |
敷金-礼金-保証金-敷引き償却金- |
更新料 |
10,000円 |
鍵交換費用 |
- |
室内清掃費用 |
- |
カギ費用 |
33,000円 |
退去時RC代 |
66,000円 |
駐車場料金 |
- |
損保・ |
借家賠付きの火災保険にご加入いただきます。 |
保証会社 |
加入要 保証会社利用料:株式会社エポスカード 保証会社:①エポス30%②ニッポンインシュア100% |
契約期間 |
2年 |
入居可能日 |
2026年07月 |
フリーレント期間 |
- |
取引形態 |
一般媒介 |
備考 |
- |
是空NAMBA NISHI 1001号室の建物情報
建物名称 |
是空NAMBA NISHI |
|---|---|
最寄駅 |
|
所在地 |
大阪府大阪市浪速区幸町 |
階層 |
10階部分(地上11階地下1階建) |
構造 |
SRC |
築年数 |
2008年12月(築18年) |
駐車場 |
- |
小学校学区 |
日吉小学校 |
中学校学区 |
堀江中学校 |
- 学区データについて
- ※学区データは必ずしも正確とは限りません。詳細に関しては最寄店舗または各自治体の教育委員会に必ずご確認ください。
無料この物件に問い合わせ
- 是空NAMBA NISHI 1001号室

-
21万円
(共益費
12,000円)
- 敷
- -
- 礼
- -
- 保
- -
- 償
- -
是空NAMBA NISHI 1001号室の物件のお問い合わせ先・取り扱い店舗
ミニミニ FC江坂店
- アクセス
-
大阪メトロ 御堂筋線「江坂駅」徒歩1分
- 住所
- 〒564-0063 大阪府吹田市江坂町1-23-34 第二梓ビル2F
- 営業時間
- 10:00~18:00
- 定休日
- なし
- 営業エリア
- 大阪府下全域
- 取引態様
- 賃貸仲介業














