アルテシモクレルトルテ 1002号室(10階/1DK)の賃貸物件(賃貸マンション)
東京都江東区にあるアルテシモクレルトルテ 1002号室はバス・トイレ別、浴室乾燥機、温水洗浄便座、オートロック、シューズボックスなどが特徴です。最寄り駅の総武線・中央線各駅停車亀戸駅から徒歩5分です。アルテシモクレルトルテ 1002号室の詳細はハウスコム 事業戦略室までお気軽にお問い合わせください!
情報更新日:
次回更新予定日:
※次回更新予定日について:お店側では順次空室確認を行っていますが、次回更新予定日までに空室確認が行えない場合には、この物件情報は自動的に削除されます。
アルテシモクレルトルテ 1002号室の賃貸物件部屋概要
家賃 |
11.8万円
初期費用を |
|---|---|
共益費 |
10,000円
入居可能時期 |
敷金/礼金 |
1ヶ月 / 1ヶ月 |
保証金/ |
- / - |
最寄駅 |
|
所在地 |
東京都江東区亀戸 |
部屋番号 |
1002号室 |
間取り |
1DK(洋3.3・DK6) |
専有面積 |
25.56㎡ |
築年数 |
2022年3月(築5年) |
階数 |
10階部分(地上13階建) |
方位・位置 |
北 / その他 |
物件種別 |
賃貸マンション |
構造 |
RC |
駐車場 |
- |
小学校学区 |
第二亀戸小学校 |
中学校学区 |
亀戸中学校 |
他の空き部屋 |
ー |
- 学区データについて
- ※学区データは必ずしも正確とは限りません。詳細に関しては最寄店舗または各自治体の教育委員会に必ずご確認ください。
アルテシモクレルトルテ 1002号室の特徴
契約条件
この物件は、2人入居もご契約できます。 ペットの飼育もご相談ください。
セキュリティ
この物件の建物には、オートロックや防犯カメラや宅配ボックスが設置されております。
室内設備
システムキッチンが備え付けられています。 トイレは、温水洗浄便座機能付きになります。 洗濯に便利な設備として、室内洗濯機置場があります。浴室乾燥機も設置されているので、梅雨時の生乾き臭も比較的防ぐことができます。
居室状況
エアコンが設置されています。 インターネットも無料で入居後すぐ生活が始められます。 収納スペースとして、基本的な居室にクローゼットを設置、玄関にはシューズボックスがあります。
建物設備共用部分
居室外の専有スペースとして、洗濯物を干すなどの用途として利用できるバルコニーがあります。 建物の共用スペースに、日々の出入に便利なエレベーターや、いざという時の防犯カメラや、急な外出や不在がちのご家庭の荷物受け取りに便利な宅配ボックスが設置されています。 駐輪場が利用できます。
周辺施設
この物件の学区は、第二亀戸小学校区・亀戸中学校区です。
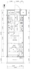
アルテシモクレルトルテ 1002号室の間取り
間取り:1DK
間取詳細:1DK(洋3.3・DK6)
専有面積:25.56㎡
方位:北
部屋位置:その他
アルテシモクレルトルテ 1002号室の設備
キッチン
システムキッチン
バス・トイレ
バス・トイレ別
浴室乾燥機
温水洗浄便座
玄関
オートロック
宅配ボックス
収納
クローゼット
シューズボックス
バルコニー
バルコニー
ルーフバルコニー
室内設備
エアコン
室内洗濯機置場
デザイナーズ
位置・立地
2階以上
インフラ
BS
CS
都市ガス
建物設備
エレベーター
防犯カメラ
駐輪場
入居条件
ペット可・相談
2人入居可
ライフステージ
一人暮らしに人気の設備
カップルに人気の設備
家族に人気の設備
夫婦に人気の設備
三世代で人気の設備
こだわり
外で子どもと遊びたい
雨の日でも洗濯したい
趣味
オークション・通販が好き
ガーデニングが好き
お得な条件
インターネット無料
アルテシモクレルトルテ 1002号室の賃貸契約情報
毎月支払う |
家賃11.8万円/月共益費10,000円/月 |
|---|---|
初期費用 |
敷金1ヶ月 (11.8万円)礼金1ヶ月 (11.8万円)保証金-敷引き償却金- |
更新料 |
118,000円 |
鍵交換費用 |
- |
室内清掃費用 |
- |
事務手数料 |
20,000円 |
24時間緊急駆けつけ対応 |
20,000円 |
鍵交換代 |
25,000円 |
駐車場料金 |
- |
損保・ |
借家賠付きの火災保険にご加入いただきます。 |
保証会社 |
加入要 保証会社利用料:≪エポス≫初回保証料50%(月額保証料総賃料1%)≪ジェイリース≫初回保証料50%(月額保証料総賃料1%)※外国籍プラン:初回保証料100% |
契約期間 |
2年 |
入居可能日 |
2026年07月 |
フリーレント期間 |
- |
取引形態 |
一般媒介 |
備考 |
- |
アルテシモクレルトルテ 1002号室の建物情報
建物名称 |
アルテシモクレルトルテ |
|---|---|
最寄駅 |
|
所在地 |
東京都江東区亀戸 |
階層 |
10階部分(地上13階建) |
構造 |
RC |
築年数 |
2022年3月(築5年) |
駐車場 |
- |
小学校学区 |
第二亀戸小学校 |
中学校学区 |
亀戸中学校 |
- 学区データについて
- ※学区データは必ずしも正確とは限りません。詳細に関しては最寄店舗または各自治体の教育委員会に必ずご確認ください。
無料この物件に問い合わせ
- アルテシモクレルトルテ 1002号室

-
11.8万円
(共益費
10,000円)
- 敷
- 1ヶ月
- 礼
- 1ヶ月
- 保
- -
- 償
- -
アルテシモクレルトルテ 1002号室の物件のお問い合わせ先・取り扱い店舗
ハウスコム 事業戦略室
- アクセス
-
山手線「品川駅」港南口徒歩3分
- 住所
- 〒108-0075 東京都港区港南2-16-1 品川イーストワンタワー9階
- 営業時間
- 10:00~17:00
- 定休日
- 土曜日・日曜日(祝日定休)
- 営業エリア
- 北区、荒川区、豊島区、文京区、台東区、中央区、新宿区、千代田区、渋谷区、港区、品川区
- 取引態様
- 賃貸仲介業




















