ディームス初台Ⅰ 406号室(4階/1K)の賃貸物件(賃貸マンション)
東京都渋谷区にあるディームス初台Ⅰ 406号室はガスコンロ二口以上、バス・トイレ別、オートロック、ペット可・相談、オンライン内見可などが特徴です。最寄り駅の小田急小田原線代々木八幡駅から徒歩9分です。ディームス初台Ⅰ 406号室の詳細はハウスコム 渋谷店までお気軽にお問い合わせください!
情報更新日:
次回更新予定日:
※次回更新予定日について:お店側では順次空室確認を行っていますが、次回更新予定日までに空室確認が行えない場合には、この物件情報は自動的に削除されます。
ディームス初台Ⅰ 406号室の賃貸物件部屋概要
家賃 |
12.9万円
初期費用を |
|---|---|
共益費 |
6,000円
入居可能時期 |
敷金/礼金 |
129,000円 / 129,000円 |
保証金/ |
- / - |
最寄駅 |
|
所在地 |
東京都渋谷区初台 |
部屋番号 |
406号室 |
間取り |
1K(洋6・K0) |
専有面積 |
20.71㎡ |
築年数 |
2015年8月(築11年) |
階数 |
4階部分(地上5階建) |
方位・位置 |
北西 / その他 |
物件種別 |
賃貸マンション |
構造 |
RC |
駐車場 |
無 |
小学校学区 |
幡代小学校 |
中学校学区 |
代々木中学校 |
他の空き部屋 |
401号室 |
- 学区データについて
- ※学区データは必ずしも正確とは限りません。詳細に関しては最寄店舗または各自治体の教育委員会に必ずご確認ください。
ディームス初台Ⅰ 406号室の特徴
契約条件
ペットの飼育もご相談ください。
セキュリティ
この物件の建物には、オートロックや防犯カメラや宅配ボックスが設置されており、来客時には居室内のテレビモニターにて訪問者の顔を確認することができます。
室内設備
システムキッチンには、2つ以上のガスコンロが備え付けられています。 トイレは、温水洗浄便座機能付きになります。 女性に嬉しい設備の独立した洗面化粧台があります。
居室状況
お部屋の床は、フローリングとなっており、エアコンが設置されています。 インターネットも無料で入居後すぐ生活が始められます。 収納スペースとして、基本的な居室にクローゼットがあります。
建物設備共用部分
建物の共用スペースに、日々の出入に便利なエレベーターや、いざという時の防犯カメラや、急な外出や不在がちのご家庭の荷物受け取りに便利な宅配ボックスが設置されています。
周辺施設
この物件の学区は、幡代小学校区・代々木中学校区です。
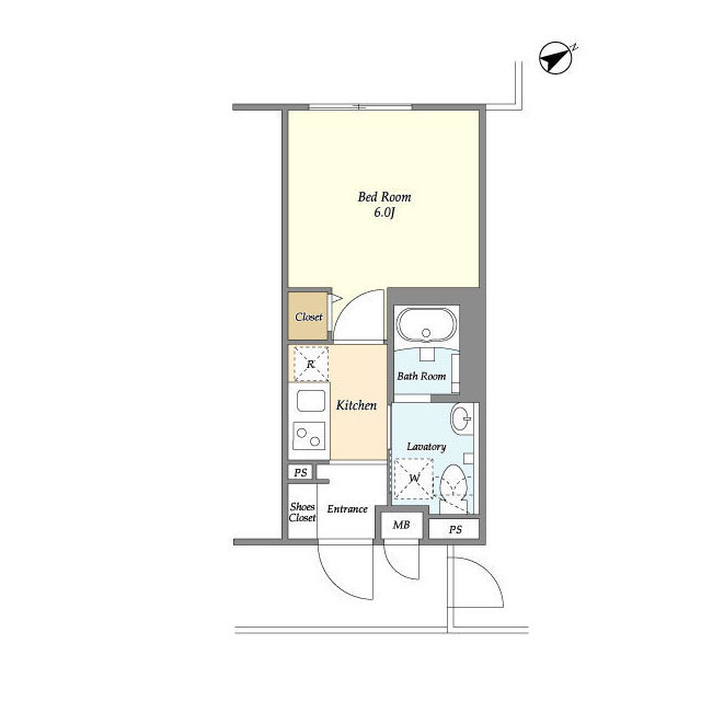
ディームス初台Ⅰ 406号室の間取り
間取り:1K
間取詳細:1K(洋6・K0)
専有面積:20.71㎡
方位:北西
部屋位置:その他
ディームス初台Ⅰ 406号室の設備
キッチン
システムキッチン
ガスコンロ
ガスコンロ二口以上
バス・トイレ
バス・トイレ別
温水洗浄便座
独立洗面台
玄関
TVモニタ付インターホン
オートロック
宅配ボックス
収納
クローゼット
室内設備
エアコン
フローリング
位置・立地
2階以上
インフラ
BS
CS
建物設備
エレベーター
防犯カメラ
入居条件
ペット可・相談
オンライン相談可
オンライン内見可
ライフステージ
一人暮らしに人気の設備
カップルに人気の設備
家族に人気の設備
夫婦に人気の設備
三世代で人気の設備
こだわり
セキュリティ対策重視
洋室で暮らしたい
趣味
オークション・通販が好き
お得な条件
インターネット無料
ディームス初台Ⅰ 406号室の賃貸契約情報
毎月支払う |
家賃12.9万円/月共益費6,000円/月 |
|---|---|
初期費用 |
敷金129,000円礼金129,000円保証金-敷引き償却金- |
更新料 |
129,000円 |
鍵交換費用 |
- |
室内清掃費用 |
- |
鍵交換代 |
33,000円 |
駐車場料金 |
無 |
損保・ |
借家賠付きの火災保険にご加入いただきます。 |
保証会社 |
加入要 保証会社利用料:クレディセゾン 保証料:賃料等の40%(最低1.5万円)、2年目~:0.7万円(法人は一律3万)/年 |
契約期間 |
定期借家 2年 |
入居可能日 |
2026年05月下旬 |
フリーレント期間 |
- |
取引形態 |
一般媒介 |
備考 |
清掃費:38500円(退去時請求).エアコン清掃費:11000円(退去時請求) |
ディームス初台Ⅰ 406号室の建物情報
建物名称 |
ディームス初台Ⅰ |
|---|---|
最寄駅 |
|
所在地 |
東京都渋谷区初台 |
階層 |
4階部分(地上5階建) |
構造 |
RC |
築年数 |
2015年8月(築11年) |
駐車場 |
無 |
小学校学区 |
幡代小学校 |
中学校学区 |
代々木中学校 |
- 学区データについて
- ※学区データは必ずしも正確とは限りません。詳細に関しては最寄店舗または各自治体の教育委員会に必ずご確認ください。
無料この物件に問い合わせ
- ディームス初台Ⅰ 406号室

-
12.9万円
(共益費
6,000円)
- 敷
- 129,000円
- 礼
- 129,000円
- 保
- -
- 償
- -
ディームス初台Ⅰ 406号室の物件のお問い合わせ先・取り扱い店舗
ハウスコム 渋谷店
- アクセス
-
山手線「渋谷駅」徒歩1分
- 住所
- 〒150-0043 東京都渋谷区道玄坂2-30-4 玉久ビル6階
- 営業時間
- 10:00~18:00
- 定休日
- 火曜日・水曜日
- 営業エリア
- 主に渋谷区、港区、世田谷区、目黒区(その他地域もご紹介可能です)
- 取引態様
- 賃貸仲介業






























