ザ・パークハビオ蕨 602号室(6階/1R)の賃貸物件(賃貸マンション)
埼玉県蕨市にあるザ・パークハビオ蕨 602号室はオートロック、宅配ボックス、クローゼット、ルーフバルコニー、エレベーターなどが特徴です。最寄り駅の京浜東北・根岸線蕨駅から徒歩4分です。ザ・パークハビオ蕨 602号室の詳細はハウスコム 蕨店までお気軽にお問い合わせください!
情報更新日:
次回更新予定日:
※次回更新予定日について:お店側では順次空室確認を行っていますが、次回更新予定日までに空室確認が行えない場合には、この物件情報は自動的に削除されます。
ザ・パークハビオ蕨 602号室の賃貸物件部屋概要
家賃 |
8.3万円
初期費用を |
|---|---|
共益費 |
15,000円
入居可能時期 |
敷金/礼金 |
83,000円 / - |
保証金/ |
- / - |
最寄駅 |
|
所在地 |
埼玉県蕨市塚越 |
部屋番号 |
602号室 |
間取り |
1R(洋8.7) |
専有面積 |
23.15㎡ |
築年数 |
新築 |
階数 |
6階部分(地上10階建) |
方位・位置 |
北東 / その他 |
物件種別 |
賃貸マンション |
構造 |
RC |
駐車場 |
38,500円 |
小学校学区 |
東小学校 |
中学校学区 |
東中学校 |
他の空き部屋 |
406号室 501号室 502号室 503号室 505号室 601号室 605号室 701号室 702号室 703号室 705号室 706号室 806号室 |
- 学区データについて
- ※学区データは必ずしも正確とは限りません。詳細に関しては最寄店舗または各自治体の教育委員会に必ずご確認ください。
ザ・パークハビオ蕨 602号室の特徴
-
一人暮らしに人気の設備

-
カップルに人気の設備

-
家族に人気の設備

-
夫婦に人気の設備

-
三世代で人気の設備

-
セキュリティ対策重視

-
外で子どもと遊びたい

-
雨の日でも洗濯したい

-
洋室で暮らしたい

-
オークション・通販が好き

-
ガーデニングが好き

契約条件
この物件は、2人入居もご契約できます。 ペットの飼育もご相談ください。 また、ご契約時に保証人は不要です。 礼金が無料なため、初期費用が比較的安くなる傾向にあります。
セキュリティ
この物件の建物には、オートロックや防犯カメラや宅配ボックスが設置されており、来客時には居室内のテレビモニターにて訪問者の顔を確認することができます。
室内設備
システムキッチンには、2つ以上のガスコンロが備え付けられています。 お風呂とトイレは別です。お風呂には、追い焚き機能が備わっています。 女性に嬉しい設備の独立した洗面化粧台があります。 洗濯に便利な設備として、室内洗濯機置場があります。浴室乾燥機も設置されているので、梅雨時の生乾き臭も比較的防ぐことができます。
居室状況
お部屋の床は、フローリングとなっており、エアコンが設置されています。 インターネットも無料で入居後すぐ生活が始められます。 収納スペースとして、基本的な居室にクローゼットを設置、玄関にはシューズボックスがあります。
建物設備共用部分
居室外の専有スペースとして、洗濯物を干すなどの用途として利用できるバルコニーがあります。 建物の共用スペースに、日々の出入に便利なエレベーターや、いざという時の防犯カメラや、急な外出や不在がちのご家庭の荷物受け取りに便利な宅配ボックスが設置されています。 平面駐車場があります。駐輪場、バイク置き場が利用できます。
周辺施設
この物件の学区は、東小学校区・東中学校区です。
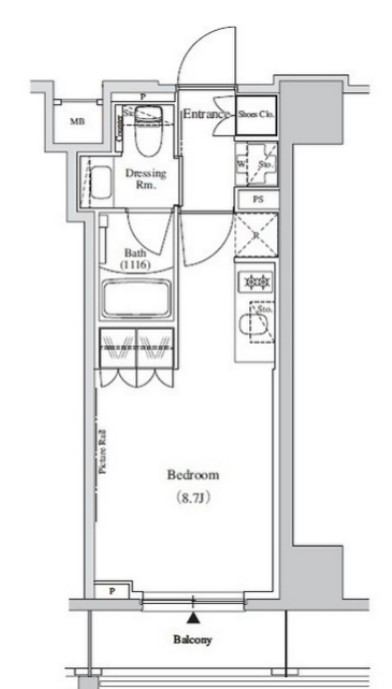
ザ・パークハビオ蕨 602号室の間取り
間取り:1R
間取詳細:1R(洋8.7)
専有面積:23.15㎡
方位:北東
部屋位置:その他
ザ・パークハビオ蕨 602号室の設備
キッチン
システムキッチン
ガスコンロ
ガスコンロ二口以上
バス・トイレ
バス・トイレ別
追い焚き
浴室乾燥機
独立洗面台
玄関
TVモニタ付インターホン
オートロック
宅配ボックス
収納
クローゼット
シューズボックス
バルコニー
バルコニー
ルーフバルコニー
室内設備
エアコン
フローリング
室内洗濯機置場
位置・立地
2階以上
インフラ
インターネット可
都市ガス
建物設備
エレベーター
防犯カメラ
駐車場
平面駐車場
駐輪場
バイク置き場
入居条件
ペット可・相談
2人入居可
オンライン相談可
オンライン内見可
保証人不要
ライフステージ
一人暮らしに人気の設備
カップルに人気の設備
家族に人気の設備
夫婦に人気の設備
三世代で人気の設備
こだわり
セキュリティ対策重視
外で子どもと遊びたい
雨の日でも洗濯したい
洋室で暮らしたい
趣味
オークション・通販が好き
ガーデニングが好き
お得な条件
インターネット無料
ザ・パークハビオ蕨 602号室の賃貸契約情報
毎月支払う |
家賃8.3万円/月共益費15,000円/月 |
|---|---|
初期費用 |
敷金83,000円礼金-保証金-敷引き償却金- |
更新料 |
83,000円 |
鍵交換費用 |
- |
室内清掃費用 |
- |
駐車場料金 |
38,500円 |
損保・ |
借家賠付きの火災保険にご加入いただきます。 |
保証会社 |
加入要 保証会社利用料:初回50% 年10000円 |
契約期間 |
2年 |
入居可能日 |
2025年11月中旬 |
フリーレント期間 |
- |
取引形態 |
一般媒介 |
備考 |
駆付けサポート24 (2年間16500円) ペット相談可(小型犬・猫計2匹迄/敷金1か月積増) 楽器相談可(10~20時/連続演奏1時間以内/消音機能付限定)SOHO相談可(登記・不特定多数来訪業種・営業看板設置何れも不可/敷金1か月積増) |
ザ・パークハビオ蕨 602号室の建物情報
建物名称 |
ザ・パークハビオ蕨 |
|---|---|
最寄駅 |
|
所在地 |
埼玉県蕨市塚越 |
階層 |
6階部分(地上10階建) |
構造 |
RC |
築年数 |
新築 |
駐車場 |
38,500円 |
小学校学区 |
東小学校 |
中学校学区 |
東中学校 |
- 学区データについて
- ※学区データは必ずしも正確とは限りません。詳細に関しては最寄店舗または各自治体の教育委員会に必ずご確認ください。
無料この物件に問い合わせ
- ザ・パークハビオ蕨 602号室

-
8.3万円
(共益費
15,000円)
- 敷
- 83,000円
- 礼
- -
- 保
- -
- 償
- -
ザ・パークハビオ蕨 602号室の物件のお問い合わせ先・取り扱い店舗
ハウスコム 蕨店
- アクセス
-
京浜東北・根岸線「蕨駅」西口徒歩1分
- 住所
- 〒335-0004 埼玉県蕨市中央1丁目24−12 宅建西口ビル 1階
- 営業時間
- AM10:00~PM06:00
- 定休日
- なし
- 営業エリア
- 蕨市 川口市 戸田市 さいたま市
- 取引態様
- 賃貸仲介業




























