レオパレスラピュタ ***号室(2階/1K)の賃貸物件(賃貸アパート)
静岡県磐田市にあるレオパレスラピュタ ***号室はバス・トイレ別、室内洗濯機置場、最上階、インターネット可、即入居可などが特徴です。最寄り駅の東海道本線(JR東海)磐田駅からバスで26分、竜洋西小学校から徒歩4分です。レオパレスラピュタ ***号室の詳細はハウスコム 磐田店までお気軽にお問い合わせください!
情報更新日:
次回更新予定日:
※次回更新予定日について:お店側では順次空室確認を行っていますが、次回更新予定日までに空室確認が行えない場合には、この物件情報は自動的に削除されます。
レオパレスラピュタ ***号室の賃貸物件部屋概要
家賃 |
3.3万円
初期費用を |
|---|---|
共益費 |
4,000円
入居可能時期 |
敷金/礼金 |
- / - |
保証金/ |
- / - |
最寄駅 |
|
所在地 |
静岡県磐田市白羽 |
部屋番号 |
***号室 |
間取り |
1K |
専有面積 |
26.08㎡ |
築年数 |
2004年5月(築22年) |
階数 |
2階部分(地上2階建) |
方位・位置 |
ー / その他 |
物件種別 |
賃貸アパート |
構造 |
木造 |
駐車場 |
6,050円 |
小学校学区 |
竜洋西小学校 |
中学校学区 |
竜洋中学校 |
他の空き部屋 |
***号室 108号室 ***号室 201号室 203号室 207号室 209号室 |
- 学区データについて
- ※学区データは必ずしも正確とは限りません。詳細に関しては最寄店舗または各自治体の教育委員会に必ずご確認ください。
レオパレスラピュタ ***号室の特徴
契約条件
敷金と礼金が無料なため、初期費用が比較的安くなる傾向にあります。
セキュリティ
この物件の建物には、宅配ボックスが設置されております。
室内設備
洗濯に便利な設備として、室内洗濯機置場があります。
居室状況
エアコンが設置されています。 家具が備え付けられており、入居後すぐ生活が始められます。 収納スペースとして、玄関にはシューズボックスがあります。
建物設備共用部分
建物の共用スペースに、急な外出や不在がちのご家庭の荷物受け取りに便利な宅配ボックスが設置されています。
周辺施設
この物件の学区は、竜洋西小学校区・竜洋中学校区です。
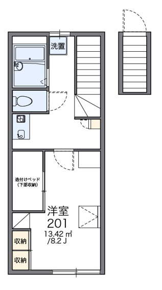
レオパレスラピュタ ***号室の間取り
間取り:1K
間取詳細:1K
専有面積:26.08㎡
方位:ー
部屋位置:その他
レオパレスラピュタ ***号室の設備
バス・トイレ
バス・トイレ別
玄関
宅配ボックス
収納
シューズボックス
室内設備
エアコン
室内洗濯機置場
家具付
位置・立地
2階以上
最上階
インフラ
インターネット可
入居条件
即入居可
ライフステージ
一人暮らしに人気の設備
カップルに人気の設備
家族に人気の設備
夫婦に人気の設備
三世代で人気の設備
こだわり
雨の日でも洗濯したい
寝るためだけの部屋
レオパレスラピュタ ***号室の賃貸契約情報
毎月支払う |
家賃3.3万円/月共益費4,000円/月 |
|---|---|
初期費用 |
敷金-礼金-保証金-敷引き償却金- |
更新料 |
- |
鍵交換費用 |
16,500円 |
室内清掃費用 |
41,800円 |
抗菌施工(任意) |
23,760円 |
駐車場料金 |
6,050円 |
損保・ |
借家賠付きの火災保険にご加入いただきます。 |
保証会社 |
加入要 保証会社利用料:保証料:29390円(契約内容により100~120%で変動有)※記載金額は120%の場合 |
契約期間 |
- |
入居可能日 |
即入居可 |
フリーレント期間 |
- |
取引形態 |
一般媒介 |
備考 |
抗菌施工(任意)18040円から23760円(税込)/環境維持費550円/月、更新手数料16500円/2年(税込)/基本清掃料:34100円(税込) |
レオパレスラピュタ ***号室の建物情報
建物名称 |
レオパレスラピュタ |
|---|---|
最寄駅 |
|
所在地 |
静岡県磐田市白羽 |
階層 |
2階部分(地上2階建) |
構造 |
木造 |
築年数 |
2004年5月(築22年) |
駐車場 |
6,050円 |
小学校学区 |
竜洋西小学校 |
中学校学区 |
竜洋中学校 |
1/7 外観
- 学区データについて
- ※学区データは必ずしも正確とは限りません。詳細に関しては最寄店舗または各自治体の教育委員会に必ずご確認ください。
無料この物件に問い合わせ
- レオパレスラピュタ ***号室

-
3.3万円
(共益費
4,000円)
- 敷
- -
- 礼
- -
- 保
- -
- 償
- -
レオパレスラピュタ ***号室の物件のお問い合わせ先・取り扱い店舗
ハウスコム 磐田店
水曜日営業
土日営業
年中無休(年末年始などを除く)
- アクセス
-
東海道本線(JR東海)「磐田駅」徒歩18分
- 住所
- 〒438-0071 静岡県磐田市今之浦3丁目16−2
- 営業時間
- 10:00~18:00
- 定休日
- なし
- 営業エリア
- 磐田市・袋井市・周智郡森町・浜松市東区
- 取引態様
- 賃貸仲介業
お問い合わせNo. HC5-109837-206-0191














