リベールコート ***号室(1階/2LDK)の賃貸物件(賃貸アパート)
茨城県高萩市にあるリベールコート ***号室は追い焚き、バルコニー、室内洗濯機置場、平面駐車場、2人入居可などが特徴です。最寄り駅の常磐線高萩駅から徒歩11分です。リベールコート ***号室の詳細はハウスコム 水戸駅前店までお気軽にお問い合わせください!
情報更新日:
次回更新予定日:
※次回更新予定日について:お店側では順次空室確認を行っていますが、次回更新予定日までに空室確認が行えない場合には、この物件情報は自動的に削除されます。
リベールコート ***号室の賃貸物件部屋概要
家賃 |
6.6万円
初期費用を |
|---|---|
共益費 |
4,000円
入居可能時期 |
敷金/礼金 |
- / - |
保証金/ |
- / - |
最寄駅 |
|
所在地 |
茨城県高萩市本町 |
部屋番号 |
***号室 |
間取り |
2LDK(LDK11.5・洋6・洋6) |
専有面積 |
53.76㎡ |
築年数 |
2002年9月(築24年) |
階数 |
1階部分(地上2階建) |
方位・位置 |
ー / 角部屋 |
物件種別 |
賃貸アパート |
構造 |
軽量鉄骨 |
駐車場 |
空有 賃料に含む |
小学校学区 |
高萩小学校 |
中学校学区 |
高萩中学校 |
他の空き部屋 |
ー |
- 学区データについて
- ※学区データは必ずしも正確とは限りません。詳細に関しては最寄店舗または各自治体の教育委員会に必ずご確認ください。
リベールコート ***号室の特徴
-
一人暮らしに人気の設備

-
カップルに人気の設備

-
家族に人気の設備

-
夫婦に人気の設備

-
三世代で人気の設備

-
外で子どもと遊びたい

-
急な来客でも駐車したい

-
雨の日でも洗濯したい

-
洋室で暮らしたい

-
寝るためだけの部屋

-
ガーデニングが好き

契約条件
この物件は、2人入居もご契約できます。 また、ご契約時に保証人は不要です。 敷金と礼金が無料なため、初期費用が比較的安くなる傾向にあります。 お支払いは、家賃がクレジットカードにて決済できます。
セキュリティ
来客時には居室内のテレビモニターにて訪問者の顔を確認することができます。
室内設備
お風呂とトイレは別です。お風呂には、追い焚き機能が備わっています。 トイレは、温水洗浄便座機能付きになります。 女性に嬉しい設備のシャワーの付いている洗面化粧台があります。 洗濯に便利な設備として、室内洗濯機置場があります。
居室状況
お部屋の床は、フローリングとなっており、エアコンが設置されています。 照明器具が備え付けられており、インターネットも無料で入居後すぐ生活が始められます。 収納スペースとして、玄関にはシューズボックス、また、床下収納といったあれば嬉しい用途別収納があります。
建物設備共用部分
居室外の専有スペースとして、洗濯物を干すなどの用途として利用できるバルコニーがあります。 平面駐車場があり2台以上の車で利用することができます。
周辺施設
この物件の学区は、高萩小学校区・高萩中学校区です。
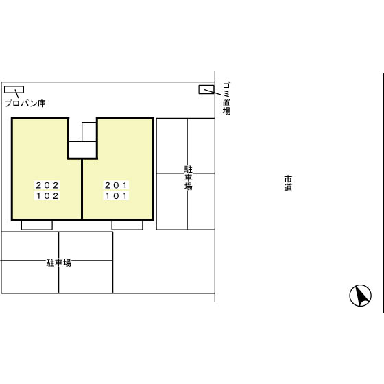
リベールコート ***号室の間取り
間取り:2LDK
間取詳細:2LDK(LDK11.5・洋6・洋6)
専有面積:53.76㎡
方位:ー
部屋位置:角部屋
リベールコート ***号室の設備
バス・トイレ
バス・トイレ別
追い焚き
温水洗浄便座
独立洗面台
シャワー付洗面化粧台
玄関
TVモニタ付インターホン
収納
シューズボックス
床下収納
バルコニー
バルコニー
ルーフバルコニー
室内設備
エアコン
フローリング
室内洗濯機置場
照明器具付
位置・立地
1階
角部屋
インフラ
インターネット可
BS
プロパンガス
建物設備
駐車場
平面駐車場
駐車2台以上可
入居条件
2人入居可
オンライン相談可
保証人不要
ライフステージ
一人暮らしに人気の設備
カップルに人気の設備
家族に人気の設備
夫婦に人気の設備
三世代で人気の設備
こだわり
外で子どもと遊びたい
急な来客でも駐車したい
雨の日でも洗濯したい
洋室で暮らしたい
寝るためだけの部屋
趣味
ガーデニングが好き
お得な条件
インターネット無料
家賃カード決済可
リベールコート ***号室の賃貸契約情報
毎月支払う |
家賃6.6万円/月共益費4,000円/月 |
|---|---|
初期費用 |
敷金-礼金-保証金-敷引き償却金- |
更新料 |
66,000円 |
鍵交換費用 |
- |
室内清掃費用 |
71,500円 |
ルームクリーニング料金 |
71,500円 |
駐車場料金 |
空有 賃料に含む |
損保・ |
借家賠付きの火災保険にご加入いただきます。 |
保証会社 |
加入要 保証会社利用料:初回保証料35,000円 毎月:月額賃料等総額の1.0%+800円 |
契約期間 |
2年 |
入居可能日 |
即入居可 |
フリーレント期間 |
- |
取引形態 |
一般媒介 |
備考 |
ルームクリーニング料金 71500円 |
リベールコート ***号室の建物情報
建物名称 |
リベールコート |
|---|---|
最寄駅 |
|
所在地 |
茨城県高萩市本町 |
階層 |
1階部分(地上2階建) |
構造 |
軽量鉄骨 |
築年数 |
2002年9月(築24年) |
駐車場 |
空有 賃料に含む |
小学校学区 |
高萩小学校 |
中学校学区 |
高萩中学校 |
- 学区データについて
- ※学区データは必ずしも正確とは限りません。詳細に関しては最寄店舗または各自治体の教育委員会に必ずご確認ください。
無料この物件に問い合わせ
- リベールコート ***号室

-
6.6万円
(共益費
4,000円)
- 敷
- -
- 礼
- -
- 保
- -
- 償
- -
リベールコート ***号室の物件のお問い合わせ先・取り扱い店舗
ハウスコム 水戸駅前店
- アクセス
-
常磐線「水戸駅」徒歩2分
- 住所
- 〒310-0011 茨城県水戸市三の丸1丁目1−3 ステーションフロント水戸 1階
- 営業時間
- AM10:00~PM06:00
- 定休日
- 水曜日
- 営業エリア
- 水戸市 ひたちなか市 那珂市 笠間市 茨城町 大洗町 東海村 日立市 大子町 常陸太田市 常陸大宮市 高萩市 城里町
- 取引態様
- 賃貸仲介業





















