クレール中村 101号室(1階/2DK)の賃貸物件(賃貸アパート)
静岡県浜松市中央区にあるクレール中村 101号室は独立洗面台、シャワー付洗面化粧台、クローゼット、ルーフバルコニー、プロパンガスなどが特徴です。クレール中村 101号室の詳細はハウスコム 浜松駅前店までお気軽にお問い合わせください!
情報更新日:
次回更新予定日:
※次回更新予定日について:お店側では順次空室確認を行っていますが、次回更新予定日までに空室確認が行えない場合には、この物件情報は自動的に削除されます。
クレール中村 101号室の賃貸物件部屋概要
家賃 |
5.4万円
初期費用を |
|---|---|
共益費 |
2,000円
入居可能時期 |
敷金/礼金 |
- / - |
保証金/ |
- / - |
最寄駅 |
|
所在地 |
静岡県浜松市中央区桜台 |
部屋番号 |
101号室 |
間取り |
2DK |
専有面積 |
43.20㎡ |
築年数 |
2005年7月(築21年) |
階数 |
1階部分(地上2階建) |
方位・位置 |
南 / 角部屋 |
物件種別 |
賃貸アパート |
構造 |
鉄骨造 |
駐車場 |
空有 賃料に含む |
小学校学区 |
ー |
中学校学区 |
ー |
他の空き部屋 |
***号室 |
- 学区データについて
- ※学区データは必ずしも正確とは限りません。詳細に関しては最寄店舗または各自治体の教育委員会に必ずご確認ください。
クレール中村 101号室の特徴
-
一人暮らしに人気の設備

-
カップルに人気の設備

-
家族に人気の設備

-
夫婦に人気の設備

-
三世代で人気の設備

-
収納重視

-
外で子どもと遊びたい

-
持ち物をスッキリ隠す収納部屋

-
寝るためだけの部屋

-
ガーデニングが好き

契約条件
この物件は、2人入居もご契約できます。 敷金と礼金が無料なため、初期費用が比較的安くなる傾向にあり、更新料が無料なので、長年お得に住み続けることができます。
セキュリティ
来客時には居室内のテレビモニターにて訪問者の顔を確認することができます。
室内設備
トイレは、温水洗浄便座機能付きになります。 女性に嬉しい設備のシャワーの付いている洗面化粧台があります。
居室状況
エアコンが設置されています。 収納スペースとして、基本的な居室にクローゼットを設置、玄関にはシューズボックスがあります。
建物設備共用部分
居室外の専有スペースとして、洗濯物を干すなどの用途として利用できるバルコニーがあります。 駐車場があり、無料で利用することができます。駐輪場が利用できます。
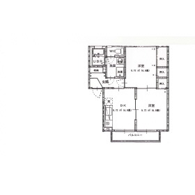
クレール中村 101号室の間取り
間取り:2DK
間取詳細:2DK
専有面積:43.20㎡
方位:南
部屋位置:角部屋
クレール中村 101号室の設備
バス・トイレ
バス・トイレ別
温水洗浄便座
独立洗面台
シャワー付洗面化粧台
玄関
TVモニタ付インターホン
収納
クローゼット
シューズボックス
全居室収納
バルコニー
バルコニー
ルーフバルコニー
室内設備
エアコン
位置・立地
1階
角部屋
南向き
インフラ
BS
プロパンガス
建物設備
駐輪場
入居条件
2人入居可
即入居可
ライフステージ
一人暮らしに人気の設備
カップルに人気の設備
家族に人気の設備
夫婦に人気の設備
三世代で人気の設備
こだわり
収納重視
外で子どもと遊びたい
持ち物をスッキリ隠す収納部屋
寝るためだけの部屋
趣味
ガーデニングが好き
お得な条件
更新料無料
駐車場無料
クレール中村 101号室の賃貸契約情報
毎月支払う |
家賃5.4万円/月共益費2,000円/月 |
|---|---|
初期費用 |
敷金-礼金-保証金-敷引き償却金- |
更新料 |
- |
鍵交換費用 |
- |
室内清掃費用 |
- |
退去修繕費 |
60,000円 |
駐車場料金 |
空有 賃料に含む |
損保・ |
借家賠付きの火災保険にご加入いただきます。 |
保証会社 |
加入要 保証会社利用料:契約時、賃料の50%。以後、毎月800円。 |
契約期間 |
1年 |
入居可能日 |
即入居可 |
フリーレント期間 |
- |
取引形態 |
一般媒介 |
備考 |
- |
クレール中村 101号室の建物情報
建物名称 |
クレール中村 |
|---|---|
最寄駅 |
|
所在地 |
静岡県浜松市中央区桜台 |
階層 |
1階部分(地上2階建) |
構造 |
鉄骨造 |
築年数 |
2005年7月(築21年) |
駐車場 |
空有 賃料に含む |
小学校学区 |
ー |
中学校学区 |
ー |
- 学区データについて
- ※学区データは必ずしも正確とは限りません。詳細に関しては最寄店舗または各自治体の教育委員会に必ずご確認ください。
無料この物件に問い合わせ
- クレール中村 101号室

-
5.4万円
(共益費
2,000円)
- 敷
- -
- 礼
- -
- 保
- -
- 償
- -
クレール中村 101号室の物件のお問い合わせ先・取り扱い店舗
ハウスコム 浜松駅前店
- アクセス
-
東海道本線(JR東海)「浜松駅」徒歩2分
- 住所
- 〒430-0927 静岡県浜松市中央区旭町10-8 浜松駅前ビル1階
- 営業時間
- 10:00~18:00
- 定休日
- 水曜日(12月25日~1月3日は年末年始休暇となります。)
- 営業エリア
- 浜松市中央区、浜名区、天竜区 湖西市
- 取引態様
- 賃貸仲介業















