伊藤第三コーポ 301号室(3階/2LDK)の賃貸物件(賃貸マンション)
千葉県千葉市中央区にある伊藤第三コーポ 301号室はシューズボックス、フローリング、室内洗濯機置場、駐輪場、即入居可などが特徴です。最寄り駅の内房線本千葉駅から徒歩15分です。伊藤第三コーポ 301号室の詳細はハウスコム 千葉中央店までお気軽にお問い合わせください!
情報更新日:
次回更新予定日:
※次回更新予定日について:お店側では順次空室確認を行っていますが、次回更新予定日までに空室確認が行えない場合には、この物件情報は自動的に削除されます。
伊藤第三コーポ 301号室の賃貸物件部屋概要
家賃 |
7.1万円
初期費用を |
|---|---|
共益費 |
3,000円
入居可能時期 |
敷金/礼金 |
2ヶ月 / - |
保証金/ |
- / - |
最寄駅 |
|
所在地 |
千葉県千葉市中央区末広 |
部屋番号 |
301号室 |
間取り |
2LDK |
専有面積 |
55.68㎡ |
築年数 |
1991年4月(築35年) |
階数 |
3階部分(地上3階建) |
方位・位置 |
ー / その他 |
物件種別 |
賃貸マンション |
構造 |
鉄骨造 |
駐車場 |
7,000円 |
小学校学区 |
寒川小学校 |
中学校学区 |
末広中学校 |
他の空き部屋 |
ー |
- 学区データについて
- ※学区データは必ずしも正確とは限りません。詳細に関しては最寄店舗または各自治体の教育委員会に必ずご確認ください。
伊藤第三コーポ 301号室の特徴
契約条件
礼金が無料なため、初期費用が比較的安くなる傾向にあります。
セキュリティ
来客時には居室内のテレビモニターにて訪問者の顔を確認することができます。
室内設備
洗濯に便利な設備として、室内洗濯機置場があります。
居室状況
お部屋の床は、フローリングとなっており、エアコンが設置されています。 収納スペースとして、玄関にはシューズボックスがあります。
建物設備共用部分
駐輪場が利用できます。
周辺施設
この物件の学区は、寒川小学校区・末広中学校区です。
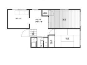
伊藤第三コーポ 301号室の間取り
間取り:2LDK
間取詳細:2LDK
専有面積:55.68㎡
方位:ー
部屋位置:その他
伊藤第三コーポ 301号室の設備
バス・トイレ
バス・トイレ別
玄関
TVモニタ付インターホン
収納
シューズボックス
室内設備
エアコン
フローリング
室内洗濯機置場
位置・立地
2階以上
最上階
インフラ
都市ガス
建物設備
駐輪場
入居条件
即入居可
ライフステージ
一人暮らしに人気の設備
カップルに人気の設備
家族に人気の設備
夫婦に人気の設備
三世代で人気の設備
こだわり
雨の日でも洗濯したい
洋室で暮らしたい
伊藤第三コーポ 301号室の賃貸契約情報
毎月支払う |
家賃7.1万円/月共益費3,000円/月 |
|---|---|
初期費用 |
敷金2ヶ月 (14.2万円)礼金-保証金-敷引き償却金- |
更新料 |
71,000円 |
鍵交換費用 |
- |
室内清掃費用 |
- |
駐車場料金 |
7,000円 |
損保・ |
借家賠付きの火災保険にご加入いただきます。 |
保証会社 |
|
契約期間 |
2年 |
入居可能日 |
即入居可 |
フリーレント期間 |
- |
取引形態 |
一般媒介 |
備考 |
保険要加入 |
伊藤第三コーポ 301号室の建物情報
建物名称 |
伊藤第三コーポ |
|---|---|
最寄駅 |
|
所在地 |
千葉県千葉市中央区末広 |
階層 |
3階部分(地上3階建) |
構造 |
鉄骨造 |
築年数 |
1991年4月(築35年) |
駐車場 |
7,000円 |
小学校学区 |
寒川小学校 |
中学校学区 |
末広中学校 |
- 学区データについて
- ※学区データは必ずしも正確とは限りません。詳細に関しては最寄店舗または各自治体の教育委員会に必ずご確認ください。
無料この物件に問い合わせ
- 伊藤第三コーポ 301号室

-
7.1万円
(共益費
3,000円)
- 敷
- 2ヶ月
- 礼
- -
- 保
- -
- 償
- -
伊藤第三コーポ 301号室の物件のお問い合わせ先・取り扱い店舗
ハウスコム 千葉中央店
- アクセス
-
総武本線「千葉駅」東口徒歩5分
- 住所
- 〒260-0015 千葉県千葉市中央区富士見2丁目7−2 鹿島ビル 3階
- 営業時間
- 10:00~18:00
- 定休日
- 水曜日
- 営業エリア
- 千葉市、四街道市、市原市、茂原市、袖ヶ浦市、木更津市、君津市、富津市、八街市、館山市他
- 取引態様
- 賃貸仲介業
お問い合わせNo. HC4-5148794-301-0066

















