デュオフラッツ日本橋水天宮 1003号室(10階/1DK)の賃貸物件(賃貸マンション)
東京都中央区にあるデュオフラッツ日本橋水天宮 1003号室は独立洗面台、オートロック、エアコン、室内洗濯機置場、ペット可・相談などが特徴です。最寄り駅の東京メトロ 半蔵門線水天宮前駅から徒歩3分です。デュオフラッツ日本橋水天宮 1003号室の詳細はハウスコム 事業戦略室までお気軽にお問い合わせください!
情報更新日:
次回更新予定日:
※次回更新予定日について:お店側では順次空室確認を行っていますが、次回更新予定日までに空室確認が行えない場合には、この物件情報は自動的に削除されます。
デュオフラッツ日本橋水天宮 1003号室の賃貸物件部屋概要
家賃 |
16万円
初期費用を |
|---|---|
共益費 |
10,000円
入居可能時期 |
敷金/礼金 |
1ヶ月 / - |
保証金/ |
- / - |
最寄駅 |
|
所在地 |
東京都中央区日本橋蛎殻町 |
部屋番号 |
1003号室 |
間取り |
1DK(DK5・洋3.7) |
専有面積 |
25.84㎡ |
築年数 |
新築 |
階数 |
10階部分(地上14階建) |
方位・位置 |
南西 / その他 |
物件種別 |
賃貸マンション |
構造 |
RC |
駐車場 |
無 |
小学校学区 |
有馬小学校 |
中学校学区 |
日本橋中学校 |
他の空き部屋 |
0303号室 0401号室 0601号室 0701号室 0702号室 0801号室 1001号室 1002号室 1201号室 1202号室 1301号室 1302号室 |
- 学区データについて
- ※学区データは必ずしも正確とは限りません。詳細に関しては最寄店舗または各自治体の教育委員会に必ずご確認ください。
デュオフラッツ日本橋水天宮 1003号室の特徴
契約条件
ペットの飼育もご相談ください。 礼金が無料なため、初期費用が比較的安くなる傾向にあります。
セキュリティ
この物件の建物には、オートロックや防犯カメラや宅配ボックスが設置されております。
室内設備
お風呂とトイレは別です。お風呂には、追い焚き機能が備わっています。 トイレは、温水洗浄便座機能付きになります。 女性に嬉しい設備の独立した洗面化粧台があります。 洗濯に便利な設備として、室内洗濯機置場があります。浴室乾燥機も設置されているので、梅雨時の生乾き臭も比較的防ぐことができます。
居室状況
エアコンが設置されています。 インターネットも無料で入居後すぐ生活が始められます。
建物設備共用部分
建物の共用スペースに、日々の出入に便利なエレベーターや、いざという時の防犯カメラや、急な外出や不在がちのご家庭の荷物受け取りに便利な宅配ボックスが設置されています。 駐輪場が利用できます。
周辺施設
この物件の学区は、有馬小学校区・日本橋中学校区です。
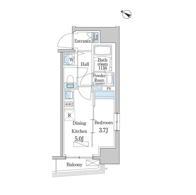
デュオフラッツ日本橋水天宮 1003号室の間取り
間取り:1DK
間取詳細:1DK(DK5・洋3.7)
専有面積:25.84㎡
方位:南西
部屋位置:その他
デュオフラッツ日本橋水天宮 1003号室の設備
バス・トイレ
バス・トイレ別
追い焚き
浴室乾燥機
温水洗浄便座
独立洗面台
玄関
オートロック
宅配ボックス
室内設備
エアコン
室内洗濯機置場
位置・立地
2階以上
建物設備
エレベーター
防犯カメラ
駐輪場
入居条件
ペット可・相談
即入居可
ライフステージ
一人暮らしに人気の設備
カップルに人気の設備
家族に人気の設備
夫婦に人気の設備
三世代で人気の設備
こだわり
雨の日でも洗濯したい
趣味
オークション・通販が好き
お得な条件
フリーレント
インターネット無料
デュオフラッツ日本橋水天宮 1003号室の賃貸契約情報
毎月支払う |
家賃16万円/月共益費10,000円/月 |
|---|---|
初期費用 |
敷金1ヶ月 (16万円)礼金-保証金-敷引き償却金- |
更新料 |
160,000円 |
鍵交換費用 |
- |
室内清掃費用 |
- |
駐車場料金 |
無 |
損保・ |
借家賠付きの火災保険にご加入いただきます。 |
保証会社 |
加入要 保証会社利用料:エポスカード(RP) 保証料:賃料等の50%(最低2万)、月額保証料:賃料等の1%(更新料無) |
契約期間 |
2年 |
入居可能日 |
即入居可 |
フリーレント期間 |
1ヶ月 |
取引形態 |
一般媒介 |
備考 |
清掃費:38500円(退去時請求).エアコン清掃費:11000円(退去時請求) |
デュオフラッツ日本橋水天宮 1003号室の建物情報
建物名称 |
デュオフラッツ日本橋水天宮 |
|---|---|
最寄駅 |
|
所在地 |
東京都中央区日本橋蛎殻町 |
階層 |
10階部分(地上14階建) |
構造 |
RC |
築年数 |
新築 |
駐車場 |
無 |
小学校学区 |
有馬小学校 |
中学校学区 |
日本橋中学校 |
- 学区データについて
- ※学区データは必ずしも正確とは限りません。詳細に関しては最寄店舗または各自治体の教育委員会に必ずご確認ください。
無料この物件に問い合わせ
- デュオフラッツ日本橋水天宮 1003号室

-
16万円
(共益費
10,000円)
- 敷
- 1ヶ月
- 礼
- -
- 保
- -
- 償
- -
デュオフラッツ日本橋水天宮 1003号室の物件のお問い合わせ先・取り扱い店舗
ハウスコム 事業戦略室
- アクセス
-
山手線「品川駅」港南口徒歩3分
- 住所
- 〒108-0075 東京都港区港南2-16-1 品川イーストワンタワー9階
- 営業時間
- 10:00~17:00
- 定休日
- 土曜日・日曜日(祝日定休)
- 営業エリア
- 北区、荒川区、豊島区、文京区、台東区、中央区、新宿区、千代田区、渋谷区、港区、品川区
- 取引態様
- 賃貸仲介業




























