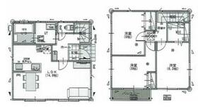
賃貸アパート
- 所在地
- 埼玉県川越市大字的場
- 最寄駅
-
- 川越線 的場駅 (徒歩14分)
- 東武東上線 霞ヶ関駅 (徒歩15分)
- 築年月
- 2026年9月
- 構造
- 木造
- 階数
- 地上3階

写真を見る
- 敷
- -
- 礼
- 131,250円
- 保
- -
- 償
- -
更新
霞ヶ関駅の賃貸物件[マンション・アパート・戸建]328件、建物81件掲載中。物件更新日:2026年05月29日は13件更新。
賃貸アパート


写真を見る
更新
条件を絞り込みませんか?


JR川越線川越駅から西武バスかすみ野行きで12分、水上公園下車、徒歩10分(プール営業日は直通バスが運行)
家族で遊べる施設が大充実
ボート営業やバッテリカー、遊具等子供が楽しめるものから、フットサルコートやテニスコート、ランニングコース、フィットネスジム等の運動施設がある。また、夏季はプール、冬はプールフィッシングが行える。夏季開放のプールは全8種類のプールが揃い、子供から大人まで楽しめる施設となっている。
提供元:昭文社




東武東上線川越市駅からすぐ
白亜の洋館で味わえる本格イタリアン
風情あるたたずまいの洋館でイタリア料理が楽しめる。店を入って直ぐのところに特注のピッツァ窯が設置されている。高温で焼きあげるクリスピーなピッツァがここの看板メニューだ。
提供元:昭文社

東武東上線霞ケ関駅から徒歩15分
武蔵国の豪族・河越氏の館跡を公園に整備
平安時代末から南北朝時代、武蔵国で有数の勢力を誇った武士、河越氏の館跡を整備。市民が憩う公園になっている。
提供元:昭文社
20代 / 女性 / 元住人
お買い物・飲食
大型スーパーが近く、買い物には困らない。またコンビニも複数種類あり、充実している。ファミレスもあるが、ラーメン屋やカレー屋が多い
20代 / 男性 / 元住人
お買い物・飲食
買い物については、駅周りにスーパー、薬局がありたいてい問題ないが、飲食店が居酒屋ばかりのイメージであった。
※口コミに関するお問い合わせはこちらからお願いします。
似た条件でさらに探す
室内設備
ライフステージ
こだわり
バス・トイレ
玄関
収納
バルコニー
趣味
建物設備
キッチン
インフラ
入居条件
位置・立地
お得な条件
トレンド