賃貸マンション
- 所在地
- 東京都世田谷区祖師谷
- 最寄駅
-
- 小田急小田原線 祖師ヶ谷大蔵駅 (徒歩3分)
- 小田急小田原線 成城学園前駅 (徒歩15分)
- 築年月
- 2026年4月
- 構造
- RC
- 階数
- 地上3階

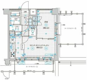
写真を見る
- 敷
- 1ヶ月
- 礼
- 1ヶ月
- 保
- -
- 償
- -
公開
成城学園前駅の賃貸物件[マンション・アパート・戸建]1,360件、建物91件掲載中。物件更新日:2026年04月07日は18件更新。
賃貸マンション


写真を見る
公開
条件を絞り込みませんか?


小田急小田原線祖師ヶ谷大蔵駅から徒歩5分
温泉をはじめプールジャグジーや電気風呂、サウナがそろう
浴槽は黒湯を満たした温泉槽をはじめ、白湯、シルキーバス、水風呂、ジャグジーの5種がある。高温サウナや低温ミストサウナ、冷凍サウナと、浴槽以外の施設も充実している。
提供元:昭文社



京王線仙川駅から徒歩7分
マヨネーズのさまざまなトピックを楽しく学ぶ
キユーピー仙川工場跡地に完成した見学施設。コミュニケーターが90分間フルアテンドでマヨネーズの歴史や製造工程での工夫、おいしさの秘密などを紹介する。完全予約制。
提供元:昭文社




小田急小田原線成城学園前駅から徒歩15分
江戸後期の古民家を移築復元
主屋や土蔵などがある屋敷や、典型的な農村民家、消防小屋、昔懐かしい小川など世田谷の農村風景を復元した民家園。「子どもの日」「元日開園」などの行事を行っている。
提供元:昭文社
40代 / 男性 / 元住人
子育て・病院
子供はいないので詳細は書けないが、地域柄教育熱心と思われる親御さんが沢山いると思われ、学習塾もかなりあるので子育てには向いている地域かと思う。
40代 / 女性 / 賃貸検討者
お買い物・飲食
場所柄かコンビニエンスストアも規制があったりで、店自体が多い訳ではないし石井、OXは高めです。飲食店も一人暮らしの場合特に入りやすい店は少ないよう。急行が止まる事と緑が多いので空気が都心に比べいいですが。
※口コミに関するお問い合わせはこちらからお願いします。
似た条件でさらに探す
室内設備
ライフステージ
こだわり
インフラ
入居条件
バス・トイレ
趣味
バルコニー
収納
玄関
キッチン
建物設備
位置・立地
お得な条件
トレンド