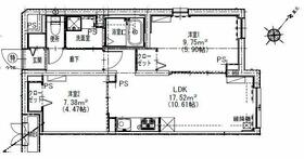
賃貸アパート
- 所在地
- 東京都世田谷区世田谷
- 最寄駅
-
- 東急世田谷線 上町駅 (徒歩7分)
- 東急田園都市線 桜新町駅 (徒歩18分)
- 築年月
- 2026年3月
- 構造
- 木造
- 階数
- 地上3階

写真を見る
- 敷
- -
- 礼
- 232,000円
- 保
- -
- 償
- -
公開
桜新町駅の賃貸物件[マンション・アパート・戸建]1,765件、建物163件掲載中。物件更新日:2025年11月18日は64件更新。
賃貸アパート


写真を見る
公開
条件を絞り込みませんか?

サザエさん一家の舞台となったこの街は、サザエさん通りや長谷川町子美術館などもあり、とにかくサザエさん一色の非常に楽しい雰囲気が味わえる。
平坦で整備された道路には、スーパーや薬局、コンビになどが等間隔に立ち並び、とても歩きやすく買い物しやすい印象を受けた。
駅前にあるお洒落なお店は女性やファミリー客で賑わい、少し足を伸ばすと自然が増え、大きな公園もありお散歩コースとして活躍しそうだ。
最後に交通アクセスだが、渋谷まで10分という好立地。終電を逃しても2,000円台で帰宅出来てしまう。
交通アクセスの良さ、買い物の便利さ、閑静な住環境。これだけ好条件ということもあり家賃相場は格別安いわけではないが、ぜひとも一度は暮らしてみたい魅力的な街のひとつだ。
街の特徴の情報は2012年5月10日時点での情報です。掲載内容の実施に関してはご自身で最新の情報をご確認ください。
| 主要駅までの所要時間 | 渋谷駅→10分 / 新宿駅→17分 |
|---|---|
| 急行・快速 | 各駅停車のみ |
| 乗降人員数 | 61,183人 |
| タクシー代 | 渋谷駅から2,000円台※深夜割増し適用済み料金 |
| 沿線名 | 東急田園都市線 |
|---|---|
| 始発 | 05:07(桜新町駅→渋谷駅) |
| 終電 | 00:42(渋谷駅→桜新町駅) |
※表示所要時間は、日中平常時の最速のもので、乗り換え・待ち時間を含みません。




東急東横線自由が丘駅から徒歩10分
世界トップレベルのスイーツ
スイーツの流行を創り上げるパティシエ辻口博啓氏の店。店内にはケーキ、パン、焼き菓子、ショコラも並び、サロンで出来立てを楽しめる。
提供元:昭文社




東急東横線自由が丘駅から徒歩5分
「ハッピー&スマイル」になるお店
石畳の道、SUNSETALLEY沿いの生活雑貨店。国内外から集められたキッチン・バス用品やステーショナリー、アクセサリー、バッグ、BABYギフトコーナーなど多様な雑貨が揃う。
提供元:昭文社



東急東横線自由が丘駅からすぐ
とろけるチーズタルトに夢中
焼きたてチーズタルト専門店。工房一体型の店舗で、焼きたての一番おいしい状態のチーズタルトを提供する。
提供元:昭文社
60代以上 / 男性 / 住人
お買い物・飲食
お買い物は徒歩圏のスーパーが多くあります。徒歩で5分以内に西友、10分以内にピーコック、サミット、15分以内にオーゼキ、ライフ、成城石井があります。商店では、2分以内で列ができる魚屋さんがあり、新鮮なお刺身が食卓に並ぶ機会が増えました。ネット配達も活用し、食品、日用品のお買い物のストレスは少ないと思います。1分以内でファミリーマートがあります。 飲食は、桜新町駅方面と駒澤大学駅・駒沢通りにたくさんの飲食店が徒歩圏にあります。競争が激しく、閉店、開店のニュースが絶えません。駒沢公園に近いため、ペット同伴可能なお店が多いのもこのエリアの特長と言えます。
40代 / 男性 / 元住人
自然環境
緑が多すぎて、よる暗くなった時に、死角が増えるのはやや不安かもしれないですね。公園や自然が多いので、夏は蚊が多くて、子どもには気になる面も。
※口コミに関するお問い合わせはこちらからお願いします。
似た条件でさらに探す
ライフステージ
室内設備
こだわり
入居条件
インフラ
収納
趣味
バルコニー
キッチン
バス・トイレ
建物設備
玄関
位置・立地
お得な条件
トレンド