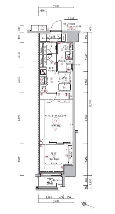
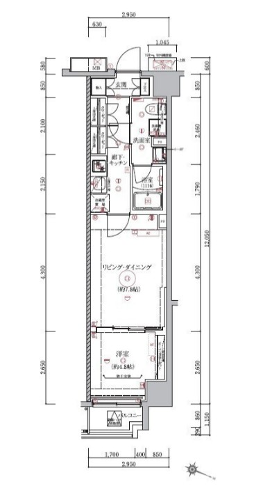
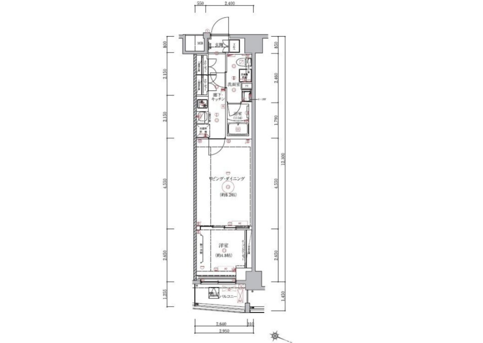
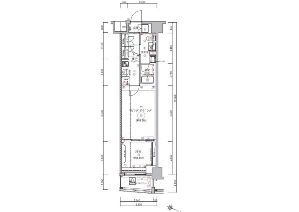
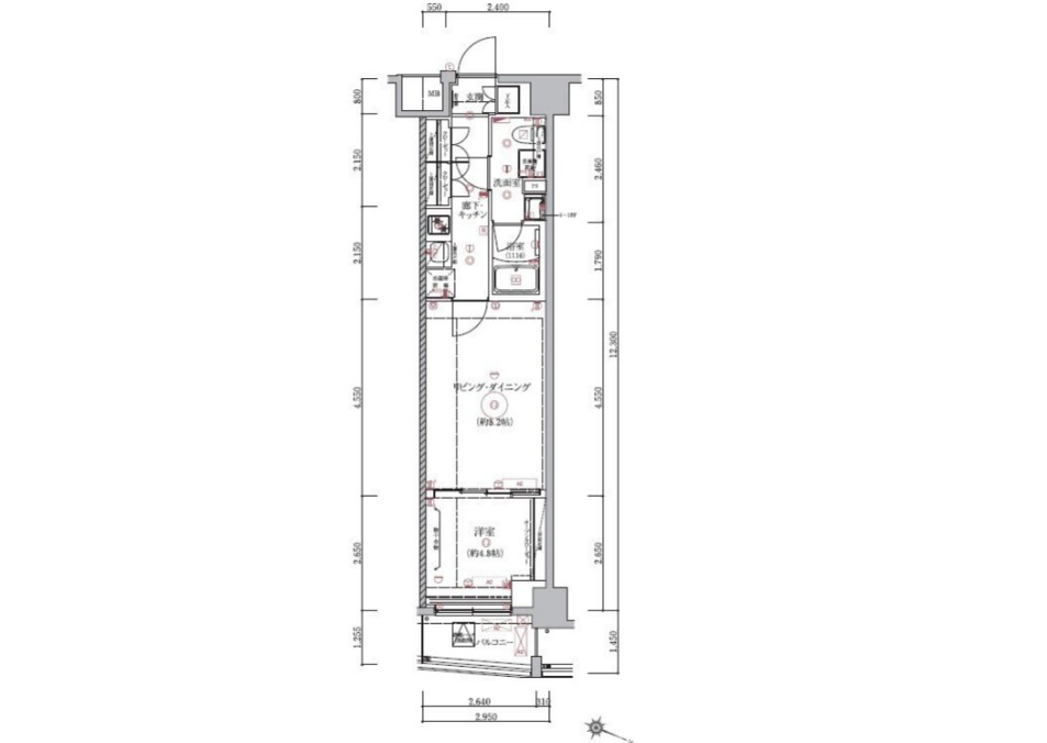
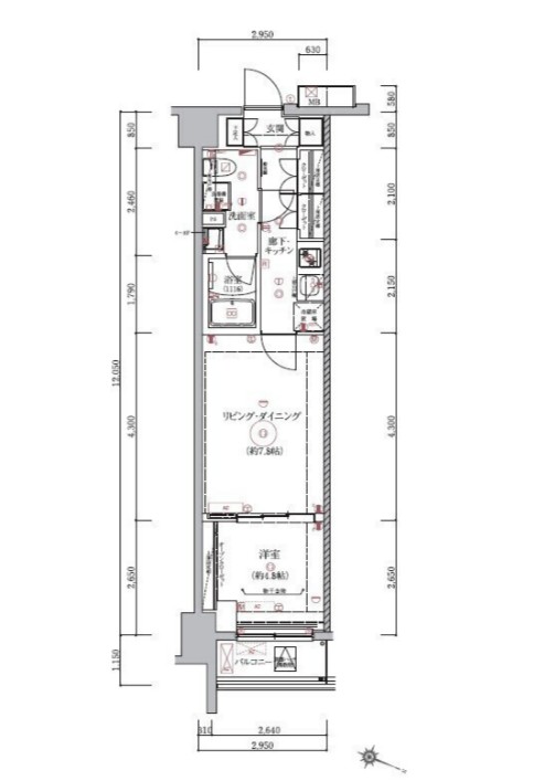
賃貸マンション
- 所在地
- 東京都板橋区蓮沼町
- 最寄駅
-
- 都営三田線 本蓮沼駅 (徒歩2分)
- 都営三田線 板橋本町駅 (徒歩11分)
- 築年月
- 2026年1月
- 構造
- RC
- 階数
- 地上13階

写真を見る
- 敷
- -
- 礼
- -
- 保
- -
- 償
- -
公開
板橋本町駅の賃貸物件[マンション・アパート・戸建]1,010件、建物77件掲載中。物件更新日:2026年02月17日は66件更新。
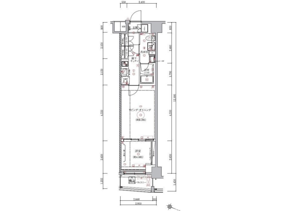
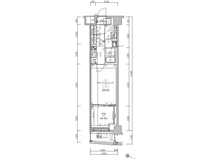
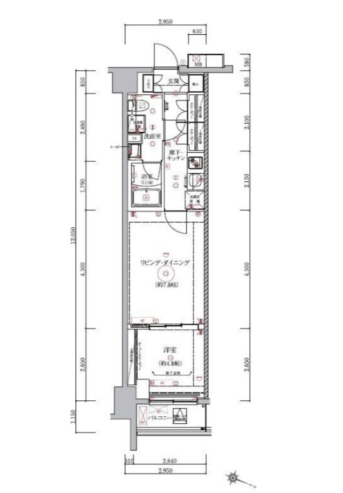
賃貸マンション


写真を見る
公開
条件を絞り込みませんか?




地下鉄志村坂上駅から徒歩8分
源泉掛け流しの天然温泉
地下1500mから湧き出る源泉掛け流しの湯は、うぐいす色をしたにごり湯のナトリウム-塩化物強塩泉。美しい庭園を眺めながらの食事もいい。昭和の風情漂う佇まいの施設でゆっくりと温泉を楽しもう。
提供元:昭文社


JR山手線巣鴨駅から徒歩5分
お参りがてら、散策も楽しめる
中山道沿いの街として江戸中期から栄え、明治24(1891)年に高岩寺が移転してきてからは信仰の街として親しまれるように。今は約200店が軒を連ね、ゆったりとした時間が流れる中、心は癒され身体は元気になると評判の町。
提供元:昭文社


JR山手線巣鴨駅から徒歩5分
延命地蔵菩薩が「心身のとげ」を抜く
病気治癒の御利益で知られるとげぬき地蔵尊。江戸時代、針を飲み込み苦しんでいる女性に御影を飲ませたところ、針が御影を貫いて出たのが「とげぬき」の由来。
提供元:昭文社
30代 / 女性 / 元住人
治安・安全
ラーメン屋さんや飲み屋、牛丼やなど男性が好みそうな飲食店が連なるので、男性でワイワイしているところを通ります。気になる人は気になるかも。
30代 / 女性 / 元住人
お買い物・飲食
王子神谷駅には飲食店はジョナサンと吉野家くらいしかないのですが、東十条駅のの商店街に行けば、和食、居酒屋、ハンバーガー、ラーメン屋、蕎麦屋などたくさんある。美味しいお店も沢山あるので、外食先には困らないと思う。
※口コミに関するお問い合わせはこちらからお願いします。
似た条件でさらに探す
室内設備
ライフステージ
こだわり
バス・トイレ
位置・立地
玄関
キッチン
収納
入居条件
建物設備
バルコニー
趣味
インフラ
お得な条件
トレンド