***号室

写真を見る
7.2万円 (共益費 7,000円)
- 敷
- 50,000円
- 礼
- 200,000円
- 保
- -
- 償
- -
公開
樫切山の完工年月(1978年7月)築の賃貸マンションは、大阪府吹田市樫切山にある4階建の賃貸マンションです。築年月は、1978年7月で現在築48年になります。最寄り駅の大阪モノレール 本線万博記念公園駅から徒歩16分です。
この建物に1件の情報更新日:
参考賃料 |
7.2万円 |
|---|---|
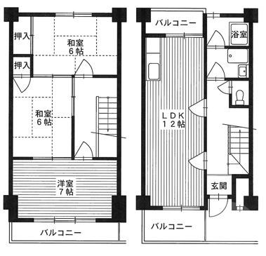
間取り |
3LDK |
空室 |
1部屋 空室を見る |
物件種別 |
賃貸マンション |
階層 |
地上4階 |
構造 |
RC |
築年数 |
1978年7月(築48年) |
駐車場 |
19,800円 |
最寄駅 |
|
所在地 |
大阪府吹田市樫切山 |
小学校学区 |
南山田小学校 |
中学校学区 |
山田中学校 |
50代 / 男性 / 住人
周辺は、買い物に困ることはない。 一人暮らしでも、スパーマーケットや、安い飲食店も沢山ある。クリーニング屋もかなりある。 〓〓〓 追記 〓〓〓 最近、ドン・キホーテも歩いて3分くらいの所にオープンしたため、何時でも・何でも調達できる。ファミレス・居酒屋・バー・ラーメン・定食屋・回転ずし・牛丼屋・ハンバーガーなど、一人暮らしで、外食に困ることはない。
40代 / 女性 / 元住人
駅にコーヨーというイオン系のスーパーがあり(夜10時まで)、取り扱っているものも種類が豊富で(特にお肉類)便利でよく利用していました。調味料やお酒の種類も多かったと思います。また、駅ビルに2店舗程(コロッケや焼き鳥)お惣菜屋さんがあり、忙しい時は良く利用しました。その他、和風カフェやうどん屋さん、洋食屋さん等ありますが、欲を言えばもう少し数があると選択肢が増えて良かったと思います。自炊されない方には物足りないかもしれません。娯楽施設等はありませんが、その分落ち着いた雰囲気で、閑静な雰囲気がお好きな方には良いと思います。駅前のドラッグストアは大きくて品ぞろえも豊富でした。
※口コミに関するお問い合わせはこちらからお願いします。