603号室

写真を見る
10万円 (共益費 15,000円)
- 敷
- 1ヶ月
- 礼
- 1ヶ月
- 保
- -
- 償
- -
公開
ジーベック東日暮里ノースは、東京都荒川区東日暮里にある8階建の賃貸マンションです。築年月は、2016年6月で現在築10年になります。最寄り駅の東京さくらトラム(都電荒川線)三ノ輪橋駅から徒歩8分です。
この建物に2件の情報更新日:
参考賃料 |
9.45万円~10万円 |
|---|---|
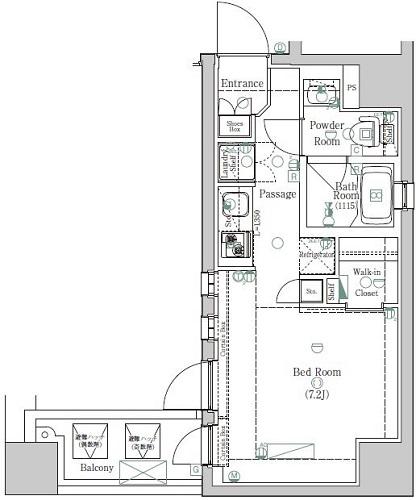
間取り |
1R~1K |
空室 |
2部屋 空室を見る |
物件種別 |
賃貸マンション |
階層 |
地上8階 |
構造 |
RC |
築年数 |
2016年6月(築10年) |
駐車場 |
- |
最寄駅 |
|
所在地 |
東京都荒川区東日暮里 |
小学校学区 |
第三峡田小学校 |
中学校学区 |
第一中学校 |
取り扱う不動産会社・店舗が2社、募集中の部屋が2部屋あります。

写真を見る















10万円 (共益費 15,000円)
公開

写真を見る















10万円 (共益費 15,000円)
公開
掲載履歴とは、過去に掲載された時点の情報を履歴として一覧にまとめたものです。
※最終的な成約賃料とは異なる場合があります。また、将来の募集賃料を保証するものではありません。
40代 / 女性 / 元住人
近くに商店街があり、歩いているだけで楽しいです。お惣菜屋さんや食事処もあります。お好み焼きは絶品です。夜はバーや居酒屋も多いですが、のどかで安全なところです。都電が走っているので、市役所や遊び場所にもすぐ行かれます。昔ながらの下町なのですが、治安は良く、気さくな方々が多いです。すぐそこが駅なので、千代田線に乗って何処にでも出られます。
40代 / 女性 / 元住人
公園や広場、ふれあい館やおもちゃ図書館といった施設がたくさんあります。小児科も多いです。各ふれあい館で実施している子供服やおもちゃの無料リサイクルが何より家計に優しく有り難い!
※口コミに関するお問い合わせはこちらからお願いします。




東武スカイツリーラインとうきょうスカイツリー駅からすぐ
いきものの息づかいを間近で感じる
約250種のいきものを展示。世界遺産・小笠原諸島の海を再現した小笠原大水槽や、ペンギンとオットセイが暮らす屋内開放型水槽など、いきものを間近で観察できる。
提供元:昭文社

東武スカイツリーラインとうきょうスカイツリー駅からすぐ
東京スカイツリーの足元に広がる大型商業施設
タワーの足元に広がり、300店以上が集結する大型商業施設。フード、ファッション、雑貨など、いずれも多彩なラインナップ。ソラマチ限定メニューやグッズも目白押しだ。
提供元:昭文社




東武スカイツリーラインとうきょうスカイツリー駅からすぐ
2つの展望台から絶景を楽しむ
高さ634mの世界一高い自立式電波塔。空に向かって伸びる大きな木をイメージした造り。地上350mと450mの位置に展望台が設置され、450mからは晴天時、約75km先まで見渡せる。
提供元:昭文社