1号室

写真を見る
25万円 (共益費 -)
- 敷
- -
- 礼
- 1ヶ月
- 保
- -
- 償
- -
公開
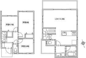
下高井戸4丁目戸建は、東京都杉並区下高井戸にある2階建の賃貸一戸建てです。築年月は、2023年10月で現在築3年になります。最寄り駅の京王線桜上水駅から徒歩11分です。
この建物に8件の情報更新日:
取り扱う不動産会社・店舗が8社、募集中の部屋が8部屋あります。

写真を見る






25万円 (共益費 -)
公開

写真を見る






25万円 (共益費 -)
公開

写真を見る






25万円 (共益費 -)
公開

写真を見る






25万円 (共益費 -)
公開

写真を見る






25万円 (共益費 -)
公開

写真を見る






25万円 (共益費 -)
公開

写真を見る






25万円 (共益費 -)
公開

写真を見る






25万円 (共益費 -)
公開
30代 / 男性 / 住人
公園が多いです。 少し歩いたところに公園がずっと並んでいます。 特にランニングのできるトラックがある公園では、夜ランニングに来る人がいつもいます。 他にも大小様々な公園があり、散歩好きの人にはたまらない環境だと思います。
50代 / 女性 / 住人の友人知人
周囲は閑静な住宅街で高い建物もなく、駅からの道も割と幅が広く見通しが良い上、大体のご家庭が玄関先に防犯カメラを設置しているため、犯罪抑止力があります。 木が茂っているお宅などもあり、街灯が多少暗く感じますが、電車利用なら終電間近でなければ大体同じ方向の人がいるので不安感が少ないです。 物件自体にも防犯カメラが設置されています。
※口コミに関するお問い合わせはこちらからお願いします。




京王井の頭線高井戸駅からすぐ
都会にある癒しの空間
地下1600mから汲み上げる天然温泉。内風呂にはアトラクション風呂もあり、露天風呂は東屋のある岩風呂。環八通り沿いとは思えないほど静かで、木々の緑が趣を添えている。土・日曜、祝日はプール使用可(小学生以上)。
提供元:昭文社

JR中央線荻窪駅から関東バス北裏行きで7分、荻窪警察署前下車すぐ
日本のアニメを総合的に紹介するミュージアム
子どもからシニアまで、世代を超えて日本のアニメーション全体を体系づけて、学び、体験し、理解しながら楽しめるアニメーションの総合ミュージアム。
提供元:昭文社

地下鉄南阿佐ヶ谷駅からすぐ
阿佐ヶ谷駅に近く、新宿へも好アクセス
ルートイングループのホテル。宴会にも対応できるホールがある。阿佐ヶ谷駅に近く、新宿へも好アクセス。フロントは24時間営業している。
提供元:昭文社