***号室

写真を見る
6.55万円 (共益費 4,000円)
- 敷
- -
- 礼
- 65,500円
- 保
- -
- 償
- -
公開
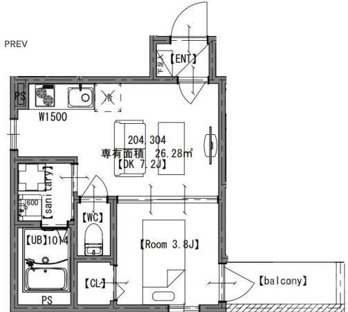
菅原の完工年月(2026年3月)築の賃貸アパートは、大阪府大阪市東淀川区菅原にある4階建の賃貸アパートです。築年月は、2026年3月で現在築0年になります。最寄り駅のおおさか東線JR淡路駅から徒歩8分です。
この建物に5件の情報更新日:
取り扱う不動産会社・店舗が1社、募集中の部屋が5部屋あります。

写真を見る













6.55万円 (共益費 4,000円)
公開

写真を見る














6.75万円 (共益費 4,000円)
公開

写真を見る














6.7万円 (共益費 4,000円)
公開

写真を見る














6.75万円 (共益費 4,000円)
公開

写真を見る














6.6万円 (共益費 4,000円)
公開
30代 / 女性 / 元住人
東淀川駅の東側は住宅地が多く、それに伴い公園も点在しています。都市部にしては緑は多い方だと思います。
30代 / 女性 / 住人
周りに公園がたくさんある。近くに淀川があるので堤防に行くと沢山自然に触れることができる。夏になるとBBQしてる人もいる。
※口コミに関するお問い合わせはこちらからお願いします。
