樫切山の完工年月(1978年7月)築の賃貸マンション ***号室(2階/3LDK)の賃貸物件(賃貸マンション)
大阪府吹田市にある樫切山の完工年月(1978年7月)築の賃貸マンション ***号室はフローリング、2階以上、都市ガス、駐輪場、メゾネットなどが特徴です。最寄り駅の大阪モノレール 本線万博記念公園駅から徒歩16分です。樫切山の完工年月(1978年7月)築の賃貸マンション ***号室の詳細はクラスモ FCJR吹田駅前店までお気軽にお問い合わせください!
情報更新日:
次回更新予定日:
※次回更新予定日について:お店側では順次空室確認を行っていますが、次回更新予定日までに空室確認が行えない場合には、この物件情報は自動的に削除されます。
樫切山の完工年月(1978年7月)築の賃貸マンション ***号室の賃貸物件部屋概要
家賃 |
7.2万円
初期費用を |
|---|---|
共益費 |
7,000円
入居可能時期 |
敷金/礼金 |
50,000円 / 200,000円 |
保証金/ |
- / - |
最寄駅 |
|
所在地 |
大阪府吹田市樫切山 |
部屋番号 |
***号室 |
間取り |
3LDK(LDK12・和6・和6・洋7) |
専有面積 |
78.00㎡ |
築年数 |
1978年7月(築48年) |
階数 |
2階部分(地上4階建) |
方位・位置 |
東 / その他 |
物件種別 |
賃貸マンション |
構造 |
RC |
駐車場 |
19,800円 |
小学校学区 |
南山田小学校 |
中学校学区 |
山田中学校 |
他の空き部屋 |
***号室 |
- 学区データについて
- ※学区データは必ずしも正確とは限りません。詳細に関しては最寄店舗または各自治体の教育委員会に必ずご確認ください。
樫切山の完工年月(1978年7月)築の賃貸マンション ***号室の特徴
契約条件
この物件は、2人入居もご契約できます。
室内設備
女性に嬉しい設備の独立した洗面化粧台があります。 洗濯に便利な設備として、室内洗濯機置場があります。
居室状況
居室には、和室の居室もあり、子育てやリラックススペースとしての利用もできます。 お部屋の床は、フローリングとなっています。
建物設備共用部分
居室外の専有スペースとして、洗濯物を干すなどの用途として利用できるバルコニーがあります。 駐輪場が利用できます。
周辺施設
この物件の学区は、南山田小学校区・山田中学校区です。近くには、徒歩35分(2788m)でドラッグストアが、徒歩21分(1671m)で銀行があります。
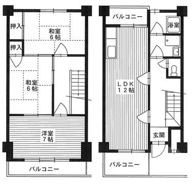
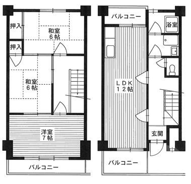
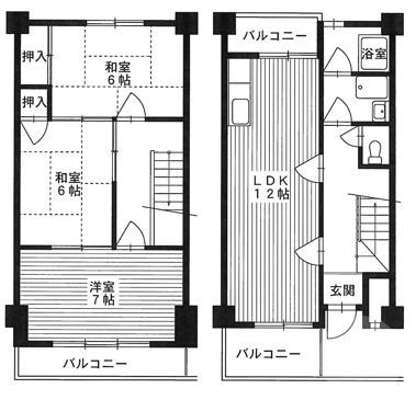
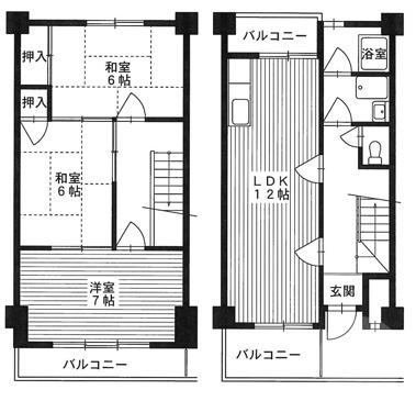
樫切山の完工年月(1978年7月)築の賃貸マンション ***号室の間取り
間取り:3LDK
間取詳細:3LDK(LDK12・和6・和6・洋7)
専有面積:78.00㎡
方位:東
部屋位置:その他
樫切山の完工年月(1978年7月)築の賃貸マンション ***号室の設備
バス・トイレ
バス・トイレ別
独立洗面台
バルコニー
バルコニー
室内設備
フローリング
室内洗濯機置場
和室あり
位置・立地
2階以上
インフラ
都市ガス
建物設備
駐輪場
メゾネット
入居条件
2人入居可
即入居可
ライフステージ
一人暮らしに人気の設備
カップルに人気の設備
家族に人気の設備
夫婦に人気の設備
三世代で人気の設備
こだわり
雨の日でも洗濯したい
洋室で暮らしたい
樫切山の完工年月(1978年7月)築の賃貸マンション ***号室の賃貸契約情報
毎月支払う |
家賃7.2万円/月共益費7,000円/月 |
|---|---|
初期費用 |
敷金50,000円礼金200,000円保証金-敷引き償却金- |
更新料 |
- |
鍵交換費用 |
- |
室内清掃費用 |
- |
安心入居サポート |
990円 |
駐車場料金 |
19,800円 |
損保・ |
借家賠付きの火災保険にご加入いただきます。 |
保証会社 |
加入要 保証会社:その他 保証会社利用料:初回保証料:総賃料の50%(最低保証料25,000円) 更新料:10,00円/年 口座振替手数料:300(税抜)/月 ※連帯保証人必要 |
契約期間 |
2年 |
入居可能日 |
即入居可 |
フリーレント期間 |
- |
取引形態 |
仲介 |
備考 |
お部屋探しはクラスモJR吹田駅前店で新婚様・カップル様 大歓迎・応援中医療従事者様 大歓迎・応援中新社会人様 大歓迎・応援中 |
樫切山の完工年月(1978年7月)築の賃貸マンション ***号室の建物情報
建物名称 |
樫切山の完工年月(1978年7月)築の賃貸マンション |
|---|---|
最寄駅 |
|
所在地 |
大阪府吹田市樫切山 |
階層 |
2階部分(地上4階建) |
構造 |
RC |
築年数 |
1978年7月(築48年) |
駐車場 |
19,800円 |
小学校学区 |
南山田小学校 |
中学校学区 |
山田中学校 |
- 学区データについて
- ※学区データは必ずしも正確とは限りません。詳細に関しては最寄店舗または各自治体の教育委員会に必ずご確認ください。
無料この物件に問い合わせ
- 樫切山の完工年月(1978年7月)築の賃貸マンション ***号室

-
7.2万円
(共益費
7,000円)
- 敷
- 50,000円
- 礼
- 200,000円
- 保
- -
- 償
- -
樫切山の完工年月(1978年7月)築の賃貸マンション ***号室の物件のお問い合わせ先・取り扱い店舗
クラスモ FCJR吹田駅前店
- アクセス
-
東海道本線(JR西日本)「吹田駅」徒歩2分
阪急千里線「吹田駅」徒歩13分
阪急千里線「豊津駅」徒歩23分
- 住所
- 〒564-0027 大阪府吹田市朝日町2番 さんくす2番館138号室
- 営業時間
- 10:00~19:00
- 定休日
- 水曜日
- 営業エリア
- 吹田市・摂津市・茨木市 ・東淀川区・淀川区・西淀川区・北区・福島区・中央区
- 取引態様
- 賃貸仲介業・物件売買業・FC店



































