S-RESIDENCE四日市市堀木amante 204号室(2階/1K)の賃貸物件(賃貸マンション)
三重県四日市市にあるS-RESIDENCE四日市市堀木amante 204号室は宅配ボックス、エアコン、BS、駐車場、オンライン内見可などが特徴です。最寄り駅の近鉄名古屋線近鉄四日市駅から徒歩16分です。S-RESIDENCE四日市市堀木amante 204号室の詳細はハウスコム 四日市店までお気軽にお問い合わせください!
情報更新日:
次回更新予定日:
※次回更新予定日について:お店側では順次空室確認を行っていますが、次回更新予定日までに空室確認が行えない場合には、この物件情報は自動的に削除されます。
S-RESIDENCE四日市市堀木amante 204号室の賃貸物件部屋概要
家賃 |
6.15万円
初期費用を |
|---|---|
共益費 |
8,000円
入居可能時期 |
敷金/礼金 |
- / 1ヶ月 |
保証金/ |
- / - |
最寄駅 |
|
所在地 |
三重県四日市市堀木 |
部屋番号 |
204号室 |
間取り |
1K(洋8) |
専有面積 |
24.95㎡ |
築年数 |
新築 |
階数 |
2階部分(地上14階建) |
方位・位置 |
南東 / その他 |
物件種別 |
賃貸マンション |
構造 |
RC |
駐車場 |
12,100円 |
小学校学区 |
中部西小学校 |
中学校学区 |
中部中学校 |
他の空き部屋 |
201号室 202号室 203号室 205号室 206号室 207号室 |
- 学区データについて
- ※学区データは必ずしも正確とは限りません。詳細に関しては最寄店舗または各自治体の教育委員会に必ずご確認ください。
S-RESIDENCE四日市市堀木amante 204号室の特徴
-
一人暮らしに人気の設備

-
カップルに人気の設備

-
家族に人気の設備

-
夫婦に人気の設備

-
三世代で人気の設備

-
セキュリティ対策重視

-
外で子どもと遊びたい

-
雨の日でも洗濯したい

-
洋室で暮らしたい

-
服やおしゃれが好き

-
オークション・通販が好き

-
ガーデニングが好き

契約条件
敷金が無料なため、初期費用が比較的安くなる傾向にあります。
セキュリティ
この物件の建物には、オートロックや防犯カメラや宅配ボックスが設置されており、来客時には居室内のテレビモニターにて訪問者の顔を確認することができます。
室内設備
システムキッチンには、2つ以上のガスコンロが備え付けられています。 女性に嬉しい設備の独立した洗面化粧台があります。 洗濯に便利な設備として、室内洗濯機置場があります。浴室乾燥機も設置されているので、梅雨時の生乾き臭も比較的防ぐことができます。
居室状況
お部屋の床は、フローリングとなっており、エアコンが設置されています。 インターネットも無料で入居後すぐ生活が始められます。 収納スペースとして、通常よりも収納力の高いウォークインクローゼットがあります。
建物設備共用部分
居室外の専有スペースとして、洗濯物を干すなどの用途として利用できるバルコニーがあります。 建物の共用スペースに、日々の出入に便利なエレベーターや、いざという時の防犯カメラや、急な外出や不在がちのご家庭の荷物受け取りに便利な宅配ボックスが設置されています。 平面駐車場があります。駐輪場、バイク置き場が利用できます。
周辺施設
この物件の学区は、中部西小学校区・中部中学校区です。
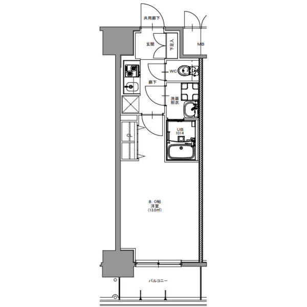
S-RESIDENCE四日市市堀木amante 204号室の間取り
間取り:1K
間取詳細:1K(洋8)
専有面積:24.95㎡
方位:南東
部屋位置:その他
S-RESIDENCE四日市市堀木amante 204号室の設備
キッチン
システムキッチン
ガスコンロ
ガスコンロ二口以上
バス・トイレ
バス・トイレ別
浴室乾燥機
独立洗面台
玄関
TVモニタ付インターホン
オートロック
宅配ボックス
収納
ウォークインクローゼット
バルコニー
バルコニー
ルーフバルコニー
室内設備
エアコン
フローリング
室内洗濯機置場
位置・立地
2階以上
インフラ
BS
CS
建物設備
エレベーター
防犯カメラ
駐車場
平面駐車場
駐輪場
バイク置き場
入居条件
オンライン相談可
オンライン内見可
ライフステージ
一人暮らしに人気の設備
カップルに人気の設備
家族に人気の設備
夫婦に人気の設備
三世代で人気の設備
こだわり
セキュリティ対策重視
外で子どもと遊びたい
雨の日でも洗濯したい
洋室で暮らしたい
趣味
服やおしゃれが好き
オークション・通販が好き
ガーデニングが好き
お得な条件
インターネット無料
S-RESIDENCE四日市市堀木amante 204号室の賃貸契約情報
毎月支払う |
家賃6.15万円/月共益費8,000円/月 |
|---|---|
初期費用 |
敷金-礼金1ヶ月 (6.15万円)保証金-敷引き償却金- |
更新料 |
61,500円 |
鍵交換費用 |
- |
室内清掃費用 |
- |
駐車場料金 |
12,100円 |
損保・ |
借家賠付きの火災保険にご加入いただきます。 |
保証会社 |
加入要 保証会社利用料:保証委託料総賃料の50%・更新料¥12,000円/年 口座振替手数料 月額 330円(税込) |
契約期間 |
2年 |
入居可能日 |
2025年12月 |
フリーレント期間 |
- |
取引形態 |
一般媒介 |
備考 |
短期解約違約金:1年未満 家賃共益費1ヶ月分 室内清掃費用 解約時 33000円(税込) カギ交換費用 解約時 33000円(税込) エアコンクリーニング費用 解約時 16500円(税込) 駐車場金額区画により変動有 |
S-RESIDENCE四日市市堀木amante 204号室の建物情報
建物名称 |
S-RESIDENCE四日市市堀木amante |
|---|---|
最寄駅 |
|
所在地 |
三重県四日市市堀木 |
階層 |
2階部分(地上14階建) |
構造 |
RC |
築年数 |
新築 |
駐車場 |
12,100円 |
小学校学区 |
中部西小学校 |
中学校学区 |
中部中学校 |
- 学区データについて
- ※学区データは必ずしも正確とは限りません。詳細に関しては最寄店舗または各自治体の教育委員会に必ずご確認ください。
無料この物件に問い合わせ
- S-RESIDENCE四日市市堀木amante 204号室

-
6.15万円
(共益費
8,000円)
- 敷
- -
- 礼
- 1ヶ月
- 保
- -
- 償
- -
S-RESIDENCE四日市市堀木amante 204号室の物件のお問い合わせ先・取り扱い店舗
ハウスコム 四日市店
- アクセス
-
近鉄名古屋線「近鉄四日市駅」西口より送迎あり
- 住所
- 〒510-0064 三重県四日市市新正2丁目7−25
- 営業時間
- AM10:00~PM06:00
- 定休日
- なし
- 営業エリア
- 四日市市、桑名市、鈴鹿市、いなべ市、三重郡川越町、三重郡朝日町、三重郡菰野町、三重郡東員町
- 取引態様
- 賃貸仲介業



















