上新庄の完工年月(2025年2月)築の賃貸マンション ***号室(2階/1K)の賃貸物件(賃貸マンション)
大阪府大阪市東淀川区にある上新庄の完工年月(2025年2月)築の賃貸マンション ***号室は温水洗浄便座、オートロック、クローゼット、フローリング、クッションフロアなどが特徴です。最寄り駅の阪急京都線上新庄駅から徒歩7分です。上新庄の完工年月(2025年2月)築の賃貸マンション ***号室の詳細はクラスモ FC上新庄店までお気軽にお問い合わせください!
情報更新日:
次回更新予定日:
※次回更新予定日について:お店側では順次空室確認を行っていますが、次回更新予定日までに空室確認が行えない場合には、この物件情報は自動的に削除されます。
上新庄の完工年月(2025年2月)築の賃貸マンション ***号室の賃貸物件部屋概要
家賃 |
6.22万円
初期費用を |
|---|---|
共益費 |
10,300円
入居可能時期 |
敷金/礼金 |
- / 1ヶ月 |
保証金/ |
- / - |
最寄駅 |
|
所在地 |
大阪府大阪市東淀川区上新庄 |
部屋番号 |
***号室 |
間取り |
1K(洋6・K0) |
専有面積 |
20.88㎡ |
築年数 |
2025年2月 |
階数 |
2階部分(地上4階建) |
方位・位置 |
南東 / その他 |
物件種別 |
賃貸マンション |
構造 |
RC |
駐車場 |
20,000円 |
小学校学区 |
新庄小学校 |
中学校学区 |
新東淀中学校 |
他の空き部屋 |
***号室 |
- 学区データについて
- ※学区データは必ずしも正確とは限りません。詳細に関しては最寄店舗または各自治体の教育委員会に必ずご確認ください。
上新庄の完工年月(2025年2月)築の賃貸マンション ***号室の特徴
-
一人暮らしに人気の設備

-
カップルに人気の設備

-
家族に人気の設備

-
夫婦に人気の設備

-
三世代で人気の設備

-
セキュリティ対策重視

-
身だしなみに気をつかいたい

-
雨の日でも洗濯したい

-
洋室で暮らしたい

-
オークション・通販が好き

契約条件
ペットの飼育もご相談ください。 敷金が無料なため、初期費用が比較的安くなる傾向にあります。
セキュリティ
この物件の建物には、オートロックや防犯カメラや宅配ボックスが設置されており、来客時には居室内のテレビモニターにて訪問者の顔を確認することができます。
室内設備
システムキッチンには、2つ以上のガスコンロが備え付けられています。 トイレは、温水洗浄便座機能付きになります。 女性に嬉しい設備のシャワーの付いている洗面化粧台があります。 洗濯に便利な設備として、室内洗濯機置場があります。浴室乾燥機も設置されているので、梅雨時の生乾き臭も比較的防ぐことができます。
居室状況
お部屋の床は、クッションフロアのフローリングとなっており、エアコンが設置されています。 インターネットも無料で入居後すぐ生活が始められます。 収納スペースとして、基本的な居室にクローゼットを設置、玄関にはシューズボックスがあります。
建物設備共用部分
居室外の専有スペースとして、洗濯物を干すなどの用途として利用できるバルコニーがあります。 建物の共用スペースに、日々の出入に便利なエレベーターや、いざという時の防犯カメラや、急な外出や不在がちのご家庭の荷物受け取りに便利な宅配ボックスが設置されています。 駐輪場が利用できます。
周辺施設
この物件の学区は、新庄小学校区・新東淀中学校区です。
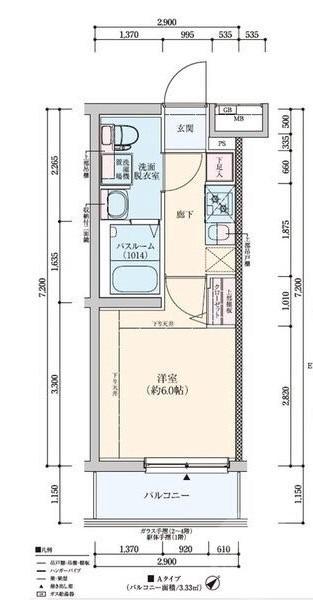
上新庄の完工年月(2025年2月)築の賃貸マンション ***号室の間取り
間取り:1K
間取詳細:1K(洋6・K0)
専有面積:20.88㎡
方位:南東
部屋位置:その他
上新庄の完工年月(2025年2月)築の賃貸マンション ***号室の設備
キッチン
システムキッチン
ガスコンロ
ガスコンロ二口以上
バス・トイレ
バス・トイレ別
浴室乾燥機
温水洗浄便座
独立洗面台
シャワー付洗面化粧台
玄関
TVモニタ付インターホン
オートロック
宅配ボックス
収納
クローゼット
シューズボックス
バルコニー
バルコニー
室内設備
エアコン
フローリング
クッションフロア
室内洗濯機置場
位置・立地
2階以上
インフラ
インターネット可
都市ガス
建物設備
エレベーター
防犯カメラ
24時間換気システム
駐輪場
分譲賃貸
入居条件
ペット可・相談
ライフステージ
一人暮らしに人気の設備
カップルに人気の設備
家族に人気の設備
夫婦に人気の設備
三世代で人気の設備
こだわり
セキュリティ対策重視
身だしなみに気をつかいたい
雨の日でも洗濯したい
洋室で暮らしたい
趣味
オークション・通販が好き
お得な条件
インターネット無料
上新庄の完工年月(2025年2月)築の賃貸マンション ***号室の賃貸契約情報
毎月支払う |
家賃6.22万円/月共益費10,300円/月 |
|---|---|
初期費用 |
敷金-礼金1ヶ月 (6.22万円)保証金-敷引き償却金- |
更新料 |
- |
鍵交換費用 |
- |
室内清掃費用 |
33,000円 |
駐輪場利用料 |
330円 |
原付 |
2,200円 |
バイク50cc以上 |
2,200円 |
駐車場料金 |
20,000円 |
損保・ |
借家賠付きの火災保険にご加入いただきます。 |
保証会社 |
加入要 保証会社:エポスカード 保証会社利用料:初回契約時:15,000円、月額:2% |
契約期間 |
2年 |
入居可能日 |
相談 |
フリーレント期間 |
- |
取引形態 |
仲介 |
備考 |
賃貸・売買のクラスモ上新庄店では、東淀川区上新庄周辺の不動産賃貸物件(マンション・アパート・戸建)を数多く取り扱っております。阪急上新庄駅は梅田までのアクセスも良く、非常に便利なエリアとなっております。家主様のご希望によりWEB上に掲載できない非公開物件も数多くございますので、ご希望の物件が見つからなかった方はお問い合わせください!ご希望の条件をお伝えいただけましたら最適な物件をご提案いたします! |
上新庄の完工年月(2025年2月)築の賃貸マンション ***号室の建物情報
建物名称 |
上新庄の完工年月(2025年2月)築の賃貸マンション |
|---|---|
最寄駅 |
|
所在地 |
大阪府大阪市東淀川区上新庄 |
階層 |
2階部分(地上4階建) |
構造 |
RC |
築年数 |
2025年2月 |
駐車場 |
20,000円 |
小学校学区 |
新庄小学校 |
中学校学区 |
新東淀中学校 |
- 学区データについて
- ※学区データは必ずしも正確とは限りません。詳細に関しては最寄店舗または各自治体の教育委員会に必ずご確認ください。
無料この物件に問い合わせ
- 上新庄の完工年月(2025年2月)築の賃貸マンション ***号室

-
6.22万円
(共益費
10,300円)
- 敷
- -
- 礼
- 1ヶ月
- 保
- -
- 償
- -
上新庄の完工年月(2025年2月)築の賃貸マンション ***号室の物件のお問い合わせ先・取り扱い店舗
クラスモ FC上新庄店
- アクセス
-
阪急京都線「上新庄駅」徒歩1分
- 住所
- 〒533-0005 大阪府大阪市東淀川区瑞光1丁目14-39 新高ビル1階
- 営業時間
- 10:00~19:00
- 定休日
- 水曜日(年末年始)
- 営業エリア
- 大阪市全域 ・なんば(中央区)以北
- 取引態様
- 賃貸仲介業・物件売買業・FC店


























