南吹田の完工年月(2015年3月)築の賃貸一戸建て ***号室(1階/3LDK)の賃貸物件(賃貸一戸建て)
大阪府吹田市にある南吹田の完工年月(2015年3月)築の賃貸一戸建て ***号室は独立洗面台、床下収納、角部屋、メゾネット、即入居可などが特徴です。最寄り駅の大阪メトロ 御堂筋線江坂駅から徒歩12分です。南吹田の完工年月(2015年3月)築の賃貸一戸建て ***号室の詳細はクラスモ FCJR吹田駅前店までお気軽にお問い合わせください!
情報更新日:
次回更新予定日:
※次回更新予定日について:お店側では順次空室確認を行っていますが、次回更新予定日までに空室確認が行えない場合には、この物件情報は自動的に削除されます。
南吹田の完工年月(2015年3月)築の賃貸一戸建て ***号室の賃貸物件部屋概要
家賃 |
18.5万円
初期費用を |
|---|---|
共益費 |
-
入居可能時期 |
敷金/礼金 |
1ヶ月 / 4ヶ月 |
保証金/ |
- / - |
最寄駅 |
|
所在地 |
大阪府吹田市南吹田 |
部屋番号 |
***号室 |
間取り |
3LDK(LDK14・洋6・洋6・洋6) |
専有面積 |
89.10㎡ |
築年数 |
2015年3月(築11年) |
階数 |
1階部分(地上2階建) |
方位・位置 |
南西 / 角部屋 |
物件種別 |
賃貸一戸建て |
構造 |
木造 |
駐車場 |
空有 賃料に含む |
小学校学区 |
吹田南小学校 |
中学校学区 |
第六中学校 |
他の空き部屋 |
***号室 |
- 学区データについて
- ※学区データは必ずしも正確とは限りません。詳細に関しては最寄店舗または各自治体の教育委員会に必ずご確認ください。
南吹田の完工年月(2015年3月)築の賃貸一戸建て ***号室の特徴
-
一人暮らしに人気の設備

-
カップルに人気の設備

-
家族に人気の設備

-
夫婦に人気の設備

-
三世代で人気の設備

-
収納重視

-
雨の日でも洗濯したい

-
洋室で暮らしたい

-
持ち物をスッキリ隠す収納部屋

-
料理が好き

-
推し活グッズを飾りたい

契約条件
この物件は、2人入居もご契約できます。 ペットの飼育もご相談ください。
セキュリティ
来客時には居室内のテレビモニターにて訪問者の顔を確認することができます。
室内設備
システムキッチンには、ガスコンロが備え付けられています。 お風呂とトイレは別です。お風呂には、追い焚き機能が備わっています。 女性に嬉しい設備のシャワーの付いている洗面化粧台があります。 洗濯に便利な設備として、室内洗濯機置場があります。
居室状況
お部屋の床は、全居室フローリングとなっています。収納スペースとして、基本的な居室にクローゼットを設置、玄関にはシューズボックス、また、床下収納といったあれば嬉しい用途別収納があります。
建物設備共用部分
居室外の専有スペースとして、洗濯物を干すなどの用途として利用できるバルコニーがあります。 駐車場があり、無料で利用することができます。駐輪場が利用できます。
周辺施設
この物件の学区は、吹田南小学校区・第六中学校区です。近くには、徒歩7分(504m)でドラッグストアが、徒歩12分(884m)で公園があります。
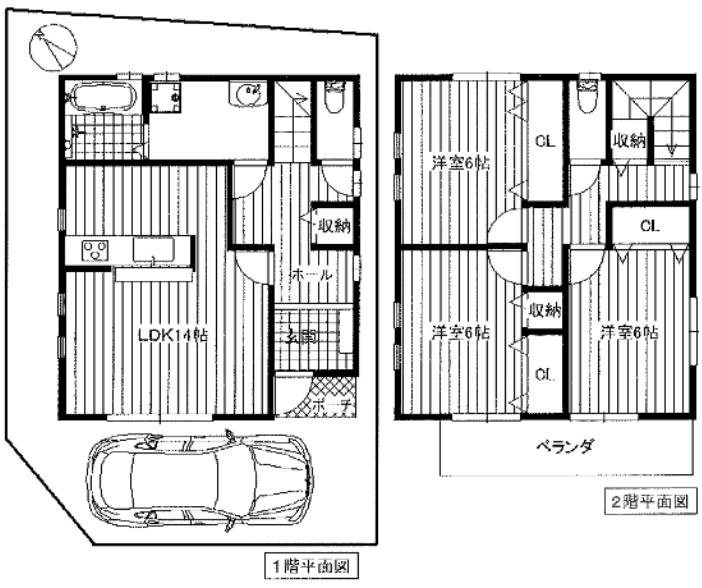
南吹田の完工年月(2015年3月)築の賃貸一戸建て ***号室の間取り
間取り:3LDK
間取詳細:3LDK(LDK14・洋6・洋6・洋6)
専有面積:89.10㎡
方位:南西
部屋位置:角部屋
南吹田の完工年月(2015年3月)築の賃貸一戸建て ***号室の設備
キッチン
システムキッチン
カウンターキッチン
ガスコンロ
バス・トイレ
バス・トイレ別
追い焚き
独立洗面台
シャワー付洗面化粧台
玄関
TVモニタ付インターホン
収納
クローゼット
シューズボックス
床下収納
全居室収納
バルコニー
バルコニー
室内設備
フローリング
全居室フローリング
室内洗濯機置場
位置・立地
1階
角部屋
インフラ
都市ガス
建物設備
駐輪場
メゾネット
入居条件
ペット可・相談
2人入居可
即入居可
ライフステージ
一人暮らしに人気の設備
カップルに人気の設備
家族に人気の設備
夫婦に人気の設備
三世代で人気の設備
こだわり
収納重視
雨の日でも洗濯したい
洋室で暮らしたい
持ち物をスッキリ隠す収納部屋
趣味
料理が好き
推し活グッズを飾りたい
お得な条件
駐車場無料
南吹田の完工年月(2015年3月)築の賃貸一戸建て ***号室の賃貸契約情報
毎月支払う |
家賃18.5万円/月共益費- |
|---|---|
初期費用 |
敷金1ヶ月 (18.5万円)礼金4ヶ月 (74万円)保証金-敷引き償却金- |
更新料 |
- |
鍵交換費用 |
- |
室内清掃費用 |
- |
駐車場料金 |
空有 賃料に含む |
損保・ |
借家賠付きの火災保険にご加入いただきます。 |
保証会社 |
加入要 保証会社:全保連 保証会社利用料:初回保証料:総賃料の50% 更新料:10,000円/年 |
契約期間 |
2年 |
入居可能日 |
即入居可 |
フリーレント期間 |
- |
取引形態 |
仲介 |
備考 |
新婚様・カップル様 大歓迎・応援中医療従事者様 大歓迎・応援中新社会人様 大歓迎・応援中 |
南吹田の完工年月(2015年3月)築の賃貸一戸建て ***号室の建物情報
建物名称 |
南吹田の完工年月(2015年3月)築の賃貸一戸建て |
|---|---|
最寄駅 |
|
所在地 |
大阪府吹田市南吹田 |
階層 |
1階部分(地上2階建) |
構造 |
木造 |
築年数 |
2015年3月(築11年) |
駐車場 |
空有 賃料に含む |
小学校学区 |
吹田南小学校 |
中学校学区 |
第六中学校 |
- 学区データについて
- ※学区データは必ずしも正確とは限りません。詳細に関しては最寄店舗または各自治体の教育委員会に必ずご確認ください。
無料この物件に問い合わせ
- 南吹田の完工年月(2015年3月)築の賃貸一戸建て ***号室

-
18.5万円
(共益費
-)
- 敷
- 1ヶ月
- 礼
- 4ヶ月
- 保
- -
- 償
- -
南吹田の完工年月(2015年3月)築の賃貸一戸建て ***号室の物件のお問い合わせ先・取り扱い店舗
クラスモ FCJR吹田駅前店
- アクセス
-
東海道本線(JR西日本)「吹田駅」徒歩2分
阪急千里線「吹田駅」徒歩13分
阪急千里線「豊津駅」徒歩23分
- 住所
- 〒564-0027 大阪府吹田市朝日町2番 さんくす2番館138号室
- 営業時間
- 10:00~19:00
- 定休日
- 水曜日
- 営業エリア
- 吹田市・摂津市・茨木市 ・東淀川区・淀川区・西淀川区・北区・福島区・中央区
- 取引態様
- 賃貸仲介業・物件売買業・FC店





























