ミッテフリーデⅠ 1-102号室(2階/2LDK)の賃貸物件(賃貸アパート)
愛知県清須市にあるミッテフリーデⅠ 1-102号室はルーフバルコニー、エアコン、フローリング、バイク置き場、即入居可などが特徴です。最寄り駅の城北線(JR東海交通事業)尾張星の宮駅から徒歩1分です。ミッテフリーデⅠ 1-102号室の詳細はハウスコム 中村公園店までお気軽にお問い合わせください!
情報更新日:
次回更新予定日:
※次回更新予定日について:お店側では順次空室確認を行っていますが、次回更新予定日までに空室確認が行えない場合には、この物件情報は自動的に削除されます。
ミッテフリーデⅠ 1-102号室の賃貸物件部屋概要
家賃 |
5.7万円
初期費用を |
|---|---|
共益費 |
3,400円
入居可能時期 |
敷金/礼金 |
- / - |
保証金/ |
- / - |
最寄駅 |
|
所在地 |
愛知県清須市西田中 |
部屋番号 |
1-102号室 |
間取り |
2LDK |
専有面積 |
58.80㎡ |
築年数 |
2005年3月(築21年) |
階数 |
2階部分(地上2階建) |
方位・位置 |
南 / その他 |
物件種別 |
賃貸アパート |
構造 |
木造 |
駐車場 |
5,500円 |
小学校学区 |
清洲東小学校 |
中学校学区 |
清洲中学校 |
他の空き部屋 |
1-203号室 |
- 学区データについて
- ※学区データは必ずしも正確とは限りません。詳細に関しては最寄店舗または各自治体の教育委員会に必ずご確認ください。
ミッテフリーデⅠ 1-102号室の特徴
-
一人暮らしに人気の設備

-
カップルに人気の設備

-
家族に人気の設備

-
夫婦に人気の設備

-
三世代で人気の設備

-
外で子どもと遊びたい

-
雨の日でも洗濯したい

-
洋室で暮らしたい

-
持ち物をスッキリ隠す収納部屋

-
寝るためだけの部屋

-
ガーデニングが好き

契約条件
敷金と礼金が無料なため、初期費用が比較的安くなる傾向にあり、更新料が無料なので、長年お得に住み続けることができます。
セキュリティ
来客時には居室内のテレビモニターにて訪問者の顔を確認することができます。
室内設備
お風呂とトイレは別です。お風呂には、追い焚き機能が備わっています。 トイレは、温水洗浄便座機能付きになります。 女性に嬉しい設備の独立した洗面化粧台があります。 洗濯に便利な設備として、室内洗濯機置場があります。
居室状況
お部屋の床は、フローリングとなっており、エアコンが設置されています。 収納スペースとして、玄関にはシューズボックスがあります。
建物設備共用部分
居室外の専有スペースとして、洗濯物を干すなどの用途として利用できるバルコニーがあります。 駐輪場、バイク置き場が利用できます。
周辺施設
この物件の学区は、清洲東小学校区・清洲中学校区です。
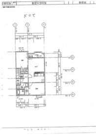
ミッテフリーデⅠ 1-102号室の間取り
間取り:2LDK
間取詳細:2LDK
専有面積:58.80㎡
方位:南
部屋位置:その他
ミッテフリーデⅠ 1-102号室の設備
バス・トイレ
バス・トイレ別
追い焚き
温水洗浄便座
独立洗面台
玄関
TVモニタ付インターホン
収納
シューズボックス
全居室収納
バルコニー
バルコニー
ルーフバルコニー
室内設備
エアコン
フローリング
室内洗濯機置場
位置・立地
2階以上
最上階
南向き
インフラ
CATV
プロパンガス
建物設備
駐輪場
バイク置き場
入居条件
即入居可
ライフステージ
一人暮らしに人気の設備
カップルに人気の設備
家族に人気の設備
夫婦に人気の設備
三世代で人気の設備
こだわり
外で子どもと遊びたい
雨の日でも洗濯したい
洋室で暮らしたい
持ち物をスッキリ隠す収納部屋
寝るためだけの部屋
趣味
ガーデニングが好き
お得な条件
更新料無料
ミッテフリーデⅠ 1-102号室の賃貸契約情報
毎月支払う |
家賃5.7万円/月共益費3,400円/月 |
|---|---|
初期費用 |
敷金-礼金-保証金-敷引き償却金- |
更新料 |
- |
鍵交換費用 |
- |
室内清掃費用 |
- |
クリーニング費 |
40,000円 |
駐車場料金 |
5,500円 |
損保・ |
借家賠付きの火災保険にご加入いただきます。 |
保証会社 |
|
契約期間 |
2年 |
入居可能日 |
即入居可 |
フリーレント期間 |
- |
取引形態 |
一般媒介 |
備考 |
- |
ミッテフリーデⅠ 1-102号室の建物情報
建物名称 |
ミッテフリーデⅠ |
|---|---|
最寄駅 |
|
所在地 |
愛知県清須市西田中 |
階層 |
2階部分(地上2階建) |
構造 |
木造 |
築年数 |
2005年3月(築21年) |
駐車場 |
5,500円 |
小学校学区 |
清洲東小学校 |
中学校学区 |
清洲中学校 |
- 学区データについて
- ※学区データは必ずしも正確とは限りません。詳細に関しては最寄店舗または各自治体の教育委員会に必ずご確認ください。
無料この物件に問い合わせ
- ミッテフリーデⅠ 1-102号室

-
5.7万円
(共益費
3,400円)
- 敷
- -
- 礼
- -
- 保
- -
- 償
- -
ミッテフリーデⅠ 1-102号室の物件のお問い合わせ先・取り扱い店舗
ハウスコム 中村公園店
- アクセス
-
名古屋市営地下鉄 東山線「中村公園駅」徒歩1分
- 住所
- 〒453-0811 愛知県名古屋市中村区太閤通9丁目9 横田ビル 1階
- 営業時間
- 10:00~18:00
- 定休日
- なし(年末年始休業12月25日~1月3日)
- 営業エリア
- 中村区 中川区 西区 中区 港区 海部郡 あま市 清須市
- 取引態様
- 賃貸仲介業









