浜田山タウンホームⅡ 117号室(1階/3LDK)の賃貸物件(賃貸アパート)
東京都杉並区にある浜田山タウンホームⅡ 117号室はカウンターキッチン、ガスコンロ、温水洗浄便座、TVモニタ付インターホン、ルーフバルコニーなどが特徴です。最寄り駅の京王井の頭線浜田山駅から徒歩9分です。浜田山タウンホームⅡ 117号室の詳細はハウスコム 荻窪店までお気軽にお問い合わせください!
情報更新日:
次回更新予定日:
※次回更新予定日について:お店側では順次空室確認を行っていますが、次回更新予定日までに空室確認が行えない場合には、この物件情報は自動的に削除されます。
浜田山タウンホームⅡ 117号室の賃貸物件部屋概要
家賃 |
32万円
初期費用を |
|---|---|
共益費 |
-
入居可能時期 |
敷金/礼金 |
2ヶ月 / 1ヶ月 |
保証金/ |
- / - |
最寄駅 |
|
所在地 |
東京都杉並区浜田山 |
部屋番号 |
117号室 |
間取り |
3LDK(LDK16.5・洋6.6・洋7.1・洋7.2) |
専有面積 |
103.63㎡ |
築年数 |
1980年9月(築46年) |
階数 |
1階部分(地上3階建) |
方位・位置 |
南西 / その他 |
物件種別 |
賃貸アパート |
構造 |
RC |
駐車場 |
空有 賃料に含む |
小学校学区 |
浜田山小学校 |
中学校学区 |
高井戸中学校 |
他の空き部屋 |
ー |
- 学区データについて
- ※学区データは必ずしも正確とは限りません。詳細に関しては最寄店舗または各自治体の教育委員会に必ずご確認ください。
浜田山タウンホームⅡ 117号室の特徴
-
一人暮らしに人気の設備

-
カップルに人気の設備

-
家族に人気の設備

-
夫婦に人気の設備

-
三世代で人気の設備

-
外で子どもと遊びたい

-
雨の日でも洗濯したい

-
洋室で暮らしたい

-
料理が好き

-
推し活グッズを飾りたい

-
ガーデニングが好き

契約条件
ご契約時に保証人は不要です。
セキュリティ
来客時には居室内のテレビモニターにて訪問者の顔を確認することができます。
室内設備
システムキッチンには、ガスコンロが備え付けられています。 トイレは、温水洗浄便座機能付きになります。 女性に嬉しい設備の独立した洗面化粧台があります。 洗濯に便利な設備として、室内洗濯機置場があります。
居室状況
お部屋の床は、フローリングとなっており、エアコンが設置されています。 収納スペースとして、基本的な居室にクローゼットがあります。
建物設備共用部分
居室外の専有スペースとして、洗濯物を干すなどの用途として利用できるバルコニーがあります。 駐輪場が利用できます。
周辺施設
この物件の学区は、浜田山小学校区・高井戸中学校区です。
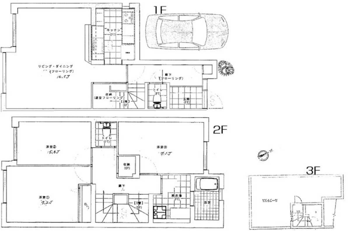
浜田山タウンホームⅡ 117号室の間取り
間取り:3LDK
間取詳細:3LDK(LDK16.5・洋6.6・洋7.1・洋7.2)
専有面積:103.63㎡
方位:南西
部屋位置:その他
浜田山タウンホームⅡ 117号室の設備
キッチン
システムキッチン
カウンターキッチン
ガスコンロ
バス・トイレ
バス・トイレ別
温水洗浄便座
独立洗面台
玄関
TVモニタ付インターホン
収納
クローゼット
バルコニー
バルコニー
ルーフバルコニー
室内設備
エアコン
フローリング
室内洗濯機置場
位置・立地
1階
建物設備
駐輪場
入居条件
保証人不要
即入居可
ライフステージ
一人暮らしに人気の設備
カップルに人気の設備
家族に人気の設備
夫婦に人気の設備
三世代で人気の設備
こだわり
外で子どもと遊びたい
雨の日でも洗濯したい
洋室で暮らしたい
趣味
料理が好き
推し活グッズを飾りたい
ガーデニングが好き
浜田山タウンホームⅡ 117号室の賃貸契約情報
毎月支払う |
家賃32万円/月共益費- |
|---|---|
初期費用 |
敷金2ヶ月 (64万円)礼金1ヶ月 (32万円)保証金-敷引き償却金- |
更新料 |
320,000円 |
鍵交換費用 |
33,000円 |
室内清掃費用 |
- |
24時間サポート |
19,800円 |
消臭消毒 |
22,000円 |
駐車場料金 |
空有 賃料に含む |
損保・ |
借家賠付きの火災保険にご加入いただきます。 |
保証会社 |
加入要 保証会社:アーク賃貸保証 保証会社利用料:初回100% 毎年1.1万円 |
契約期間 |
2年 |
入居可能日 |
即入居可 |
フリーレント期間 |
- |
取引形態 |
一般媒介 |
備考 |
火災保険加入要 駐輪場:有料 |
浜田山タウンホームⅡ 117号室の建物情報
建物名称 |
浜田山タウンホームⅡ |
|---|---|
最寄駅 |
|
所在地 |
東京都杉並区浜田山 |
階層 |
1階部分(地上3階建) |
構造 |
RC |
築年数 |
1980年9月(築46年) |
駐車場 |
空有 賃料に含む |
小学校学区 |
浜田山小学校 |
中学校学区 |
高井戸中学校 |
- 学区データについて
- ※学区データは必ずしも正確とは限りません。詳細に関しては最寄店舗または各自治体の教育委員会に必ずご確認ください。
無料この物件に問い合わせ
- 浜田山タウンホームⅡ 117号室

-
32万円
(共益費
-)
- 敷
- 2ヶ月
- 礼
- 1ヶ月
- 保
- -
- 償
- -
浜田山タウンホームⅡ 117号室の物件のお問い合わせ先・取り扱い店舗
ハウスコム 荻窪店
- アクセス
-
中央本線(JR東日本)「荻窪駅」徒歩1分
- 住所
- 〒167-0051 東京都杉並区荻窪5-28-12 サカエビル8階
- 営業時間
- 10:00~18:00
- 定休日
- 水曜日
- 営業エリア
- 杉並区,中野区、練馬区、武蔵野市
- 取引態様
- 賃貸仲介業





























