メインステージ入谷Ⅴ 306号室(2階/1LDK)の賃貸物件(賃貸マンション)
東京都台東区にあるメインステージ入谷Ⅴ 306号室はガスコンロ、インターネット可、都市ガス、オンライン内見可、保証人不要などが特徴です。最寄り駅の東京メトロ 日比谷線入谷駅から徒歩11分です。メインステージ入谷Ⅴ 306号室の詳細はハウスコム 日暮里店までお気軽にお問い合わせください!
情報更新日:
次回更新予定日:
※次回更新予定日について:お店側では順次空室確認を行っていますが、次回更新予定日までに空室確認が行えない場合には、この物件情報は自動的に削除されます。
メインステージ入谷Ⅴ 306号室の賃貸物件部屋概要
家賃 |
16.7万円
初期費用を |
|---|---|
共益費 |
20,000円
入居可能時期 |
敷金/礼金 |
- / - |
保証金/ |
- / - |
最寄駅 |
|
所在地 |
東京都台東区千束 |
部屋番号 |
306号室 |
間取り |
1LDK(洋6・LDK10.4) |
専有面積 |
41.47㎡ |
築年数 |
新築 |
階数 |
2階部分(地上10階建) |
方位・位置 |
西 / 角部屋 |
物件種別 |
賃貸マンション |
構造 |
RC |
駐車場 |
- |
小学校学区 |
千束小学校 |
中学校学区 |
柏葉中学校 |
他の空き部屋 |
201号室 202号室 203号室 204号室 205号室 206号室 301号室 302号室 303号室 303号室 304号室 305号室 403号室 403号室 404号室 405号室 406号室 503号室 505号室 601号室 601号室 602号室 603号室 604号室 806号室 |
- 学区データについて
- ※学区データは必ずしも正確とは限りません。詳細に関しては最寄店舗または各自治体の教育委員会に必ずご確認ください。
メインステージ入谷Ⅴ 306号室の特徴
-
一人暮らしに人気の設備

-
カップルに人気の設備

-
家族に人気の設備

-
夫婦に人気の設備

-
三世代で人気の設備

-
セキュリティ対策重視

-
外で子どもと遊びたい

-
雨の日でも洗濯したい

-
洋室で暮らしたい

-
オークション・通販が好き

-
ガーデニングが好き

契約条件
この物件は、2人入居もご契約できます。 ペットの飼育もご相談ください。 また、ご契約時に保証人は不要です。 敷金と礼金が無料なため、初期費用が比較的安くなる傾向にあります。
セキュリティ
この物件の建物には、オートロックや防犯カメラや宅配ボックスが設置されており、来客時には居室内のテレビモニターにて訪問者の顔を確認することができます。
室内設備
システムキッチンには、2つ以上のガスコンロが備え付けられています。 トイレは、温水洗浄便座機能付きになります。 女性に嬉しい設備の独立した洗面化粧台があります。 洗濯に便利な設備として、室内洗濯機置場があります。
居室状況
お部屋の床は、フローリングとなっています。インターネットも無料で入居後すぐ生活が始められます。 収納スペースとして、基本的な居室にクローゼットがあります。
建物設備共用部分
居室外の専有スペースとして、洗濯物を干すなどの用途として利用できるバルコニーがあります。 建物の共用スペースに、日々の出入に便利なエレベーターや、いざという時の防犯カメラや、急な外出や不在がちのご家庭の荷物受け取りに便利な宅配ボックスや、居室内を常に清潔に保てる24時間利用可能なゴミ捨て置き場が設置されています。
周辺施設
この物件の学区は、千束小学校区・柏葉中学校区です。
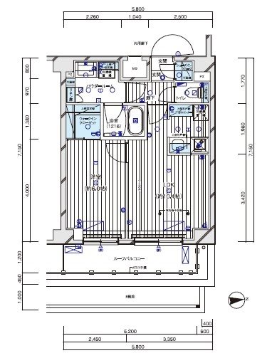
メインステージ入谷Ⅴ 306号室の間取り
間取り:1LDK
間取詳細:1LDK(洋6・LDK10.4)
専有面積:41.47㎡
方位:西
部屋位置:角部屋
メインステージ入谷Ⅴ 306号室の設備
キッチン
システムキッチン
ガスコンロ
ガスコンロ二口以上
バス・トイレ
バス・トイレ別
温水洗浄便座
独立洗面台
玄関
TVモニタ付インターホン
オートロック
宅配ボックス
収納
クローゼット
バルコニー
バルコニー
ルーフバルコニー
室内設備
フローリング
室内洗濯機置場
位置・立地
2階以上
角部屋
インフラ
インターネット可
都市ガス
建物設備
エレベーター
防犯カメラ
24時間ゴミ出しOK
入居条件
ペット可・相談
2人入居可
オンライン相談可
オンライン内見可
保証人不要
即入居可
ライフステージ
一人暮らしに人気の設備
カップルに人気の設備
家族に人気の設備
夫婦に人気の設備
三世代で人気の設備
こだわり
セキュリティ対策重視
外で子どもと遊びたい
雨の日でも洗濯したい
洋室で暮らしたい
趣味
オークション・通販が好き
ガーデニングが好き
お得な条件
インターネット無料
メインステージ入谷Ⅴ 306号室の賃貸契約情報
毎月支払う |
家賃16.7万円/月共益費20,000円/月 |
|---|---|
初期費用 |
敷金-礼金-保証金-敷引き償却金- |
更新料 |
250,500円 |
鍵交換費用 |
29,700円 |
室内清掃費用 |
55,000円 |
AMLクラブサポート費用 |
16,500円 |
エアコンクリーニング費用 |
16,500円 |
駐車場料金 |
- |
損保・ |
借家賠付きの火災保険にご加入いただきます。 |
保証会社 |
加入要 保証会社利用料:初回保証料:総賃料の50%~ |
契約期間 |
2年 |
入居可能日 |
即入居可 |
フリーレント期間 |
- |
取引形態 |
一般媒介 |
備考 |
短期解約違約金有(1年未満1ヶ月、半年未満2ヶ月) ペット飼育時敷金積み増し料金(償却)有り |
メインステージ入谷Ⅴ 306号室の建物情報
建物名称 |
メインステージ入谷Ⅴ |
|---|---|
最寄駅 |
|
所在地 |
東京都台東区千束 |
階層 |
2階部分(地上10階建) |
構造 |
RC |
築年数 |
新築 |
駐車場 |
- |
小学校学区 |
千束小学校 |
中学校学区 |
柏葉中学校 |
- 学区データについて
- ※学区データは必ずしも正確とは限りません。詳細に関しては最寄店舗または各自治体の教育委員会に必ずご確認ください。
無料この物件に問い合わせ
- メインステージ入谷Ⅴ 306号室

-
16.7万円
(共益費
20,000円)
- 敷
- -
- 礼
- -
- 保
- -
- 償
- -
メインステージ入谷Ⅴ 306号室の物件のお問い合わせ先・取り扱い店舗
ハウスコム 日暮里店
- アクセス
-
山手線「日暮里駅」東口徒歩1分
- 住所
- 〒116-0013 東京都荒川区西日暮里2丁目25−1 ステーションガーデンタワー 1階
- 営業時間
- 10:00~18:00
- 定休日
- なし
- 営業エリア
- 荒川区、台東区、文京区、足立区、葛飾区、墨田区、江東区、江戸川区、北区、豊島区
- 取引態様
- 賃貸仲介業









