台東の完工年月(2025年7月)築の賃貸マンション ***号室(8階/1DK)の賃貸物件(賃貸マンション)
東京都台東区にある台東の完工年月(2025年7月)築の賃貸マンション ***号室はTVモニタ付インターホン、オートロック、クローゼット、2階以上、バイク置き場などが特徴です。最寄り駅の都営大江戸線新御徒町駅から徒歩1分です。台東の完工年月(2025年7月)築の賃貸マンション ***号室の詳細はハウスコム 押上店までお気軽にお問い合わせください!
情報更新日:
次回更新予定日:
※次回更新予定日について:お店側では順次空室確認を行っていますが、次回更新予定日までに空室確認が行えない場合には、この物件情報は自動的に削除されます。
台東の完工年月(2025年7月)築の賃貸マンション ***号室の賃貸物件部屋概要
家賃 |
18万円
初期費用を |
|---|---|
共益費 |
20,000円
入居可能時期 |
敷金/礼金 |
1ヶ月 / - |
保証金/ |
- / - |
最寄駅 |
|
所在地 |
東京都台東区台東 |
部屋番号 |
***号室 |
間取り |
1DK |
専有面積 |
27.30㎡ |
築年数 |
2025年7月 |
階数 |
8階部分(地上11階建) |
方位・位置 |
西 / 角部屋 |
物件種別 |
賃貸マンション |
構造 |
RC |
駐車場 |
- |
小学校学区 |
平成小学校 |
中学校学区 |
御徒町台東中学校 |
他の空き部屋 |
***号室 ***号室 ***号室 ***号室 ***号室 ***号室 |
- 学区データについて
- ※学区データは必ずしも正確とは限りません。詳細に関しては最寄店舗または各自治体の教育委員会に必ずご確認ください。
台東の完工年月(2025年7月)築の賃貸マンション ***号室の特徴
契約条件
礼金が無料なため、初期費用が比較的安くなる傾向にあります。
セキュリティ
この物件の建物には、オートロックや防犯カメラや宅配ボックスが設置されており、来客時には居室内のテレビモニターにて訪問者の顔を確認することができます。
室内設備
システムキッチンが備え付けられています。 お風呂とトイレは別です。お風呂には、追い焚き機能が備わっています。 トイレは、温水洗浄便座機能付きになります。 女性に嬉しい設備の独立した洗面化粧台があります。 洗濯に便利な設備として、浴室乾燥機も設置されているので、梅雨時の生乾き臭も比較的防ぐことができます。
居室状況
お部屋の床は、フローリングとなっており、エアコンと一部床下暖房が設置されています。 照明器具が備え付けられており、入居後すぐ生活が始められます。 収納スペースとして、基本的な居室にクローゼットを設置、玄関にはシューズボックスがあります。
建物設備共用部分
建物の共用スペースに、いざという時の防犯カメラや、急な外出や不在がちのご家庭の荷物受け取りに便利な宅配ボックスが設置されています。 駐輪場、バイク置き場が利用できます。
周辺施設
この物件の学区は、平成小学校区・御徒町台東中学校区です。
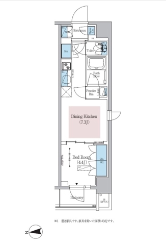
台東の完工年月(2025年7月)築の賃貸マンション ***号室の間取り
間取り:1DK
間取詳細:1DK
専有面積:27.30㎡
方位:西
部屋位置:角部屋
台東の完工年月(2025年7月)築の賃貸マンション ***号室の設備
キッチン
システムキッチン
バス・トイレ
バス・トイレ別
追い焚き
浴室乾燥機
温水洗浄便座
独立洗面台
玄関
TVモニタ付インターホン
オートロック
宅配ボックス
収納
クローゼット
シューズボックス
室内設備
エアコン
フローリング
床下暖房
照明器具付
位置・立地
2階以上
角部屋
インフラ
BS
CS
建物設備
防犯カメラ
駐輪場
バイク置き場
ライフステージ
一人暮らしに人気の設備
カップルに人気の設備
家族に人気の設備
夫婦に人気の設備
三世代で人気の設備
こだわり
セキュリティ対策重視
雨の日でも洗濯したい
洋室で暮らしたい
お得な条件
フリーレント
台東の完工年月(2025年7月)築の賃貸マンション ***号室の賃貸契約情報
毎月支払う |
家賃18万円/月共益費20,000円/月 |
|---|---|
初期費用 |
敷金1ヶ月 (18万円)礼金-保証金-敷引き償却金- |
更新料 |
180,000円 |
鍵交換費用 |
22,000円 |
室内清掃費用 |
- |
駐車場料金 |
- |
損保・ |
借家賠付きの火災保険にご加入いただきます。 |
保証会社 |
加入要 保証会社:オリコ 保証会社利用料:初回:50% |
契約期間 |
2年 |
入居可能日 |
2025年12月下旬 |
フリーレント期間 |
2ヶ月 |
取引形態 |
一般媒介 |
備考 |
- |
台東の完工年月(2025年7月)築の賃貸マンション ***号室の建物情報
建物名称 |
台東の完工年月(2025年7月)築の賃貸マンション |
|---|---|
最寄駅 |
|
所在地 |
東京都台東区台東 |
階層 |
8階部分(地上11階建) |
構造 |
RC |
築年数 |
2025年7月 |
駐車場 |
- |
小学校学区 |
平成小学校 |
中学校学区 |
御徒町台東中学校 |
- 学区データについて
- ※学区データは必ずしも正確とは限りません。詳細に関しては最寄店舗または各自治体の教育委員会に必ずご確認ください。
無料この物件に問い合わせ
- 台東の完工年月(2025年7月)築の賃貸マンション ***号室

-
18万円
(共益費
20,000円)
- 敷
- 1ヶ月
- 礼
- -
- 保
- -
- 償
- -
台東の完工年月(2025年7月)築の賃貸マンション ***号室の物件のお問い合わせ先・取り扱い店舗
ハウスコム 押上店
- アクセス
-
東京メトロ 半蔵門線「押上駅」B1出口徒歩1分
- 住所
- 〒130-0002 東京都墨田区業平4丁目16−2 三橋ビル 1F
- 営業時間
- 10:00~18:00
- 定休日
- 水曜日
- 営業エリア
- 墨田区・江東区・中央区・台東区・江戸川区・葛飾区・足立区・荒川区
- 取引態様
- 賃貸仲介業






























