プライムメゾン千葉新町 ***号室(7階/1K)の賃貸物件(賃貸マンション)
千葉県千葉市中央区にあるプライムメゾン千葉新町 ***号室はバス・トイレ別、オートロック、ルーフバルコニー、ペット可・相談、オンライン相談可などが特徴です。最寄り駅の総武線・中央線各駅停車千葉駅から徒歩7分です。プライムメゾン千葉新町 ***号室の詳細はハウスコム 千葉中央店までお気軽にお問い合わせください!
情報更新日:
次回更新予定日:
※次回更新予定日について:お店側では順次空室確認を行っていますが、次回更新予定日までに空室確認が行えない場合には、この物件情報は自動的に削除されます。
プライムメゾン千葉新町 ***号室の賃貸物件部屋概要
家賃 |
9.5万円
初期費用を |
|---|---|
共益費 |
13,000円
入居可能時期 |
敷金/礼金 |
1ヶ月 / 1ヶ月 |
保証金/ |
- / - |
最寄駅 |
|
所在地 |
千葉県千葉市中央区新町 |
部屋番号 |
***号室 |
間取り |
1K(洋9.5) |
専有面積 |
25.60㎡ |
築年数 |
2024年1月(築2年) |
階数 |
7階部分(地上13階建) |
方位・位置 |
北 / その他 |
物件種別 |
賃貸マンション |
構造 |
RC |
駐車場 |
- |
小学校学区 |
新宿小学校 |
中学校学区 |
新宿中学校 |
他の空き部屋 |
***号室 ***号室 ***号室 ***号室 ***号室 1305号室 ***号室 514号室 ***号室 |
- 学区データについて
- ※学区データは必ずしも正確とは限りません。詳細に関しては最寄店舗または各自治体の教育委員会に必ずご確認ください。
プライムメゾン千葉新町 ***号室の特徴
-
一人暮らしに人気の設備

-
カップルに人気の設備

-
家族に人気の設備

-
夫婦に人気の設備

-
三世代で人気の設備

-
セキュリティ対策重視

-
収納重視

-
外で子どもと遊びたい

-
雨の日でも洗濯したい

-
洋室で暮らしたい

-
持ち物をスッキリ隠す収納部屋

-
ガーデニングが好き

契約条件
ペットの飼育もご相談ください。
セキュリティ
この物件の建物には、オートロックや防犯カメラや宅配ボックスが設置されており、来客時には居室内のテレビモニターにて訪問者の顔を確認することができます。
室内設備
システムキッチンには、2つ以上のガスコンロが備え付けられています。 トイレは、温水洗浄便座機能付きになります。 女性に嬉しい設備の独立した洗面化粧台があります。 洗濯に便利な設備として、室内洗濯機置場があります。浴室乾燥機も設置されているので、梅雨時の生乾き臭も比較的防ぐことができます。
居室状況
お部屋の床は、フローリングとなっており、エアコンが設置されています。 照明器具が備え付けられており、入居後すぐ生活が始められます。 収納スペースとして、基本的な居室にクローゼットを設置、玄関にはシューズボックスがあります。
建物設備共用部分
居室外の専有スペースとして、洗濯物を干すなどの用途として利用できるバルコニーがあります。 建物の共用スペースに、日々の出入に便利なエレベーターや、いざという時の防犯カメラや、急な外出や不在がちのご家庭の荷物受け取りに便利な宅配ボックスが設置されています。 駐輪場、バイク置き場が利用できます。
周辺施設
この物件の学区は、新宿小学校区・新宿中学校区です。
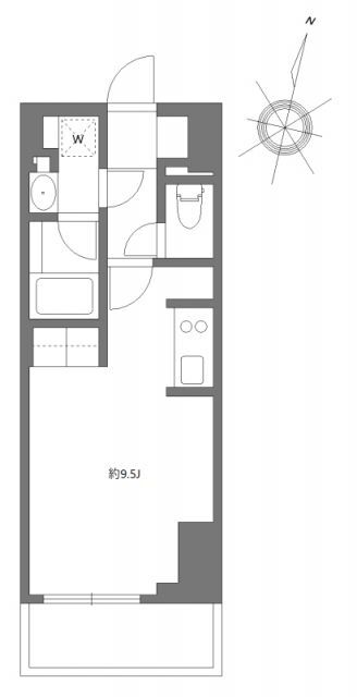
プライムメゾン千葉新町 ***号室の間取り
間取り:1K
間取詳細:1K(洋9.5)
専有面積:25.60㎡
方位:北
部屋位置:その他
プライムメゾン千葉新町 ***号室の設備
キッチン
システムキッチン
ガスコンロ
ガスコンロ二口以上
バス・トイレ
バス・トイレ別
浴室乾燥機
温水洗浄便座
独立洗面台
玄関
TVモニタ付インターホン
オートロック
宅配ボックス
収納
クローゼット
シューズボックス
全居室収納
バルコニー
バルコニー
ルーフバルコニー
室内設備
エアコン
フローリング
室内洗濯機置場
照明器具付
位置・立地
2階以上
インフラ
インターネット可
BS
CS
都市ガス
建物設備
エレベーター
防犯カメラ
駐輪場
バイク置き場
入居条件
ペット可・相談
オンライン相談可
オンライン内見可
ライフステージ
一人暮らしに人気の設備
カップルに人気の設備
家族に人気の設備
夫婦に人気の設備
三世代で人気の設備
こだわり
セキュリティ対策重視
収納重視
外で子どもと遊びたい
雨の日でも洗濯したい
洋室で暮らしたい
持ち物をスッキリ隠す収納部屋
趣味
ガーデニングが好き
プライムメゾン千葉新町 ***号室の賃貸契約情報
毎月支払う |
家賃9.5万円/月共益費13,000円/月 |
|---|---|
初期費用 |
敷金1ヶ月 (9.5万円)礼金1ヶ月 (9.5万円)保証金-敷引き償却金- |
更新料 |
142,500円 |
鍵交換費用 |
38,500円 |
室内清掃費用 |
- |
プレミアムデスク(2年) |
16,500円 |
駐車場料金 |
- |
損保・ |
借家賠付きの火災保険にご加入いただきます。 |
保証会社 |
加入要 保証会社:Casa 保証会社利用料:月額総賃料の70% 最低保証料20000円 月次保証料、月額総賃料の1.5% |
契約期間 |
2年 |
入居可能日 |
2026年01月 |
フリーレント期間 |
- |
取引形態 |
一般媒介 |
備考 |
短期解約違約金:1年未満2カ月 解約予告:2カ月前 プレミアデスク代の中に登録料4400円を含む ペット飼育時 礼金1ヶ月増額小型犬・猫1匹迄 本物件は電子契約 駐車場:ハイルーフ28600円/月~ロールーフ24200円/月 駐輪場:初回登録料5500円のみ 区画指定・下段55番 インターネット無料:UCOM光 |
プライムメゾン千葉新町 ***号室の建物情報
建物名称 |
プライムメゾン千葉新町 |
|---|---|
最寄駅 |
|
所在地 |
千葉県千葉市中央区新町 |
階層 |
7階部分(地上13階建) |
構造 |
RC |
築年数 |
2024年1月(築2年) |
駐車場 |
- |
小学校学区 |
新宿小学校 |
中学校学区 |
新宿中学校 |
- 学区データについて
- ※学区データは必ずしも正確とは限りません。詳細に関しては最寄店舗または各自治体の教育委員会に必ずご確認ください。
無料この物件に問い合わせ
- プライムメゾン千葉新町 ***号室

-
9.5万円
(共益費
13,000円)
- 敷
- 1ヶ月
- 礼
- 1ヶ月
- 保
- -
- 償
- -
プライムメゾン千葉新町 ***号室の物件のお問い合わせ先・取り扱い店舗
ハウスコム 千葉中央店
- アクセス
-
総武本線「千葉駅」東口徒歩5分
- 住所
- 〒260-0015 千葉県千葉市中央区富士見2丁目7−2 鹿島ビル 3階
- 営業時間
- 10:00~18:00
- 定休日
- 水曜日
- 営業エリア
- 千葉市、四街道市、市原市、茂原市、袖ヶ浦市、木更津市、君津市、富津市、八街市、館山市他
- 取引態様
- 賃貸仲介業




























